Translate with 
MENU ZAVŘÍT

Prodej pozemku 585 m², Štěchovice (ID 248-NP00849)

Štěchovice – část obce Štěchovice u Prahy mapa

7 000 000 Kč ( za nemovitost)

585 m2
Exkluzivně

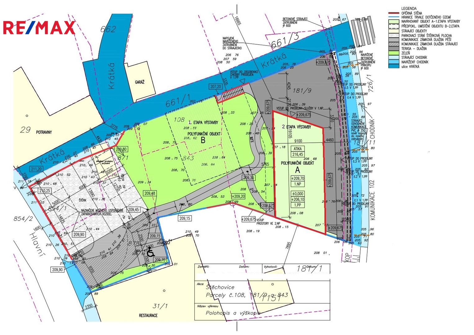
Prodej pozemku s projektem a stavebním povolením, 585 m2

Nabízím k prodeji zajímavou investiční příležitost v atraktivní lokalitě obce Štěchovice u Prahy, která se nachází v okrese Praha-západ. Tento komerční pozemek o celkové ploše 585 m² představuje ideální základ pro rozvoj obchodních aktivit s bydlením. Součástí prodeje je projektová dokumentace se stavebním povolením.

Díky výhodné poloze v blízkosti hlavních dopravních tepen, včetně dobrého napojení na vlakovou dopravu, MHD a autobus, má tento pozemek vysoký potenciál přitáhnout zákazníky a zajistit výhodnou návratnost investice. Asfaltová vozovka zajišťuje bezproblémový přístup k pozemku a celkové okolí je dobře udržované, což přispívá k příjemnému vzhledu a atmosféře této lokality.

Investice do tohoto pozemku nabízí také možnosti pronájmu, což může představovat stabilní a pasivní příjem. Vzhledem k rostoucímu zájmu o tuto oblast a postupné urbanizaci regionu se zde otevírá prostor pro různé obchodní modely, což činí tuto příležitost ještě atraktivnější.

V oblasti jsou k dispozici veškeré potřebné inženýrské sítě, což usnadňuje plánování a realizaci případných projektů. Výhodné místo pro umístění obchodních prostor, služeb nebo menších skladovacích jednotek zaručuje široké spektrum využití.

Přijďte se podívat na tuto jedinečnou možnost investice do budoucnosti. V případě zájmu o prohlídku nás neváhejte kontaktovat.
Cena:
7 000 000 CZK / za nemovitost
Poznámka k ceně:
Upozornění:
Prodávající si vyhrazuje právo vybrat kupujícího na základě jím zvolených kritérií.
RX finance

Spočítejte si splátku hypotéky

Na kolik vás vyjde pořízení vlastního bydlení? Zadejte pár informací do naší hypoteční kalkulačky a hned si prohlédněte výsledek.

Kupní cena nemovitosti

7 000 000 Kč

Výše hypotéky

Doba splácení

Vypočítaná měsíční splátka

Úroková sazba 3.6%

260 990 Kč

Hypotéku zařídíme za vás

Ušetřete svůj čas i nervy. Naši makléři zařídí veškeré papírování a dovedou vás až k úspěšnému podpisu smlouvy v bance.

Nechte nám kontakt, náš makléř se v pracovní dny ozve do 24 hodin

* – toto pole je nutné vyplnit
Ivana Moravcová
RE/MAX Power 2
Zahradnická 550
Příbram III, 26101
Česká republika
Tel. na makléře: +420 733 691 124
Tel. do kanceláře: +420 800 266 366
E-mail: ivana.moravcova@re-max.cz

Potřebujete poradit/máte zájem o prohlídku?

* – toto pole je nutné vyplnit

Podrobné informace

Číslo zakázky:
ID 248-NP00849
Druh pozemku:
Pro komerční výstavbu
Celková plocha:
585 m²
Inženýrské sítě:
Vodovod, Kanalizace, Elektřina
Typ nemovitosti:
Pozemky
K nastěhování:
20. 11. 2025
Doprava:
Vlak, MHD, Autobus
Umístění objektu:
Centrum obce