Translate with 
MENU ZAVŘÍT

Pronájem výrobních prostor 2804 m², Plzeň (ID 202-NP03059)

ulice Libušínská, Plzeň – městská část Plzeň 2-Slovany mapa

300 000 Kč ( za měsíc)
GMimořádně
nehospodárná

2804 m2
Exkluzivně

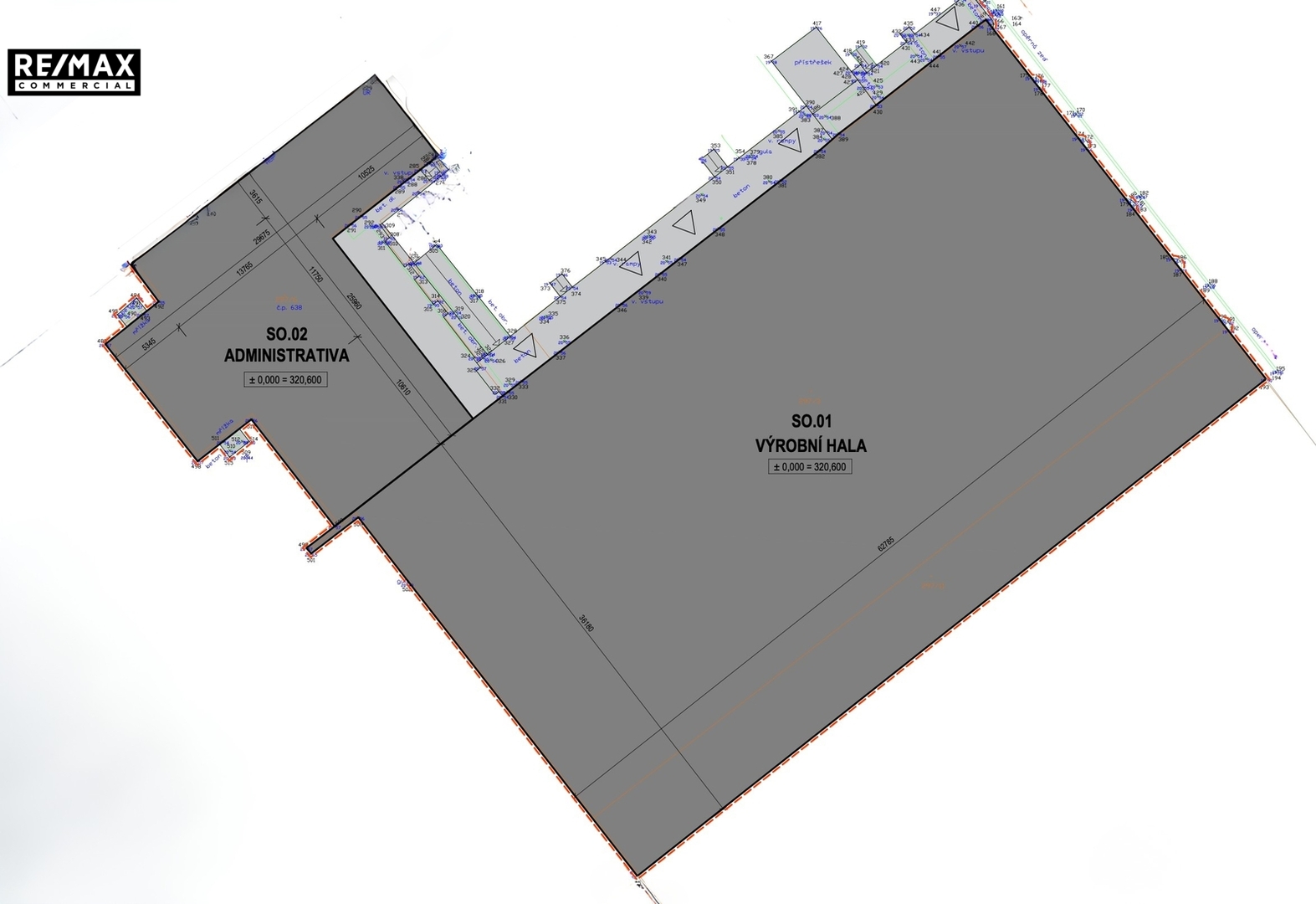
AREÁL PRO VÝROBU A SKLADOVÁNÍ PŘÍMO VE PLZNI O CELKOVÉ VÝMĚŘE 4261 m2

Představuji Vám pěknou výrobní a skladovací halu s administrativním zázemím v lokalitě Plzeň Božkov. Hala o celkové výměře 2181 m2 u.p. (plus kanceláře o výměře 160 m2 u.p., které jsou umístěny ve 2.NP) je umístěna v areálu, který je oplocený s vjezdovou bránou. Hala je postavena ze čtyř lodí o průběžné výšce 6 m. Hala samotná disponuje vjezdovými vraty 4 m výška a 3,5 m šířka. V hale se nachází kompresorovna, rozvod stlačeného vzduchu, dostatek elektro zásuvek 380 V. Z kanceláří ve 2.NP je přímý výhled do výrobní haly i do skladu. Kanceláře mají vlastní světlíky, je tedy zajištěno dostatečné denní světlo.Součástí výrobní haly je také samostatná, oddělená kancelář v přízemí haly určená pro mistra. Přímo z haly lze vstoupit do zázemí kde se nachází jídelna, denní místnost, sociální zařízení pro zaměstnance. K hale patří zpevněné plochy o celkové výměře 1415 m2. Naproti hale se nachází samostatný administrativní objekt, který disponuje kancelářemi a zázemím pro administrativní pracovníky o celkové výměře 499 m2.
Technické informace: čtyřlodní výrobní hala obdélníkového půdorysu o rozměrech 60,0x36,5 m je tvořena jednopodlažním ocelovým skeletem, hala je postavena
na ocelových sloupech, opláštění je provedeno sendvičovým pláštěm se zateplením z minerální vlny. Příčky jsou do 3,5 m zděné, nad tuto úroveň ze sádrokartonu. Střecha je sedlová, z trapézových plechů zateplená stříkanou PUR pěnou. V zadní části haly je provedena vestavba kanceláří. Okna jsou plastová, izolační dvojskla. Podlaha je z silničních panelů s vrchní vrstvou betonu, nosnost 2t/m2. V hale se nachází LED osvětlení a jsou instalovány skladovací regály Jungheinrich, k dispozici jsou paletové vozíky a VZV, software na skladovací systém, datový rozvod v serverovně, docházkový systém, vybavení kanceláří.
Administrativní budova je tvořena ocelovým skeletem, opláštění je provedeno ocelovými sendvičovými panely s minerální vlnou, okna jsou dřevěná, zdvojená a částečně plastová izolační dvojskla, podlaha betonová s vrstvou z pvc, koberců. Vnitřní příčky jsou v kombinaci zděné a částečně sádrokartonové. Obě budovy jsou napojeny na veškeré sítě, areál má vlastní trafo stanici. Vytápění v hale je teplovzdušnými topidly umístěnými na stěnách a v administrativní budově radiátory, zdrojem tepla je plynová kotelna. V kancelářích jsou klimatizační jednotky. Objekty jsou napojeny na obecní vodu a kanalizaci, v budovách jsou rozvedeny datové sítě. Do areálu je možný vjezd kamionů, součástí haly je nakládací rampa. Parkování osobních a nákladních vozidel přímo v areálu.
Nájemní smlouva minimálně na 3 roky s možností prodloužení. Kauce ve výši 300.000,- Kč + DPH, zálohy na poplatky Elektřina, plyn a odpad budou převedeny na nájemce. Kauce ve výši 600.000,- Kč. V hale může být až 180 zaměstnanců ve 3 směnách.
Výborná dopravní dostupnost, bus přímo na Hlavní nádraží, trolejbus č. 12 cca 150 m od haly.
Velmi pěkné. Doporučujeme!
Cena:
300 000 CZK / za měsíc
Poznámka k ceně:
Upozornění:
Pronajímající si vyhrazuje právo vybrat nájemce na základě jím zvolených kritérií.
Ing. Petra Feřteková
RE/MAX Commercial Group
Antala Staška 511/40
Praha 4 - Krč, 14000
Česká republika
Tel. na makléře: +420 733 618 703
Tel. do kanceláře: +420 733 152 553
E-mail: petra.fertekova@re-max.cz

Potřebujete poradit/máte zájem o prohlídku?

* – toto pole je nutné vyplnit

Podrobné informace

Číslo zakázky:
ID 202-NP03059
Typ nemovitosti:
Komerční prostory
Druh prostor:
Výrobní
Počet podlaží v objektu:
2
Plocha kanceláří:
2 804 m²
Druh objektu:
Skeletová
Stav objektu:
Velmi dobrý
K nastěhování:
1. 2. 2026
Doprava:
Dálnice, Silnice, MHD, Autobus
Elektřina:
230 V, 400 V
Odpad:
Kanalizace
Celková plocha:
2 804 m²
Plocha zahrady:
1 457 m²
Zastavěná plocha:
2 935 m²
Počet parkovacích míst:
20
Počet podlaží pod zemí:
1
Telekomunikace:
Internet
Typ domu:
Patrový
Umístění objektu:
Okraj obce
Voda:
Dálkový rozvod
Vybavení kanceláří:
Ano
Vybaveno:
Ano
Energetická náročnost budovy:
G