Translate with 
MENU ZAVŘÍT

Prodej chaty / chalupy 400 m², Hranice (ID 111-NP08594)

Hranice, okres České Budějovice mapa

10 500 000 Kč ( za nemovitost)
GMimořádně
nehospodárná

5+
400 m2
3199 m2
2
Exkluzivně

Prodej objektu k rekreaci, 400 m2, Hranice u Nových Hradů

Exkluzivně nabízíme k prodeji objekt v obci Hranice u Nových Hradů.
Tento dům sloužil v minulosti jako hostinec, cca před 22 lety byl opraven a přestavěn. Dnes slouží objekt k trvalému bydlení (bytová jednotka o dispozici 3+1). Část domu je využívána ke komerčnímu pronájmu. Nachází se zde 3 bytové k dlouhodobému pronájmu a 3 bytové jednotky ke krátkodobému pronájmu přes cestovatelské portály.
K nemovitosti náleží rozlehlý pozemek o rozloze 2.783 m2, kde je k dispozici přírodní jezírko- rybník, velký výběh pro chov slepic, altánek, pergola, udírna a garáž či dílna. Je zde dostatek prostoru pro pěstování plodin, či výstavbu dětského hřiště nebo bazénu. Rozloha pozemku nabízí v tomto směru široké využití.
Dům má 2 podlaží a dispozici 400 m2.
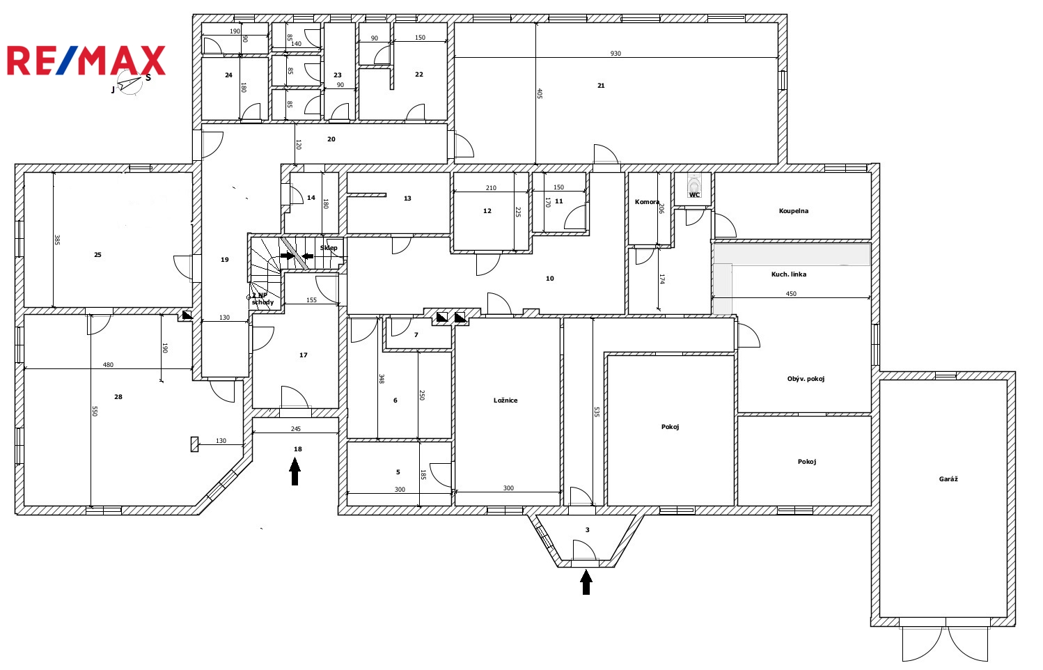
1. patro
V přízemí, vedle hlavního vchodu se nachází společenská místnost, která dříve sloužila jako restaurace. Některé původní prvky tohoto využití zde byly zachovány a tak je možné takový provoz obnovit či využít k různým společenským akcím a teambuildingům. Dominantou této místnosti je krb, který v chladnějších měsících navozuje jak teplo, tak příjemnou atmosféru. K dobré obslužnosti napomáhá menší, částečně vybavená kuchyň, která na tuto místnost navazuje.
Dále jsou v přízemí oddělené toalety a další společenská místnost - klubovna, kde je dominantou velký pingpongový stůl a vstup na rozlehlou venkovní terasu, kde je dostatek prostoru pro společenské posezení či relax.
Nachází se zde i sklep se vstupem na zahradu, který je možno využít jako kolárnu a dále je zde kotelna - dům je vytápěn kotlem na tuhá paliva.
Samostatný vchod vedle hlavního vstupu má v přízemí i bytová jednotka, která je momentálně využívaná k trvalému bydlení. Tato jednotka má dispozici 3+1.
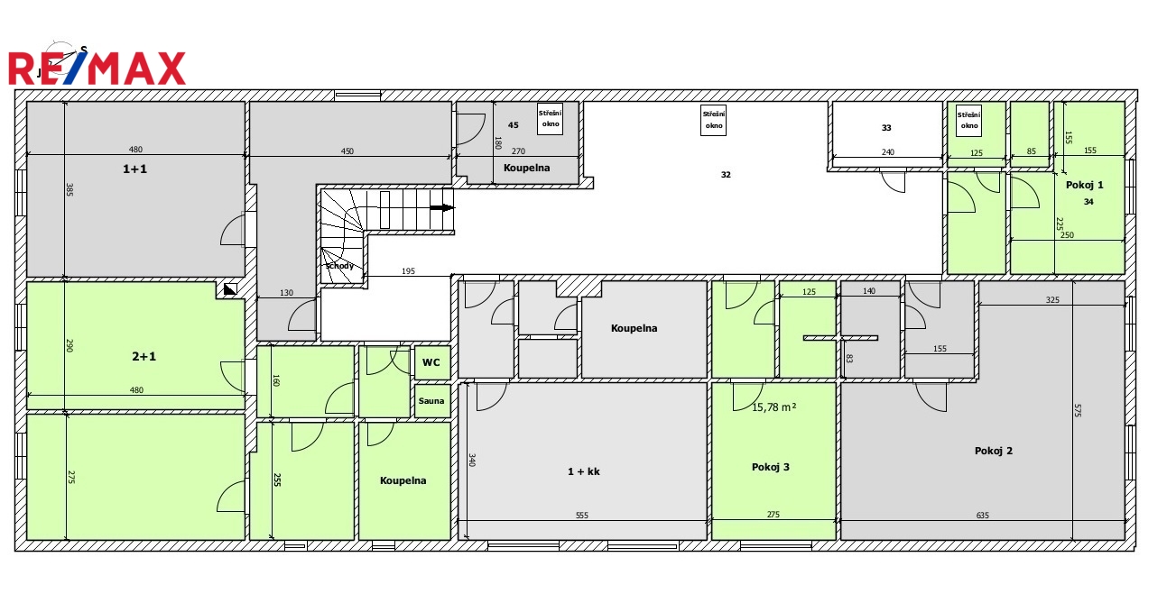
2.patro
Ve druhém patře se nachází 3 bytové jednotky, 2x 1+kk a 2+kk - tyto byty momentálně obývají trvalí nájemníci. Dále jsou zde 3 samostatné pokoje jako ubytování pro hosty, určené ke krátkodobým pobytům, provozované přes portál Airbnb. Tyto pokoje jsou vybaveny vlastní koupelnou a manželskou postelí či samostatnými lůžky.
Tyto prostory propojuje společná místnost, která je v tuto chvíli zaměřená na dětské aktivity - postýlka, přebalovací pult, hračky, knihovna a je zde i menší úložný prostor - komora.

Výhodou tohoto objektu je jeho široká možnost využití a investiční příležitost - ať už jako stávající ubytovací zařízení nebo i jako rekreační objekt pro vícečlennou rodinu či blízké a známé. Je možnost provoz rozšířit o pohostinství, restauraci, teambuildingové účely, firemní večírky. Nebo i objekt využít jako firemní prostor - výrobnu, sklad, dílnu a ubytovací zázemí pro zaměstnance.
Lokalita je ideální svou dobrou dopravní obslužností, v blízkosti jsou Nové Hrady, Suchdol nad Lužnicí i České Velenice, zároveň je v okolí klid a malebná příroda CHKO Třeboňska. Místo si najde hojné turistické využití díky dostatku cyklostezek. V dojezdové vzdálenosti jsou také oblíbené Novohradské hory.

V případě zájmu nás neváhejte kontaktovat.
Cena:
10 500 000 CZK / za nemovitost
Poznámka k ceně:
Upozornění:
Prodávající si vyhrazuje právo vybrat kupujícího na základě jím zvolených kritérií.
RX finance

Spočítejte si splátku hypotéky

Na kolik vás vyjde pořízení vlastního bydlení? Zadejte pár informací do naší hypoteční kalkulačky a hned si prohlédněte výsledek.

Kupní cena nemovitosti

10 500 000 Kč

Výše hypotéky

Doba splácení

Vypočítaná měsíční splátka

Úroková sazba 3.6%

260 990 Kč

Hypotéku zařídíme za vás

Ušetřete svůj čas i nervy. Naši makléři zařídí veškeré papírování a dovedou vás až k úspěšnému podpisu smlouvy v bance.

Nechte nám kontakt, náš makléř se v pracovní dny ozve do 24 hodin

* – toto pole je nutné vyplnit
Ing. Karel Exl
RE/MAX Dynamic
Kanovnická 75/4
České Budějovice, 37001
Česká republika
Tel. na makléře: +420 724 832 802
Tel. do kanceláře: +420 725 910 910
E-mail: karel.exl@re-max.cz

Potřebujete poradit/máte zájem o prohlídku?

* – toto pole je nutné vyplnit

Podrobné informace

Číslo zakázky:
ID 111-NP08594
Poloha objektu:
Řadový
Počet podlaží v objektu:
2
Užitná plocha:
400 m²
Plocha parcely:
3 199 m²
Druh objektu:
Cihlová
Stav objektu:
Dobrý
Typ nemovitosti:
Chaty a rekreační objekty
Doprava:
Silnice, Autobus
Elektřina:
230 V
Garáž:
Ano
Odpad:
Septik
Celková plocha:
400 m²
Plocha zahrady:
2 783 m²
Zastavěná plocha:
416 m²
Typ domu:
Patrový
Voda:
Dálkový rozvod
Vybaveno:
Ano
Energetická náročnost budovy:
G