Translate with 
MENU ZAVŘÍT

Prodej domu 259 m², Plzeň (ID 273-NP04503)

ulice Podélná, Plzeň – městská část Plzeň 2-Slovany mapa

Cena na vyžádání v kanceláři
ENehospodárná

5+
259 m2
1010 m2
2
Exkluzivně

Prodej rodinného domu, 259 m2, Plzeň-Černice

Vila se skvělým potenciálem | Plzeň – Černice | 5+2 | 259 m² | 1 010 m² pozemek

Hledáte prostorný rodinný dům v jedné z nejpříjemnějších plzeňských čtvrtí? Tahle elegantní vila ze 70. let v Plzni – Černicích nabízí kombinaci skvělé adresy, velkorysého pozemku, perfektní dopravní dostupnosti a obrovského potenciálu do budoucna.

Hlavní přednosti nemovitosti:
- celková podlahová plocha 259 m²
- dispozice 5+2 ve dvou nadzemních podlažích
- možnost rozdělení na dvě samostatné bytové jednotky – ideální pro dvougenerační bydlení nebo investici
- velkorysý pozemek 1 010 m² se soukromím a prostorem pro další rozvoj
- možnost výstavby druhého domu na pozemku
- exteriér po kompletní rekonstrukci
- střecha (pálené tašky Tondach + oplechování)
- zateplení a nová fasáda
- nová plastová okna
- klimatizace v horním patře
- původní interiér – možnost modernizace přesně podle vašich představ
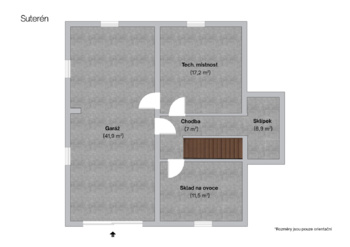
- suterén: garáž, dílna, technická místnost a prostorné sklepy
- venkovní parkování na pozemku i před domem

Pro koho je tato vila ideální?
- rodinu hledající prostor, zázemí, klid a skvělou adresu
- investora se zájmem o dvougenerační nebo nájemní projekt
- ty, kteří chtějí bydlet komfortně ve vilové čtvrti a zároveň mít vše po ruce

Tahle vila nabízí víc než jen bydlení — je to příležitost vytvořit generační rodinné sídlo nebo využít její mimořádný investiční potenciál naplno.
Nemovitosti jako tato se tu objevují jen zřídka. Domluvte si soukromou prohlídku ještě dnes a přijďte se přesvědčit na vlastní oči.
Cena:
Cena na vyžádání v kanceláři
Poznámka k ceně:
Upozornění:
Prodávající si vyhrazuje právo vybrat kupujícího na základě jím zvolených kritérií.
Jan Blecha
RE/MAX Partner
Řeporyjské náměstí 16
Praha 5 - Řeporyje, 15500
Česká republika
Tel. na makléře: +420 605 283 406
Tel. do kanceláře: +420 800 434 434
E-mail: jan.blecha@re-max.cz

Potřebujete poradit/máte zájem o prohlídku?

* – toto pole je nutné vyplnit

Podrobné informace

Číslo zakázky:
ID 273-NP04503
Poloha objektu:
Samostatný
Počet podlaží v objektu:
2
Užitná plocha:
259 m²
Plocha parcely:
1 010 m²
Druh objektu:
Cihlová
Stav objektu:
Velmi dobrý
Typ nemovitosti:
Domy a vily
Doprava:
Vlak, Dálnice, Silnice, MHD, Autobus
Elektřina:
230 V, 400 V
Garáž:
Ano
Odpad:
Kanalizace
Ostatní rozvody:
Satelit, Kabelové rozvody
Zastavěná plocha:
113 m²
Plyn:
Plynovod
Počet parkovacích míst:
2
Telekomunikace:
Internet
Typ domu:
Patrový
Voda:
Dálkový rozvod
Energetická náročnost budovy:
E