Translate with 
MENU ZAVŘÍT

Prodej bytu 4+1 v osobním vlastnictví 91 m², Praha 6 - Liboc (ID 061-NP03078)

ulice Navigátorů, Praha 6 – Liboc mapa

12 490 000 Kč ( za nemovitost)
GMimořádně
nehospodárná

1x
4x
91 m2
2/4
Exkluzivně

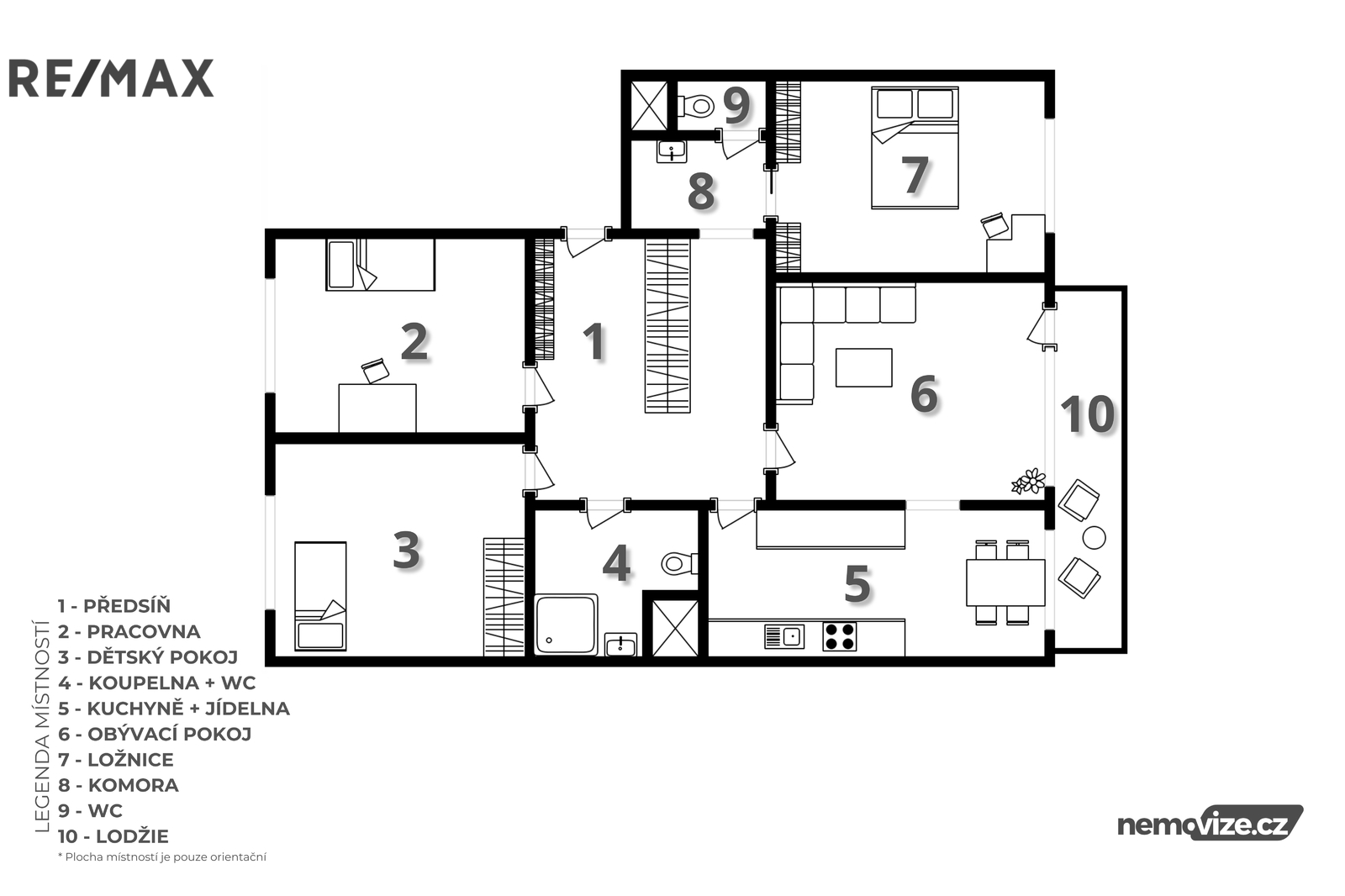
Prostorný byt 4+1 v Liboci

Nově vám k prodeji nabízíme prostorný byt 4+1 o celkové velikosti 91 m² v žádané a klidné lokalitě Prahy 6, v Liboci.

Byt je umístěn ve 2. nadzemním podlaží (1. patře) dobře udržovaného domu. Jedná se o mimořádně prostorný byt vhodný i pro velkou rodinu, který je kompletně připraven k okamžitému nastěhování bez nutnosti jakýchkoli dalších investic. Přibližně před deseti lety si prošel rozsáhlou rekonstrukcí a jeho současný stav nabízí plnohodnotné a komfortní užívání už od prvního dne. Dispozice 4+1 nabízí opravdu dostatek prostoru, který umocňuje velká zděná koupelna se sprchovým koutem a toaletou, druhá samostatná toaleta a také připravené rozvody pro vybudování další koupelny přesně podle vašich představ. Možnost vytvořit až dvě plnohodnotné koupelny výrazně zvyšuje pohodlí i praktičnost celého bytu. Kuchyň je plně vybavena myčkou, indukční varnou deskou, troubou, mikrovlnnou troubou, lednicí i mrazákem.

Součástí bytu je také zasklená lodžie orientovaná na jihovýchod, která zajišťuje příjemně prosvětlený prostor po celý den a nabízí ideální místo pro ranní kávu i večerní posezení. V obytných místnostech jsou položeny kvalitní plovoucí podlahy, zatímco v chodbě a koupelnách je praktická dlažba. Chodba navíc nabízí velkorysé vestavné skříně, které poskytují spoustu úložného prostoru.

K bytu náleží dva prostorné sklepy – jeden velký s oknem (přímo na patře) a druhý v suterénu domu.
V bytě je k dispozici i plyn, aktuálně odpojený, a možnost kabelové televize.

Parkování v okolí domu je bezproblémové. Lokalita Liboc patří mezi nejvyhledávanější části Prahy díky kombinaci klidného prostředí, výborné občanské vybavenosti a rychlé dostupnosti do centra. V bezprostřední blízkosti se nachází přírodní park Divoká Šárka, ideální pro sport i rodinné procházky. V okolí jsou školy, školky, obchody, restaurace, sportoviště i veškeré služby. Zastávky MHD jsou v docházkové vzdálenosti a cesta na letiště i do centra je velmi rychlá.

Tenhle byt je tak ideální volbou pro ty, kteří hledají opravdu prostorné, kvalitní a dobře situované bydlení bez nutnosti dalších investic.
Prohlídka vás o výjimečnosti této nabídky přesvědčí. Těšíme se na vás osobně!
Cena:
12 490 000 CZK / za nemovitost
Poznámka k ceně:
Uvedená cena obsahuje veškeré poplatky za služby RE/MAX.
Upozornění:
Prodávající si vyhrazuje právo vybrat kupujícího na základě jím zvolených kritérií.
RX finance

Spočítejte si splátku hypotéky

Na kolik vás vyjde pořízení vlastního bydlení? Zadejte pár informací do naší hypoteční kalkulačky a hned si prohlédněte výsledek.

Kupní cena nemovitosti

12 490 000 Kč

Výše hypotéky

Doba splácení

Vypočítaná měsíční splátka

Úroková sazba 3.6%

260 990 Kč

Hypotéku zařídíme za vás

Ušetřete svůj čas i nervy. Naši makléři zařídí veškeré papírování a dovedou vás až k úspěšnému podpisu smlouvy v bance.

Nechte nám kontakt, náš makléř se v pracovní dny ozve do 24 hodin

* – toto pole je nutné vyplnit
Matyáš Staněk
RE/MAX 4 You II
Antala Staška 511/40
Praha 4 - Krč, 14000
Česká republika
Tel. na makléře: +420 773 604 679
Tel. do kanceláře: +420 733 152 553
E-mail: matyas.stanek@re-max.cz

Potřebujete poradit/máte zájem o prohlídku?

* – toto pole je nutné vyplnit

Podrobné informace

Číslo zakázky:
ID 061-NP03078
Dispozice:
4+1
Číslo podlaží:
2
Počet podlaží v objektu:
4
Podlahová plocha:
91 m²
Druh objektu:
Panelová
Stav objektu:
Velmi dobrý
Vlastnictví:
Osobní
Typ nemovitosti:
Byty
Bezbariérový byt:
Ano
Doprava:
Vlak, Dálnice, Silnice, MHD, Autobus
Elektřina:
120 V, 230 V
Odpad:
Kanalizace
Užitná plocha:
91 m²
Zastavěná plocha:
1 206 m²
Plyn:
Plynovod
Počet podlaží pod zemí:
1
Telekomunikace:
Telefon, Internet
Umístění objektu:
Klidná část obce
Voda:
Dálkový rozvod
Vybaveno:
Ano
Energetická náročnost budovy:
G