Translate with 
MENU ZAVŘÍT

Pronájem bytu 4+kk v osobním vlastnictví 85 m², Šumperk (ID 349-NP00125)

ulice Zábřežská, Šumperk mapa

18 000 Kč ( za měsíc)
GMimořádně
nehospodárná

kk
4x
85 m2
2/4

Pronájem bytové jednotky 4+kk na ulici Zábřežská v Šumperku.

4+kk, 85 m² | Zábřežská 25, Šumperk
Hledáte prostorné bydlení, kde si každý člen rodiny najde svůj vlastní kout, ale zároveň zůstáváte blízko centra? Tenhle byt v Šumperku na Zábřežské ulici má všechno, co rodinné pohodě dělá dobře – prostor, klid, soukromí i společnou zahrádku za domem pro chvíle venku.

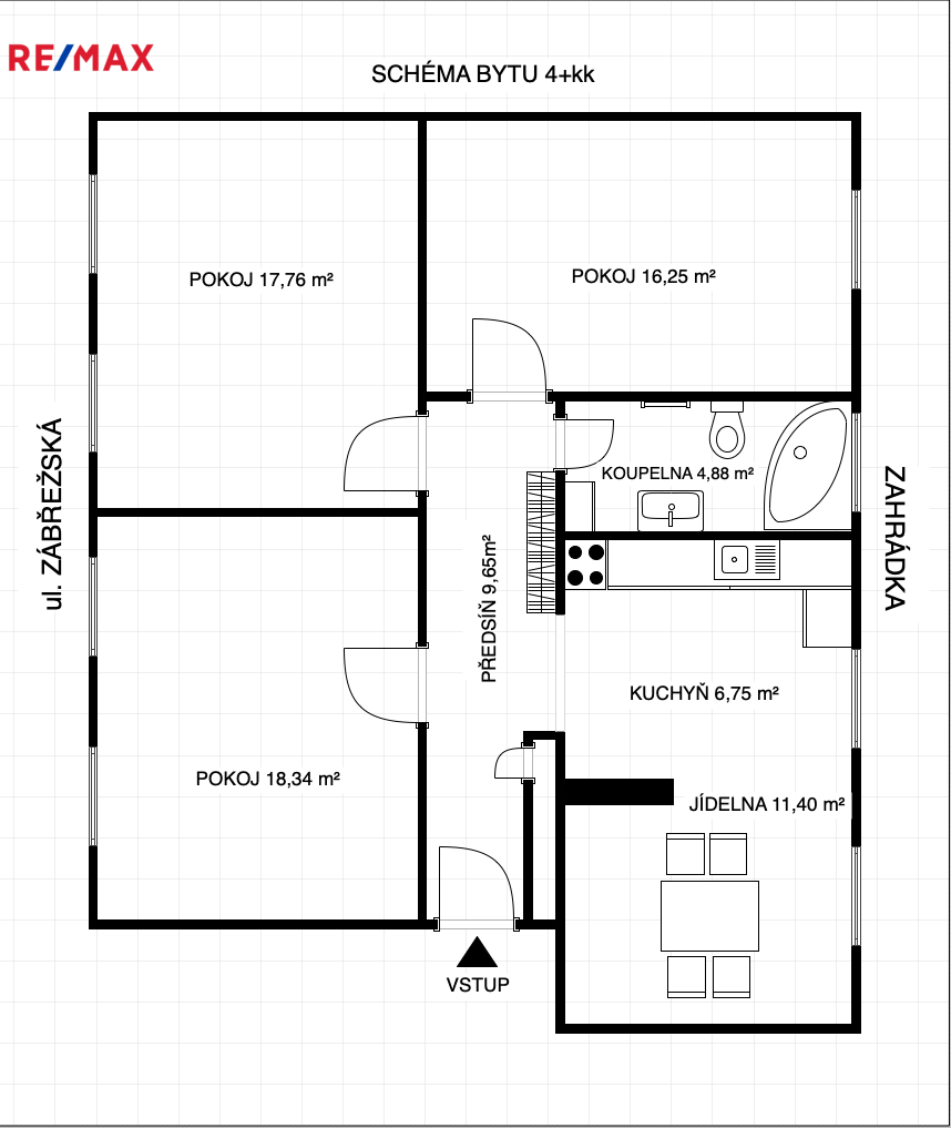
Byt o užitné ploše 85 m² je umístěný ve 2. NP menšího třípodlažního domu se šesti byty, takže žádný velký provoz, žádné nekonečné kroky na chodbách. Uvnitř najdete chytré dispoziční řešení: tři neprůchozí pokoje o výměrách 18,34 m², 17,76 m² a 16,25 m² – ideální pro děti, práci z domu nebo komfortní ložnici.
Srdcem bytu je prostorná kuchyně s jídelnou (18 m²), kde se snadno potkáte u snídaně i večerní debaty.
Koupelna s toaletou má 4,88 m² a je tu i prostorná předsíň s užitečnou vestavěnou skříní, která ušetří starosti s úložným prostorem.
Vytápění a ohřev vody zajišťuje vlastní plynový kotel, takže máte spotřebu i teplotu pod kontrolou.
K bytu patří také sklep o krásných 17 m² – ideální na sportovní vybavení, kola i sezónní věci. A jako bonus můžete využívat společnou zahrádku za domem, která je perfektní na odpolední kávu, knížku nebo venkovní hry s dětmi.
________________________________________
Náklady:
Nájemné: 18.000 Kč
Zálohy: plyn 2.000 Kč | elektřina 1.000 Kč | studená voda dle počtu osob
Kauce: ve výši dvou nájmů
Provize RK: ve výši jednoho nájmu
________________________________________
Byt je k dispozici ihned a hledáme dlouhodobý pronájem, pouze pro nekuřáky a slušnou rodinu, která ocení klidné a prostorné bydlení v dostupné části Šumperka.
V případě zájmu nás neváhejte kontaktovat.
Prohlídku bytu Vám zajistí Blanka Šupinová , tel.č. 739 116 915
Cena:
18 000 CZK / za měsíc
Poznámka k ceně:
Upozornění:
Pronajímající si vyhrazuje právo vybrat nájemce na základě jím zvolených kritérií.
Zdeněk Šupina
RE/MAX Relations
Staškova 169/69
Mohelnice, 78985
Česká republika
Tel. na makléře: +420 737 729 446
Tel. do kanceláře: +420 731 305 955
E-mail: zdenek.supina@re-max.cz

Potřebujete poradit/máte zájem o prohlídku?

* – toto pole je nutné vyplnit

Podrobné informace

Číslo zakázky:
ID 349-NP00125
Dispozice:
4+kk
Číslo podlaží:
2
Počet podlaží v objektu:
4
Podlahová plocha:
85 m²
Druh objektu:
Cihlová
Stav objektu:
Velmi dobrý
Vlastnictví:
Osobní
Typ nemovitosti:
Byty
K nastěhování:
1. 12. 2025
Doprava:
Vlak, Silnice, MHD, Autobus
Elektřina:
230 V
Odpad:
Kanalizace
Užitná plocha:
85 m²
Zastavěná plocha:
232 m²
Plyn:
Plynovod
Počet podlaží pod zemí:
1
Voda:
Dálkový rozvod
Energetická náročnost budovy:
G