Translate with 
MENU ZAVŘÍT

Pronájem bytu 1+kk v osobním vlastnictví 21 m², Plzeň (ID 358-NP00002)

ulice Prokopova, Plzeň – městská část Plzeň 3 mapa

Pronajato
GMimořádně
nehospodárná

kk
1x
21 m2
3/3
Exkluzivně Pronajato

Pronájem bytu 1+kk v osobním vlastnictví 21 m² m v centru Plzně, Prokopova ul.

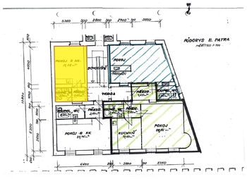
Nabízíme k pronájmu malý útulný byt o velikosti 1 + kk s užitnou plochou 21 m², situovaný ve 3. nadzemním podlaží budovy se smíšenou konstrukcí v lokalitě Plzeň, konkrétně v části obce Jižní Předměstí, téměř v centru města, pouhou minutu chůze od Americké třídy a v těsné blízkosti Smetanových sadů, které nabízejí krásný park, kavárny, restaurace a obchody.

Bytová jednotka bez spotřebičů a nábytku, je dispozičně řešena předsíní (kde je přípojka na pračku), ze které vstupujete do koupelny vybavené sprchovým koutem, umyvadlem a toaletou. Hlavní obytný prostor je spojený s kuchyňským a jídelním koutem, který je vybavený kuchyňskou linkou s dřezem, ale bez spotřebičů. Z bytu je krásný výhled na řeku, což přidává na pohodlí a atraktivitě bydlení.

Vytápění je zajištěno ústředním topením s centrálním dálkovým ohřevem a zdrojem teplé vody. Odpad je odváděn do kanalizace a k bytu je zajištěn přívod vody z vodovodu a elektřina 230 V.

Lokalita skýtá výbornou občanskou vybavenost. V blízkosti se nacházejí školky, školy, lékaři, obchody i restaurace. Dopravní dostupnost je skvělá, s možnostmi vlakového, autobusového a MHD spojení, což usnadňuje cestování po městě. Parkování je možné v přilehlých ulicích.

Celková výše pronájmu činí 11.000 Kč, přičemž čistý nájem je 6.000 Kč, a k tomu se připočítávají fixní poplatky za služby (včetně tepla, teplé a studené vody, komunálního odpadu a údržby společných prostor) ve výši 3.600 Kč a záloha na elektriku činí 1.400 Kč. Při podpisu nájemní smlouvy je třeba uhradit nájemné ve výši 11.000 Kč, vratnou kauci ve výši 3x nájem (33.000 Kč) a provizi RK ve výši 11.000 Kč + DPH.

Byt je k dispozici k okamžitému nastěhování a je ideální pro pohodlné bydlení jednotlivce nebo páru. V případě zájmu o prohlídku nebo bližší informace nás neváhejte kontaktovat.
Cena:
Pronajato
Poznámka k ceně:
Upozornění:
Pronajímající si vyhrazuje právo vybrat nájemce na základě jím zvolených kritérií.
Martin Solucev
RE/MAX Axis 2
Skupova 490/24
Plzeň, 30100
Česká republika
Tel. na makléře: +420 601 013 013
Tel. do kanceláře: +420 601 013 013
E-mail: martin.solucev@re-max.cz

Potřebujete poradit/máte zájem o prohlídku?

* – toto pole je nutné vyplnit

Podrobné informace

Číslo zakázky:
ID 358-NP00002
Dispozice:
1+kk
Číslo podlaží:
3
Počet podlaží v objektu:
3
Podlahová plocha:
21 m²
Druh objektu:
Smíšená
Stav objektu:
Dobrý
Vlastnictví:
Osobní
Typ nemovitosti:
Byty
K nastěhování:
1. 12. 2025
Doprava:
Vlak, Dálnice, Silnice, MHD, Autobus
Elektřina:
230 V
Odpad:
Kanalizace
Užitná plocha:
21 m²
Zastavěná plocha:
239 m²
Plyn:
Plynovod
Voda:
Dálkový rozvod
Vybaveno:
Ano
Energetická náročnost budovy:
G