Translate with 
MENU ZAVŘÍT

Prodej domu 98 m², Nové Město na Moravě (ID 273-NP04530)

ulice Bělisko, Nové Město na Moravě mapa

5 900 000 Kč ( za nemovitost)
GMimořádně
nehospodárná

5+
98 m2
839 m2
3
Exkluzivně

Prodej rodinného domu se stavebním pozemkem– ul. Bělisko, Nové Město na Moravě

Jen málokdy se na trhu objeví rodinný dům, který nabízí klidné prostředí, soukromí a zároveň stavební pozemek v zastavěném území o této velikosti. Právě takovou příležitost představujeme v ulici Bělisko – v části Nového Města na Moravě, kde se nemovitosti prodávají jen výjimečně.

Dům stojí na pozemku o celkové výměře 839 m² (178 m² zastavěná plocha + 661 m² zahrada). Zahrada – parc. č. 2012 – je dle územního plánu Nového Města na Moravě součástí zastavěného území a je zařazena do stabilizovaných ploch BI – bydlení individuální. Jedná se tedy o stavební pozemek s jasně stanoveným a dlouhodobě stabilním způsobem využití. BI plochy umožňují rodinné domy, služby slučitelné s bydlením, drobné občanské vybavení, stavby související s bydlením i menší ubytování do 24 lůžek.

Díky tomu nabízí pozemek široké možnosti pro budoucí rozvoj – od rozšíření stávajícího domu až po výstavbu další stavby nebo realizaci vlastního projektu. V obytných částech města jsou tyto pozemky dlouhodobě ceněné právě pro svou stabilitu a flexibilitu.

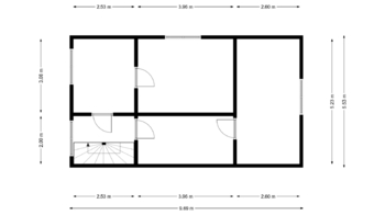
Samotný dům je ve stavu určeném k rekonstrukci, dvoupodlažní, částečně podsklepený, s užitnou plochou 98,29 m² (orientační výměra vzhledem k dispozici a konstrukci). Je napojen na elektřinu, plyn, vodovod i kanalizaci, což případnou modernizaci nebo novou výstavbu výrazně usnadňuje.

Ulice Bělisko je tichá, stabilní rezidenční část města, obklopená zelení, s rychlou dostupností centra, sportovišť i přírody. Nemovitosti v této lokalitě jsou na trhu spíše výjimečné a dlouhodobě si drží svou hodnotu.

Tato nemovitost je ideální volbou pro toho, kdo hledá rodinný dům k rekonstrukci na větším stavebním pozemku, nebo atraktivní investiční příležitost s významným potenciálem do budoucna.

Pokud vás nabídka zaujala, ozvěte se mi. Ráda vám poskytnu více informací nebo domluvím prohlídku.
Cena:
5 900 000 CZK / za nemovitost
Poznámka k ceně:
Upozornění:
Prodávající si vyhrazuje právo vybrat kupujícího na základě jím zvolených kritérií.
RX finance

Spočítejte si splátku hypotéky

Na kolik vás vyjde pořízení vlastního bydlení? Zadejte pár informací do naší hypoteční kalkulačky a hned si prohlédněte výsledek.

Kupní cena nemovitosti

5 900 000 Kč

Výše hypotéky

Doba splácení

Vypočítaná měsíční splátka

Úroková sazba 3.6%

260 990 Kč

Hypotéku zařídíme za vás

Ušetřete svůj čas i nervy. Naši makléři zařídí veškeré papírování a dovedou vás až k úspěšnému podpisu smlouvy v bance.

Nechte nám kontakt, náš makléř se v pracovní dny ozve do 24 hodin

* – toto pole je nutné vyplnit
Veronika Chlubna
RE/MAX Partner
Řeporyjské náměstí 16
Praha 5 - Řeporyje, 15500
Česká republika
Tel. na makléře: +420 608 939 940
Tel. do kanceláře: +420 800 434 434
E-mail: veronika.chlubna@re-max.cz

Potřebujete poradit/máte zájem o prohlídku?

* – toto pole je nutné vyplnit

Podrobné informace

Číslo zakázky:
ID 273-NP04530
Poloha objektu:
Samostatný
Počet podlaží v objektu:
3
Užitná plocha:
98 m²
Plocha parcely:
839 m²
Druh objektu:
Smíšená
Stav objektu:
Před rekonstrukcí
Typ nemovitosti:
Domy a vily
K nastěhování:
4. 12. 2025
Odpad:
Kanalizace
Plocha zahrady:
661 m²
Zastavěná plocha:
178 m²
Plyn:
Plynovod
Počet podlaží pod zemí:
1
Typ domu:
Přízemní
Voda:
Dálkový rozvod
Vybaveno:
Ano
Energetická náročnost budovy:
G