Translate with 
MENU ZAVŘÍT

Prodej domu 175 m², Březnice (ID 345-NP00033)

Březnice – část obce Dobrá Voda mapa

4 350 000 Kč ( za nemovitost)
GMimořádně
nehospodárná

4x
175 m2
677 m2
3
Exkluzivně

Prodej rodinného domu 4+1, 175 m², Dobrá Voda u Březnice

Nabízíme k prodeji rodinný dům o velikosti 175 m², který se nachází v obci Dobrá Voda u Březnice. Dům stojí na pozemku o celkové výměře 677 m² a je ideální volbou pro ty, kteří hledají místo k bydlení v klidném prostředí. Dobrá Voda leží kousek od Příbrami, což zajišťuje pohodlné spojení se službami i zaměstnáním.

Dům je částečně zrekonstruovaný a představuje ideální příležitost pro ty, kteří si chtějí vytvořit bydlení dle vlastních představ. Velkou výhodou je možnost čerpání dotačních programů na zateplení a modernizaci.
Součástí prodeje je již zakoupený materiál, mimo jiné plastová okna, dřevo na kompletní krov a plechová krytina.
V domě není instalován topný systém, což umožňuje zvolit si způsob vytápění dle individuálních preferencí (tepelné čerpadlo, krb, elektrokotel apod.).

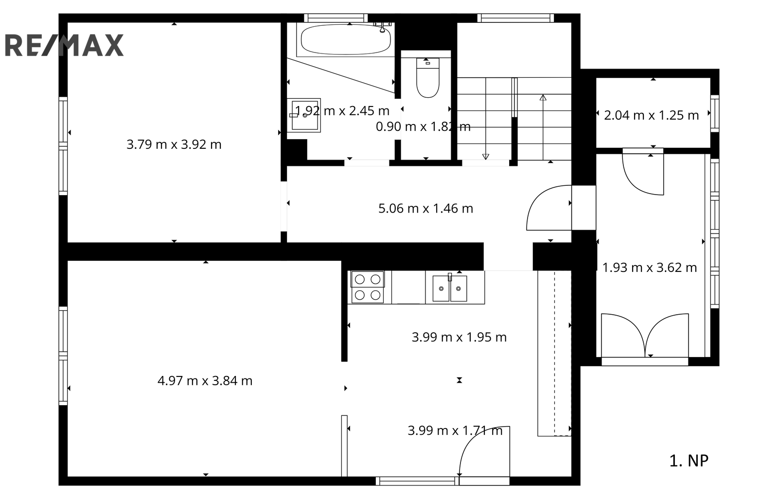
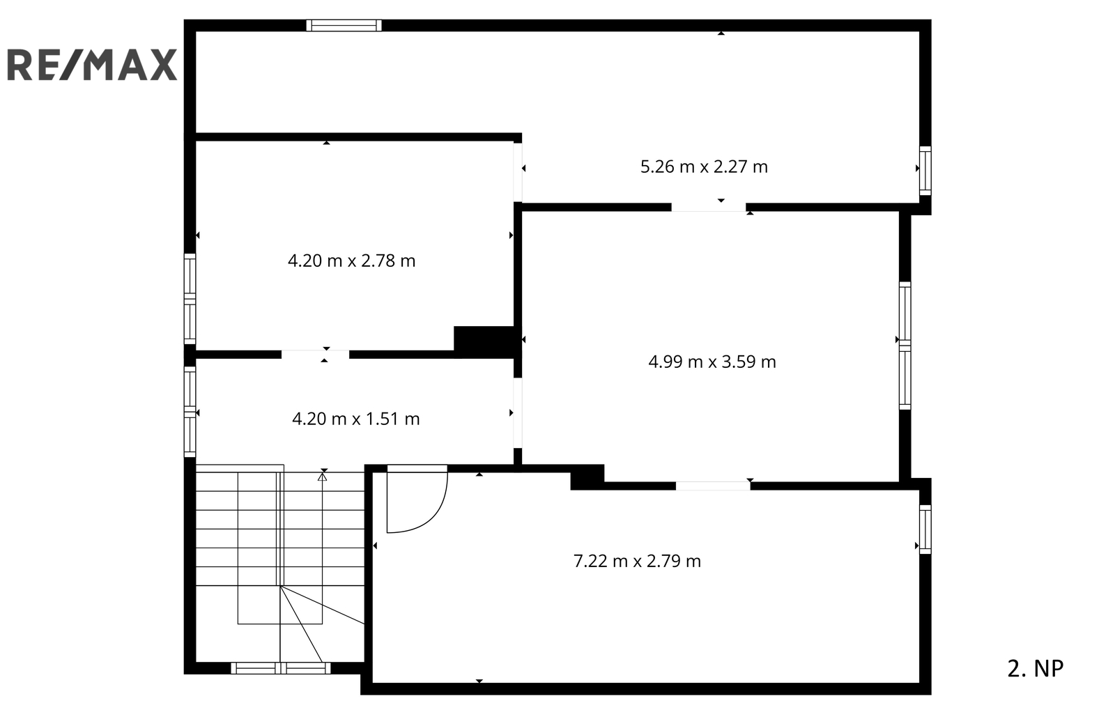
Dům má dispozici 4+1, sklep o velikosti 34 m² a nabízí široké možnosti individuálního řešení interiéru. Na pozemku se dále nachází samostatně stojící garáž se stodolou, která je určena k rekonstrukci a může sloužit jako dílna, sklad nebo další užitný prostor. K dispozici je také vlastní studna.
Zahrada poskytuje příjemné zázemí pro relaxaci, včetně ohniště s grilem.

Velkou předností je umístění domu na hranici chráněné krajinné oblasti, které zaručuje klidné prostředí a jistotu, že v okolí nebude probíhat další výstavba. V obci se nachází vlakové nádraží i autobusová zastávka, zajišťující dobré dopravní spojení.
V Dobré Vodě navíc probíhá výstavba nového domova pro seniory s plánovaným otevřením v roce 2026, což pozitivně ovlivní občanskou vybavenost i celkovou atraktivitu této lokality.
Cena:
4 350 000 CZK / za nemovitost
Poznámka k ceně:
Upozornění:
Prodávající si vyhrazuje právo vybrat kupujícího na základě jím zvolených kritérií.
RX finance

Spočítejte si splátku hypotéky

Na kolik vás vyjde pořízení vlastního bydlení? Zadejte pár informací do naší hypoteční kalkulačky a hned si prohlédněte výsledek.

Kupní cena nemovitosti

4 350 000 Kč

Výše hypotéky

Doba splácení

Vypočítaná měsíční splátka

Úroková sazba 3.6%

260 990 Kč

Hypotéku zařídíme za vás

Ušetřete svůj čas i nervy. Naši makléři zařídí veškeré papírování a dovedou vás až k úspěšnému podpisu smlouvy v bance.

Nechte nám kontakt, náš makléř se v pracovní dny ozve do 24 hodin

* – toto pole je nutné vyplnit
Ondřej Karmazín
RE/MAX Reliable
Poděbradská 489/116
Praha, 19800
Česká republika
Tel. na makléře: +420 732 595 640
Tel. do kanceláře: +420 721 183 838
E-mail: ondrej.karmazin@re-max.cz

Potřebujete poradit/máte zájem o prohlídku?

* – toto pole je nutné vyplnit

Podrobné informace

Číslo zakázky:
ID 345-NP00033
Poloha objektu:
Samostatný
Počet podlaží v objektu:
3
Užitná plocha:
175 m²
Plocha parcely:
677 m²
Druh objektu:
Cihlová
Stav objektu:
Dobrý
Typ nemovitosti:
Domy a vily
Charakter okolní zástavby:
Obytná
Doprava:
Vlak, Dálnice, Silnice, MHD, Autobus
Elektřina:
230 V
Garáž:
Ano
Odpad:
Kanalizace
Plocha zahrady:
575 m²
Zastavěná plocha:
102 m²
Počet podlaží pod zemí:
1
Telekomunikace:
Internet
Typ domu:
Přízemní
Umístění objektu:
Klidná část obce
Voda:
Zdroj pro celý objekt
Vybaveno:
Ano
Energetická náročnost budovy:
G
Měrná vypočtená roční spotřeba energie v kWh/m²/rok:
844