Translate with 
MENU ZAVŘÍT

Prodej bytu 2+kk v osobním vlastnictví 52 m², Zbůch (ID 179-NP02382)

ulice Náměstí, Zbůch mapa

3 750 000 Kč ( za nemovitost)
BVelmi
úsporná

kk
2x
52 m2
1/4
Exkluzivně

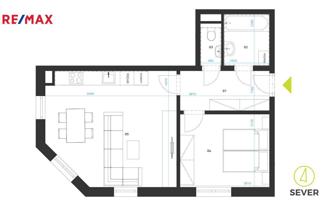
Prodej bytu 2+kk, 52,30 m² – Zbůch

K prodeji je moderní bytová jednotka o dispozici 2+kk a podlahové ploše 52,30 m², umístěná v 1. nadzemním podlaží (přízemí) zánovní stavby, která vznikla jako součást developerského projektu v centru obce Zbůch. K bytu náleží výhradní užívání zděné sklepní kóje o velikosti cca 2 m², umístěné taktéž v 1. NP.

Byt je vybaven kuchyňskou linkou s elektrickou varnou deskou, elektrickou troubou a odsavačem par. Koupelna je osazena sprchovým koutem, umyvadlem a přípojkou pro pračku. V obytných místnostech jsou laminátové podlahy o tloušťce 8 mm s izolačními podkladovými deskami (SUPELLEX). V předsíni, koupelně a samostatném WC jsou keramické obklady a dlažba, sanita značky Vitra S50 (SIKO). Dveře, zárubně a obložky jsou provedeny v CPL laminu (SEPOS).

Dům je postaven ze železobetonového monolitu a z obou stran tepelně izolován dřevoskelnou štěpkou, z vnější strany doplněnou o vrstvu grafitového polystyrenu. Splňuje moderní technické standardy – energetická náročnost budovy je ve třídě B. Vytápění i ohřev teplé vody zajišťuje společné domovní tepelné čerpadlo. Okna jsou plastová s trojskly, elektroinstalace je v mědi (230/380 V) a rozvody vody i kanalizace jsou provedeny v plastu. V bytě je instalována vzduchotechnika v koupelně, komínové potrubí pro odvod vzduchu od digestoře v kuchyňském koutě a domovní telefon s funkcí videofonu. V domě se nachází sedm bytových jednotek.

Obec Zbůch nabízí základní občanskou vybavenost – obchody, poštu, lékaře, mateřskou i základní školu. Je zde autobusové i vlakové spojení. Plzeň – Borská pole jsou autem dostupná přibližně za 10 minut a nájezd na dálnici D5 za pouhé 3 minuty.

Koupi bytu lze financovat hypotečním úvěrem, který vám rádi pomůžeme zajistit.
Cena:
3 750 000 CZK / za nemovitost
Poznámka k ceně:
vč. základních právních služeb, vč. odměny kanceláře, bez poplatku na katastr nemovitostí.
Upozornění:
Prodávající si vyhrazuje právo vybrat kupujícího na základě jím zvolených kritérií.
RX finance

Spočítejte si splátku hypotéky

Na kolik vás vyjde pořízení vlastního bydlení? Zadejte pár informací do naší hypoteční kalkulačky a hned si prohlédněte výsledek.

Kupní cena nemovitosti

3 750 000 Kč

Výše hypotéky

Doba splácení

Vypočítaná měsíční splátka

Úroková sazba 3.6%

260 990 Kč

Hypotéku zařídíme za vás

Ušetřete svůj čas i nervy. Naši makléři zařídí veškeré papírování a dovedou vás až k úspěšnému podpisu smlouvy v bance.

Nechte nám kontakt, náš makléř se v pracovní dny ozve do 24 hodin

* – toto pole je nutné vyplnit
Martin Petr
RE/MAX Cross
Resslova 9
Plzeň, 30100
Česká republika
Tel. na makléře: +420 602 665 317
Tel. do kanceláře: +420 731 618 422
E-mail: martin.petr@re-max.cz

Potřebujete poradit/máte zájem o prohlídku?

* – toto pole je nutné vyplnit

Podrobné informace

Číslo zakázky:
ID 179-NP02382
Dispozice:
2+kk
Číslo podlaží:
1
Počet podlaží v objektu:
4
Podlahová plocha:
52 m²
Druh objektu:
Skeletová
Stav objektu:
Velmi dobrý
Vlastnictví:
Osobní
Typ nemovitosti:
Byty
Bezbariérový byt:
Ano
Charakter okolní zástavby:
Obytná
K nastěhování:
10. 12. 2025
Doprava:
Vlak, Dálnice, Silnice, Autobus
Elektřina:
230 V
Odpad:
Kanalizace
Ostatní rozvody:
Satelit
Užitná plocha:
52 m²
Zastavěná plocha:
178 m²
Plyn:
Plynovod
Telekomunikace:
Internet
Umístění objektu:
Centrum obce
Voda:
Dálkový rozvod
Energetická náročnost budovy:
B
Měrná vypočtená roční spotřeba energie v kWh/m²/rok:
42