Translate with 
MENU ZAVŘÍT

Pronájem jiných prostor 102 m², Ostrava (ID 130-NP03515)

ulice Zborovská, Ostrava – městská část Moravská Ostrava a Přívoz mapa

30 000 Kč ( za měsíc)
GMimořádně
nehospodárná

102 m2
Exkluzivně

Pronájem ruční automyčky 102m2, Moravská Ostrava a Přívoz

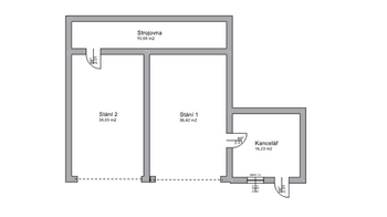
Nabízíme k pronájmu nově zřízenou ruční automyčku na strategickém místě v Ostravě. Prostor se skládá ze 2 kompletně vybavených mycích boxů, kanceláře, strojovny a zázemí, umístěných přímo v objektu Zborovská 7, s dalšími službami pro automobily (autoservis, pneuservis, atp.).
Prostor je vhodný pro začínající podnikatele i zavedené firmy, které chtějí rozšířit své služby. Podstatnou výhodou je navazující zařízená kancelář a zázemí pro ruční čištění a čištění interiérů, případně další služby.
Co automyčka nabízí:
• Moderně vybavené 2 mycí boxy
• Profesionální technologie a kvalitní zařízení, pravidelný servis dodavatele
• Bezproblémový příjezd a dobrá viditelnost z komunikace
• Možnost doplnění o detailing - ruční čištění interiérů či další služby
• Parkovací místa pro zákazníky, doplněná o vysavače a kompresor
• Stabilní klientela a sídla mnoha firem v okolí (Asental, Innogy, Radnice města Ostravy, Česká televize a další)
Výhody:
• Skvělá lokalita v rámci Ostravy
• Možnost okamžitého zahájení provozu
• Flexibilní podmínky pronájmu
Měsíční úhrady:
- Měsíční nájemné 30.000,- Kč
- Amortizace technologie (v záruce) 20.000,- Kč
- Zálohy na služby (elektřina a voda) 3.500,- Kč
- Náklady na doplňování kapalin (šampony, vosk, změkčovadla atp.) cca 5.000,- Kč
Pokud hledáte příležitost podnikat v prosperujícím oboru, tohle je ideální volba.
Předpokládaný výnos z provozu 100.000-160.000,- Kč/měsíc.
Kontaktujte nás pro prohlídku nebo více detailů.
Cena:
30 000 CZK / za měsíc
Poznámka k ceně:
vratná kauce 2x měs.nájemné, nájemce neplatí provizi RK
Upozornění:
Pronajímající si vyhrazuje právo vybrat nájemce na základě jím zvolených kritérií.
Lukáš Dulava
RE/MAX Elite Reality 2
Dělnická 752/78
Havířov - Prostřední Suchá, 73564
Česká republika
Tel. na makléře: +420 731 633 328
Tel. do kanceláře: +420 733 373 964
E-mail: lukas.dulava@re-max.cz

Potřebujete poradit/máte zájem o prohlídku?

* – toto pole je nutné vyplnit

Podrobné informace

Číslo zakázky:
ID 130-NP03515
Typ nemovitosti:
Komerční prostory
Druh prostor:
Jiné
Počet podlaží v objektu:
2
Plocha kanceláří:
102 m²
Druh objektu:
Smíšená
Stav objektu:
Po rekonstrukci
Charakter okolní zástavby:
Obchodní a obytná
K nastěhování:
10. 12. 2025
Doprava:
Silnice, MHD, Autobus
Elektřina:
230 V
Odpad:
Kanalizace
Celková plocha:
102 m²
Zastavěná plocha:
445 m²
Plyn:
Plynovod
Telekomunikace:
Internet
Typ domu:
Přízemní
Umístění objektu:
Centrum obce
Voda:
Dálkový rozvod
Vybavení kanceláří:
Ano
Vybaveno:
Ano
Energetická náročnost budovy:
G