Translate with 
MENU ZAVŘÍT

Prodej bytu 3+1 v osobním vlastnictví 60 m², Brno (ID 058-NP04452)

ulice Bzenecká, Brno – městská část Brno-Vinohrady mapa

7 741 650 Kč ( za nemovitost)
CÚsporná

1x
3x
60 m2
7/12
Exkluzivně Rezervace

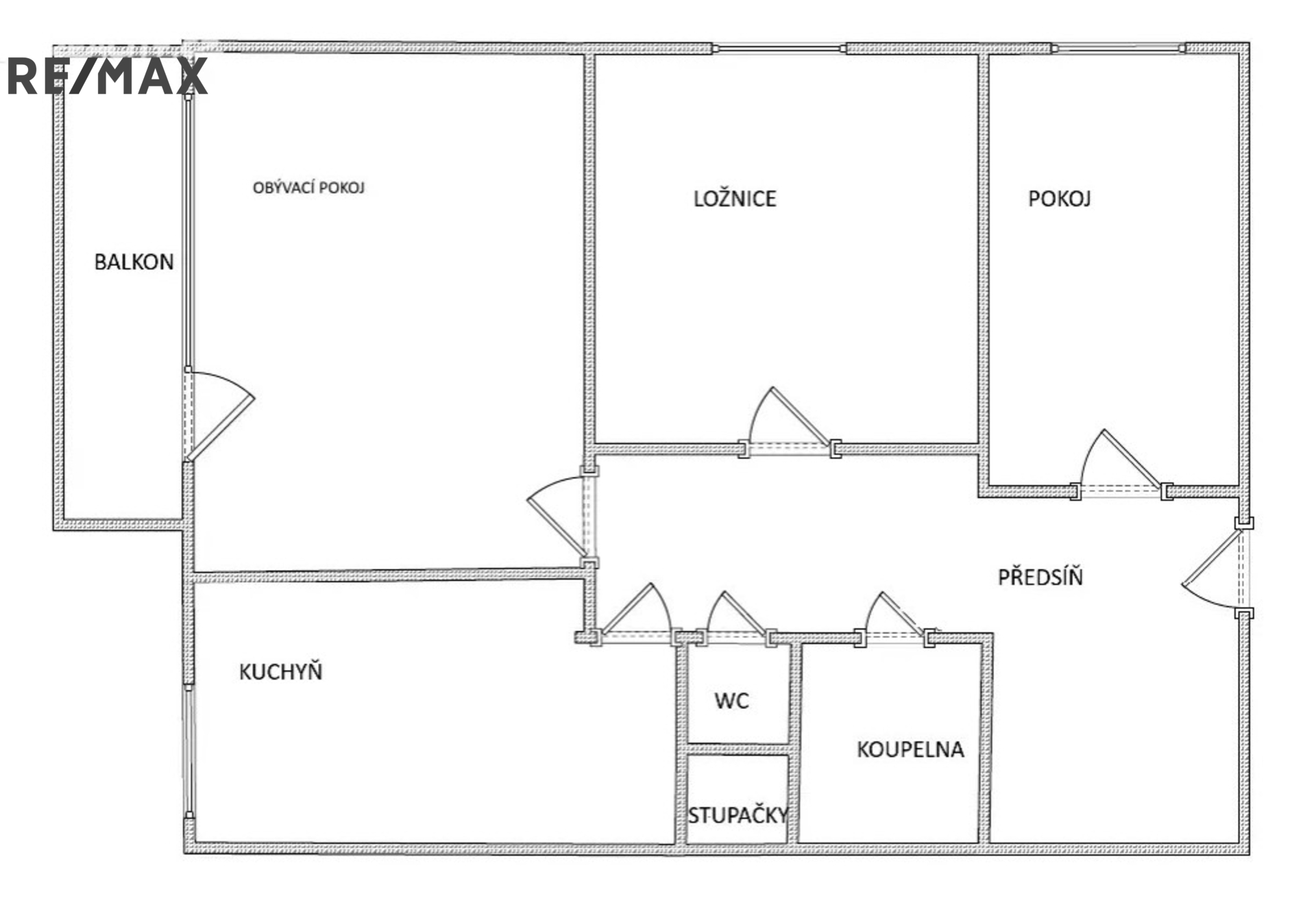
Prodej bytu 3+1 v osobním vlastnictví s balkonem, 60 m2 na ulici Bzenecká v Brně - Židenicích

Ve výhradním zastoupení nabízíme k prodeji byt 3+1 v osobním vlastnictví o užitné ploše 60 m2 s prostorným zaskleným balkonem (4,3 m2) a sklepní kójí v panelovém domě se 2 výtahy na ul. Bzenecká v Brně - Židenicích.
Byt se nachází v 7NP/12NP a jeho dispozice jsou: kuchyně (7,5 m2), obývací pokoj (16 m2) se vstupem na zasklený balkon (4,3 m2) s výhledem na Brno - jihozápad, ložnice (12 m2), pokoj (8,5 m2), koupelna (2,8 m2), samostatné WC (1 m2), předsíň (4 m2), šatna umístěná v předsíni (2,6 m2), chodba (5,7m). Předsíň a chodba je prostorná a vstupuje se z nich do všech místností bytu - žádné pokoje nejsou průchozí.
V bytě je klimatizace, zděné jádro, nová koupelna, plastová okna se žaluziemi, plovoucí podlahy, vinyl, PVC a dlažba. V koupelně a v části kuchyně je nová elektřina. V bytě jsou bezpečnostní vchodové dveře.
K bytu náleží sklepní kóje a na chodbě před bytem je společný prostor (na kola). Dům je po revitalizaci, jsou tu 2 výtahy (úvěr na revitalizaci, balkony, střechu bude splacen v roce 2027). Žádné další velké investice se neočekávají. Parkování možné u domu. V budově jsou umístěny kamery se záznamem.
Náklady na bydlení jsou velmi nízké: elektřina 800,- Kč a měsíční předpis plateb 4.782,- Kč (studená voda, teplá voda, teplo, po uhrazení úvěru bude snížen i FO).
V Brně se nachází veškerá občanská vybavenost, nájezd na dálnici D1, nemocnice, obchody, lékaři, hřiště, ZŠ, MŠ, VŠ, vlakové nádraží, autobusové nádraží, obchodní domy, parky atd.
Financování hypotečním úvěrem pro Vás můžeme zajistit. Pro více informací a termín prohlídky kontaktujte makléře nabídky.
Cena:
7 741 650 CZK / Rezervováno
Poznámka k ceně:
včetně provize a právních služeb
Upozornění:
Prodávající si vyhrazuje právo vybrat kupujícího na základě jím zvolených kritérií.
RX finance

Spočítejte si splátku hypotéky

Na kolik vás vyjde pořízení vlastního bydlení? Zadejte pár informací do naší hypoteční kalkulačky a hned si prohlédněte výsledek.

Kupní cena nemovitosti

7 741 650 Kč

Výše hypotéky

Doba splácení

Vypočítaná měsíční splátka

Úroková sazba 3.6%

260 990 Kč

Hypotéku zařídíme za vás

Ušetřete svůj čas i nervy. Naši makléři zařídí veškeré papírování a dovedou vás až k úspěšnému podpisu smlouvy v bance.

Nechte nám kontakt, náš makléř se v pracovní dny ozve do 24 hodin

* – toto pole je nutné vyplnit
Romana Prokešová
RE/MAX Atraktiv
Purkyňova 143/18
Vyškov, 68201
Česká republika
Tel. na makléře: +420 733 149 014
Tel. do kanceláře: +420 733 149 010
E-mail: romana.prokesova@re-max.cz

Potřebujete poradit/máte zájem o prohlídku?

* – toto pole je nutné vyplnit

Podrobné informace

Číslo zakázky:
ID 058-NP04452
Dispozice:
3+1
Číslo podlaží:
7
Počet podlaží v objektu:
12
Podlahová plocha:
60 m²
Druh objektu:
Panelová
Stav objektu:
Velmi dobrý
Vlastnictví:
Osobní
Typ nemovitosti:
Byty
Charakter okolní zástavby:
Obytná
K nastěhování:
1. 1. 2026
Doprava:
Vlak, Dálnice, Silnice, MHD, Autobus
Elektřina:
230 V
Odpad:
Kanalizace
Užitná plocha:
60 m²
Zastavěná plocha:
451 m²
Telekomunikace:
Internet
Výtah:
Ano
Energetická náročnost budovy:
C