Translate with 
MENU ZAVŘÍT

Prodej obchodních prostor 241 m², Hluboká nad Vltavou (ID 111-NP08620)

ulice Masarykova, Hluboká nad Vltavou mapa

7 990 000 Kč ( za nemovitost)
CÚsporná

241 m2
Exkluzivně

Prodej obchodního prostoru 241,2 m2, Hluboká nad Vltavou

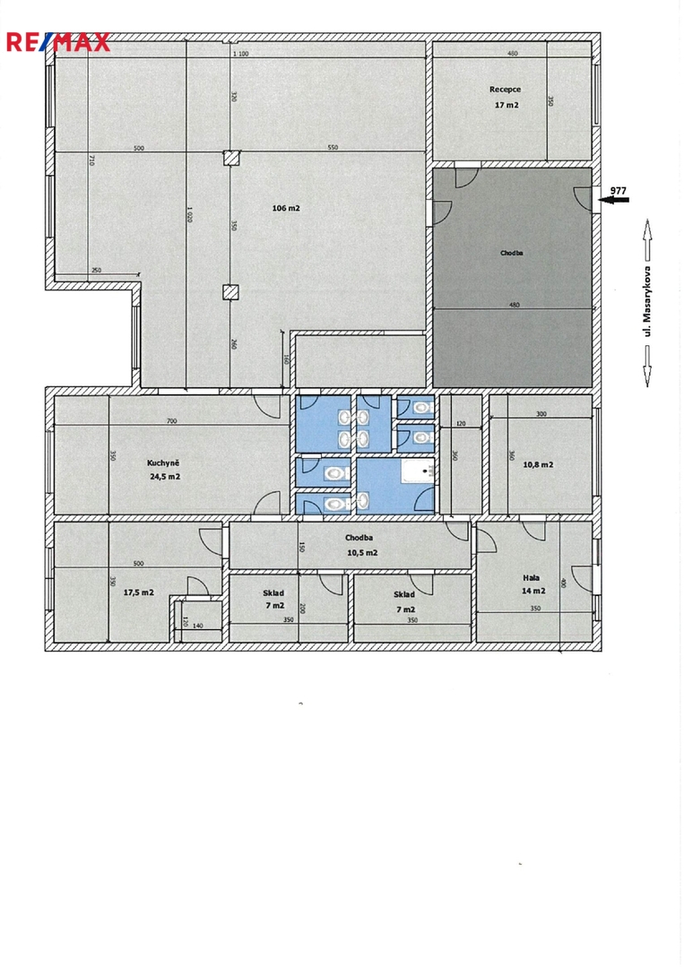
Nabízíme k prodeji obchodní prostor o výměře 241,2 m², nacházející se v historickém městě Hluboká nad Vltavou, v blízkosti centra, konkrétně v ulici Masarykova. Tento přízemní prostor má vstup z podloubí historického domu, což dodává celé lokalitě jedinečný charakter. Výhodou tohoto prostoru je vstupní recepce s okny do ulice, díky které je prostor dostatečně prosvětlený a ideální pro vystavení zboží či reklamy a uvítání pro hosty. Pro tyto účely slouží ještě další dvě místnosti, které mají okna a vstup do ulice. Díky tomu může být Vaše firma nepřehlédnutelná.

Dominantou prostoru je velká vstupní hala, která může sloužit jako hlavní obchodní prostor či kanceláře. Dále zde najdete několik menších místností, které mohou být využity například jako sklady. K dispozici je také prostorné zázemí v podobě velké kuchyně, šatny, toalety a koupelny se sprchou, což zajišťuje pohodlí pro pracovníky. Vytápění je řešeno centrálním plynovým kotlem pro celý dům s rozvody do radiátorů, tímto je řešen i ohřev vody. Dodávka tepla je pro uvedený prostor měřená kalorimetrem.
Vodovod i kanalizace jsou obecní.

Tento prostor je ideální pro firmy, které hledají vhodné místo pro prodejnu, sklad nebo výrobnu. Dostatek prostoru a zázemí v objektu také umožňuje poskytování služeb, např. kavárna, cukrárna, kadeřnictví, barber-shop, zubní laboratoř, kosmetický salon, sportovní aktivity, fitness, vzdělávací centrum, atd... prostor představuje ideální řešení i pro firmy zaměstnávající více pracovníků. Vzhledem k lokalitě a dispozici je možné prostor předělat i na byt, což by mohlo představovat zajímavou investiční příležitost či příležitost k příjemnému bydlení.

Hluboká nad Vltavou je jedním z nejoblíbenějších míst na jihu Čech, známá svým půvabným historickým centrem a ikonickým zámkem, který je vyhledávaným turistickým cílem. Město se pyšní nejen bohatou historií, ale také rozmanitou nabídkou kulturního vyžití, restaurací a obchodů. Okolí nabízí příležitosti pro sportovní a rekreační aktivity, jako je cyklistika nebo procházky v malebné přírodě. Díky své strategické poloze je Hluboká nad Vltavou dobře dostupná a poskytuje návštěvníkům široké možnosti vyžití, což intenzivně přispívá k prosperitě místních podniků a zaručuje dobrou návštěvnost.

V případě zájmu o prohlídku nás neváhejte kontaktovat.
Cena:
7 990 000 CZK / za nemovitost
Poznámka k ceně:
Upozornění:
Prodávající si vyhrazuje právo vybrat kupujícího na základě jím zvolených kritérií.
RX finance

Spočítejte si splátku hypotéky

Na kolik vás vyjde pořízení vlastního bydlení? Zadejte pár informací do naší hypoteční kalkulačky a hned si prohlédněte výsledek.

Kupní cena nemovitosti

7 990 000 Kč

Výše hypotéky

Doba splácení

Vypočítaná měsíční splátka

Úroková sazba 3.6%

260 990 Kč

Hypotéku zařídíme za vás

Ušetřete svůj čas i nervy. Naši makléři zařídí veškeré papírování a dovedou vás až k úspěšnému podpisu smlouvy v bance.

Nechte nám kontakt, náš makléř se v pracovní dny ozve do 24 hodin

* – toto pole je nutné vyplnit
Ing. Karel Exl
RE/MAX Dynamic
Kanovnická 75/4
České Budějovice, 37001
Česká republika
Tel. na makléře: +420 724 832 802
Tel. do kanceláře: +420 725 910 910
E-mail: karel.exl@re-max.cz

Potřebujete poradit/máte zájem o prohlídku?

* – toto pole je nutné vyplnit

Podrobné informace

Číslo zakázky:
ID 111-NP08620
Typ nemovitosti:
Komerční prostory
Druh prostor:
Obchodní
Číslo podlaží:
1
Plocha kanceláří:
241 m²
Druh objektu:
Cihlová
Stav objektu:
Dobrý
Odpad:
Kanalizace
Celková plocha:
241 m²
Typ domu:
Patrový
Umístění objektu:
Centrum obce
Voda:
Dálkový rozvod
Energetická náročnost budovy:
C