Translate with 
MENU ZAVŘÍT

Pronájem obchodních prostor 208 m², Chrudim (ID 153-NP02539)

ulice Havlíčkova, Chrudim – část obce Chrudim III mapa

Cena na vyžádání v kanceláři
DMéně
úsporná

208 m2

Pronájem jedinečných nebytových prostor v Chrudimi

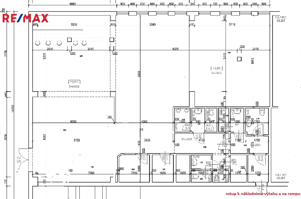
Nabízíme k pronájmu atraktivní nebytové prostory v přízemí obchodního centra Kateřina v Chrudimi v Havlíčkově ulici. Výhody: rohový prostor s množstvím výkladců, velký open space, přízemí, přímý vstup z chodníku, ideální plocha 208m2, městské parkoviště před objektem. Sociální zařízení /M,Ž, invalidé, provoz/, skladovací plochy, zázemí pro personál. Vzduchotechnika, klimatizace. Dálkové vytápění. Zadní vchod pro zásobování z rampy / i pro nákladní auta/. Prostor bude předán prázdný po částečné rekonstrukci /výmalba, oprava výloh, dlažba na podlaze atd./, připraven pro jiný podnikatelský záměr. Bližší info u makléře. Pronajímající si vyhrazuje právo vybrat nájemce na základě jím zvolených kritérií.
Cena:
Cena na vyžádání v kanceláři
Poznámka k ceně:
Upozornění:
Pronajímající si vyhrazuje právo vybrat nájemce na základě jím zvolených kritérií.
Ing. Šárka Loukotová
RE/MAX Well
Bratranců Veverkových 2717
Pardubice, 53002
Česká republika
Tel. na makléře: +420 606 716 196
Tel. do kanceláře: +420 606 716 196
E-mail: sarka.loukotova@re-max.cz

Potřebujete poradit/máte zájem o prohlídku?

* – toto pole je nutné vyplnit

Podrobné informace

Číslo zakázky:
ID 153-NP02539
Typ nemovitosti:
Komerční prostory
Druh prostor:
Obchodní
Číslo podlaží:
1
Počet podlaží v objektu:
2
Plocha kanceláří:
208 m²
Druh objektu:
Cihlová
Stav objektu:
Velmi dobrý
Bezbariérový byt:
Ano
Charakter okolní zástavby:
Obytná
K nastěhování:
1. 3. 2026
Doprava:
MHD
Odpad:
Kanalizace
Celková plocha:
208 m²
Typ domu:
Patrový
Umístění objektu:
Rušná část obce
Voda:
Dálkový rozvod
Energetická náročnost budovy:
D