Translate with 
MENU ZAVŘÍT

Prodej domu 73 m², Brníčko (ID 349-NP00144)

Brníčko, okres Šumperk mapa

2 190 000 Kč ( za nemovitost)
GMimořádně
nehospodárná

3x
73 m2
614 m2
1
Exkluzivně

Rodinný dům nebo rekreační chalupa v obci Brníčko u Zábřeha

Vážení klienti,

nabízím vám rodinný dům k rekonstrukci s oplocenou zahradou, kůlnou a kopanou studnou v obci Brníčko.

Jedná se o samostatně stojící přízemní nepodsklepený dům na svažitém pozemku. Původní stavba sloužila jako obecní stodola a rekonstrukcí v 60. letech minulého století byla adaptována na rodinný dům.
Z původní stodoly zůstaly obvodové zdi a krov, vnitřní příčky a strop byly nově postaveny. Z této doby zůstává stav interiéru a všechny instalace: elektrické rozvody, rozvody vody a odpadů. Kolaudace byla provedena dodatečně v roce 1998.
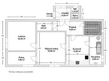
Dispozice domu je 3+1 s komorou (spíží), prostornou chodbou a neobydleným podkrovím.
Z kuchyně vejdete do koupelny, kde je vana, umyvadlo a prostor pro pračku. Z kuchyně vstoupíte do obývacího pokoje, ze kterého vejdete do dalších dvou mísností.
Akumulačními elektrickými kamny je vytápěn obývací pokoj a jedna z ložnic. V kuchyni je sporák na tuhá paliva. WC je samostatné.
Dům je napojen na obecní vodovodní řad (2003), elektřinu a kanalizaci (2012), z čehož dešťová voda je svedena do potoka. Ohřev vody je zajištěn elektrickým bojlerem.
V podkroví je prostor pro vybudování dalších místností. Střešní krytina je eternitová šablona, položená na zachovalých krovech.

Průkaz energetické náročnosti je v současné době ve zpracování, předpokládáme nejnižší energetickou třídu "G".

Obec Brníčko u Zábřeha se nachází v Olomouckém kraji, okrese Šumperk, přibližně 8 km od města Zábřeh. Nabízí klidné venkovské bydlení obklopené přírodou, a přitom velmi dobrou dostupnost městské infrastruktury.
Brníčko je známé svou bohatou historií a dominantou obce je zřícenina středověkého hradu Brníčko, která dodává místu jedinečný charakter. V okolí najdete tradiční hospůdky a místní farmy – například rodinnou ovčí farmu s ručně vyráběnými sýry, nebo místní pohostinství. Okolní krajina je ideální pro pěší turistiku, cyklovýlety a relaxaci v přírodě.

Těším se na setkání u prohlídky domu, rezervujte si svůj termín.
Cena:
2 190 000 CZK / za nemovitost
Poznámka k ceně:
Upozornění:
Prodávající si vyhrazuje právo vybrat kupujícího na základě jím zvolených kritérií.
RX finance

Spočítejte si splátku hypotéky

Na kolik vás vyjde pořízení vlastního bydlení? Zadejte pár informací do naší hypoteční kalkulačky a hned si prohlédněte výsledek.

Kupní cena nemovitosti

2 190 000 Kč

Výše hypotéky

Doba splácení

Vypočítaná měsíční splátka

Úroková sazba 3.6%

260 990 Kč

Hypotéku zařídíme za vás

Ušetřete svůj čas i nervy. Naši makléři zařídí veškeré papírování a dovedou vás až k úspěšnému podpisu smlouvy v bance.

Nechte nám kontakt, náš makléř se v pracovní dny ozve do 24 hodin

* – toto pole je nutné vyplnit
Ing. Adéla Vaňková
RE/MAX Relations
Staškova 169/69
Mohelnice, 78985
Česká republika
Tel. na makléře: +420 731 305 955
Tel. do kanceláře: +420 731 305 955
E-mail: adela.vankova@re-max.cz

Potřebujete poradit/máte zájem o prohlídku?

* – toto pole je nutné vyplnit

Podrobné informace

Číslo zakázky:
ID 349-NP00144
Poloha objektu:
Samostatný
Počet podlaží v objektu:
1
Užitná plocha:
73 m²
Plocha parcely:
614 m²
Druh objektu:
Cihlová
Stav objektu:
Před rekonstrukcí
Typ nemovitosti:
Domy a vily
K nastěhování:
3. 2. 2026
Doprava:
Silnice, Autobus
Elektřina:
120 V, 230 V, 400 V
Odpad:
Kanalizace, Septik
Plocha zahrady:
614 m²
Zastavěná plocha:
115 m²
Typ domu:
Přízemní
Umístění objektu:
Klidná část obce
Voda:
Dálkový rozvod
Vybaveno:
Ano
Energetická náročnost budovy:
G