Translate with 
MENU ZAVŘÍT

Prodej obchodních prostor 170 m², Dětmarovice (ID 268-NP03449)

Dětmarovice, okres Karviná mapa

3 290 000 Kč ( za nemovitost)
GMimořádně
nehospodárná

170 m2
Exkluzivně

Prodej obchodních prostor 170m2, Dětmarovice

Dobrý den.

Hledáte prostory pro své podnikání?

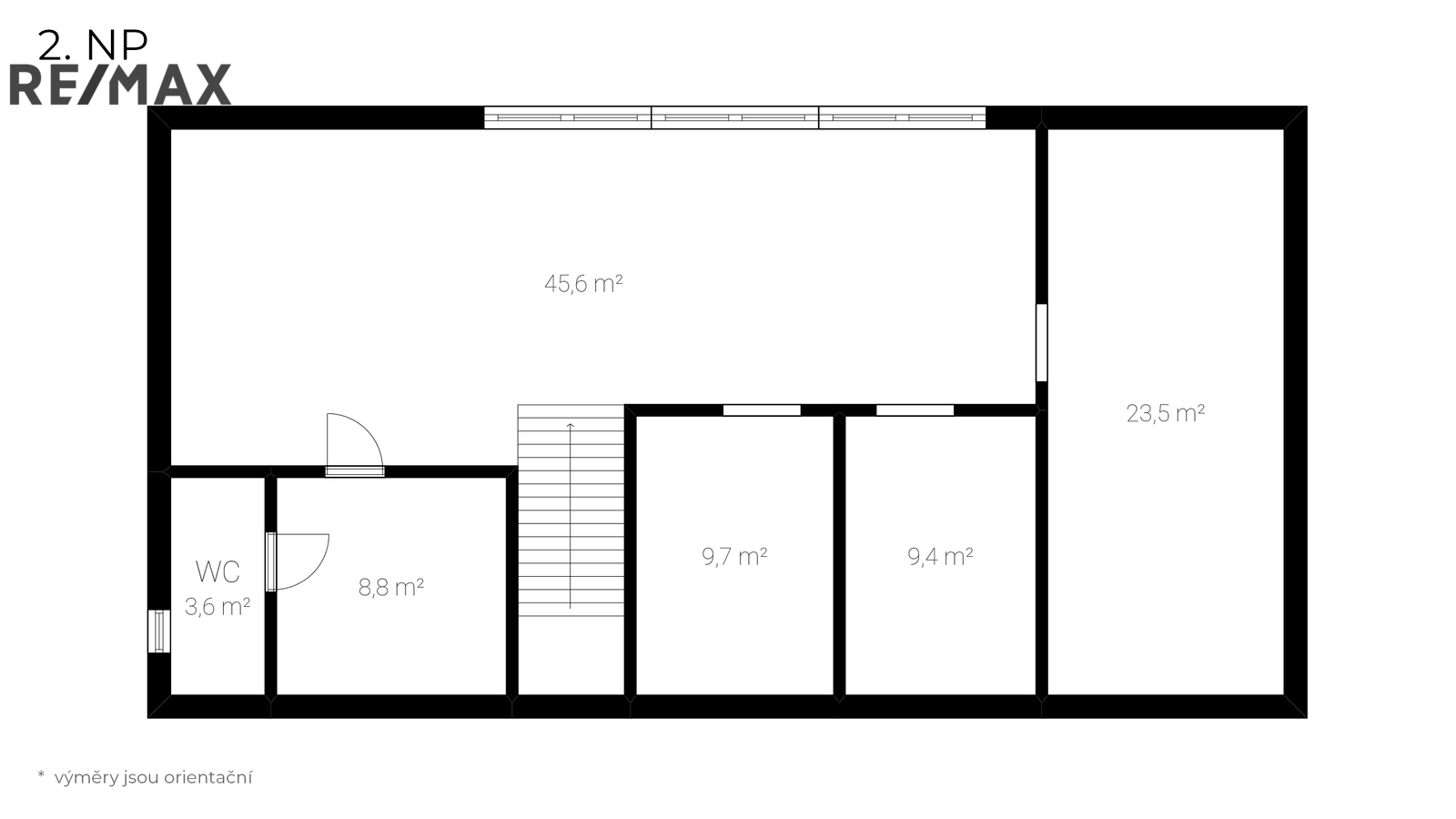
Rád bych Vám představil tyto obchodní prostory o celkové ploše 170m2, které se nachází v centru obce Dětmarovice na hlavním tahu mezi Bohumínem a Karvinou a disponuje rozsáhlým otevřeným prostorem v přízemí, dále v patře kancelářskými buňkami, šatnou a WC. Okolí domu disponuje další doplňkovou stavbou a prostorným dvorem.

Dům je určený k rekonstrukci.

Náklady na provoz nemovitosti jsou závislé na tarifu dodavatele a spotřebě majitele, vytápění je však zajištěno tepelným čerpadlem.

Nachází se jen pár kroků od pošty, obecního úřadu, obchodu s potravinami, autobusových zastávek a vlakového nádraží.

Dětmarovice jsou klidná obec v Moravskoslezském kraji, nedaleko Karviné, která nabízí příjemné bydlení v blízkosti přírody s výbornou dostupností do Ostravy. V obci najdete veškerou občanskou vybavenost včetně školy, školky, zdravotního střediska, obchodů, restaurací a sportovišť. Díky dobrému dopravnímu spojení a klidné atmosféře jsou Dětmarovice ideálním místem pro rodinné bydlení.

Dětmarovice leží v okrese Karviná a díky své poloze jsou dobře dostupné jak z okolních měst, tak i z Polska. Výhodou je přímé železniční spojení na trase Ostrava–Český Těšín a dobré napojení na hlavní silniční tahy, což ocení nejen zákazníci, ale i zaměstnanci nebo dodavatelé. V obci a jejím bezprostředním okolí se nachází kombinace obytné zástavby a průmyslových areálů, díky čemuž je zde stabilní pohyb lidí a přirozená poptávka po obchodech a službách. Pro podnikatele, kteří hledají provozovnu mimo centra velkých měst, ale nechtějí se vzdát dostupnosti a funkční infrastruktury, jsou Dětmarovice rozumnou a praktickou volbou.

Pokud Vás tato nemovitost zaujala, zavolejte mi ještě dnes a domluvte si termín Vaší prohlídky.
Cena:
3 290 000 CZK / za nemovitost
Poznámka k ceně:
Upozornění:
Prodávající si vyhrazuje právo vybrat kupujícího na základě jím zvolených kritérií.
RX finance

Spočítejte si splátku hypotéky

Na kolik vás vyjde pořízení vlastního bydlení? Zadejte pár informací do naší hypoteční kalkulačky a hned si prohlédněte výsledek.

Kupní cena nemovitosti

3 290 000 Kč

Výše hypotéky

Doba splácení

Vypočítaná měsíční splátka

Úroková sazba 3.6%

260 990 Kč

Hypotéku zařídíme za vás

Ušetřete svůj čas i nervy. Naši makléři zařídí veškeré papírování a dovedou vás až k úspěšnému podpisu smlouvy v bance.

Nechte nám kontakt, náš makléř se v pracovní dny ozve do 24 hodin

* – toto pole je nutné vyplnit
Bc. Roman Volák
RE/MAX Delux
Křenová 538/22
Brno, 60200
Česká republika
Tel. na makléře: +420 736 252 379
Tel. do kanceláře: +420 602 703 897
E-mail: roman.volak@re-max.cz

Potřebujete poradit/máte zájem o prohlídku?

* – toto pole je nutné vyplnit

Podrobné informace

Číslo zakázky:
ID 268-NP03449
Typ nemovitosti:
Komerční prostory
Druh prostor:
Obchodní
Počet podlaží v objektu:
2
Plocha kanceláří:
170 m²
Druh objektu:
Cihlová
Stav objektu:
Před rekonstrukcí
Charakter okolní zástavby:
Obchodní
Doprava:
Vlak, Silnice, Autobus
Elektřina:
230 V, 400 V
Odpad:
Septik
Celková plocha:
170 m²
Zastavěná plocha:
123 m²
Telekomunikace:
Internet
Typ domu:
Patrový
Umístění objektu:
Centrum obce
Energetická náročnost budovy:
G