Translate with 
MENU ZAVŘÍT

Prodej domu 58 m², Radnice (ID 003-NP04810)

Radnice – část obce Radnice u Rokycan mapa

4 900 000 Kč ( za nemovitost)
AMimořádně
úsporná

2x
58 m2
245 m2
1
Exkluzivně

Prodej domu Radnice

Nabízíme k prodeji novostavbu přízemního rodinného dvojdomu. Objekt je řešen jako samostatně stojící, se dvěma bytovými jednotkami o dispozici 2+kk a podlahové ploše cca 58 m² a součástí je sklep o velikosti cca 36 m², avšak je možné jej zakoupit i jako jeden celek – rodinný dům. V této fázi výstavby je navíc stále možnost úpravy dispozice dle individuálních požadavků budoucího majitele. Celková plocha pozemku činí 723 m², zastavěná plocha domu 156 m².
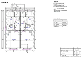
V 1.NP se nachází kuchyň s obývacím pokojem, ložnice, koupelna, předsíň.
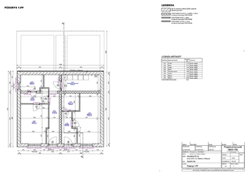
V 1.PP je prostorný sklep pro každou bytovou jednotku s denním světlem, který lze využít i jako pracovnu či fitness. Součástí 1.PP je i technické zázemí pro bytové jednotky. Ke každému bytu patří zahrada a o celkové výměře 478 m2. Zahrada je ve společném vlastnictví dvojdomu a bude rozdělena ideální polovinou.
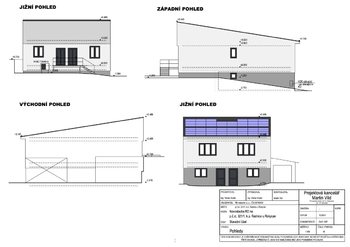
Vytápění je řešeno teplovodním podlahovým topením napojeným na tepelné čerpadlo NIBE, součástí jsou 2 zásobníky TUV (2×125 l). Na střeše budou instalovány fotovoltaické panely o výkonu 30 kWp, což zajišťuje velmi úsporný provoz domu. Dvojdům spadá do energetické třídy A, což ho řadí mezi budovy s minimální náročností energie. Stavba je navržena jako zděná z keramických cihel POROTHERM (obvodové zdivo 300 mm, příčky 115 mm). Krov je z dřevěných vazníků, pultová střecha s plechovou falcovanou krytinou. Osazena budou plastová okna s trojskly, v exteriéru v barvě antracit, v interiéru bílá, doplněná o venkovní žaluzie. Vstupní dveře budou ve stejném barevném provedení. Podlahy obytných místností vinylové, v koupelně, na WC a v technické místnosti keramické dlažby. Pozemek bude oplocen pletivem a budou provedeny terénní úpravy. Zpevněné plochy budou ze zámkové a terasové dlažby.
Cena zahrnuje kompletní realizaci domu – základovou desku, projektovou dokumentaci včetně stavebního povolení a poplatků, výstavbu domu, přípojky, kolaudaci, venkovní terénní úpravy, zpevněné plochy a oplocení pozemku.
Momentálně je nemovitost v počáteční fázi výstavby s plánovaným dokončením zima 2026. Dům bude napojen na veřejný vodovod, kanalizaci a elektrickou síť. Podlahy, dveře, sanita, obklady – vše bude nové, velmi vkusně sladěné, v příjemných klidných tónech.
Projekt nabízí prostor pro klientské změny a individuální úpravy podle přání budoucího majitele.
Nemovitost se nachází na okraji obce a je ideálním řešením pro ty, kteří hledají kombinaci klidného bydlení s výhodami městské infrastruktury. Veškerá občanská vybavenost se nachází v obci (MŠ, ZŠ, obchody, krásná kavárna, zdravotní zařízení, hotel, restaurace, tenisové kurty atd.) Napojení severního Rokycanska na dálnici D5 bylo již dokončeno a momentálně jste v centru Plzně cca do 25 minut, na nájezd na dálnici směr Praha do 12 min.
Pro více informací mě neváhejte kontaktovat, ráda s Vámi projdu projektovou dokumentaci a možnosti změn.
Vizualizace jsou ilustrační.
Cena:
4 900 000 CZK / za nemovitost
Poznámka k ceně:
Upozornění:
Prodávající si vyhrazuje právo vybrat kupujícího na základě jím zvolených kritérií.
RX finance

Spočítejte si splátku hypotéky

Na kolik vás vyjde pořízení vlastního bydlení? Zadejte pár informací do naší hypoteční kalkulačky a hned si prohlédněte výsledek.

Kupní cena nemovitosti

4 900 000 Kč

Výše hypotéky

Doba splácení

Vypočítaná měsíční splátka

Úroková sazba 3.6%

260 990 Kč

Hypotéku zařídíme za vás

Ušetřete svůj čas i nervy. Naši makléři zařídí veškeré papírování a dovedou vás až k úspěšnému podpisu smlouvy v bance.

Nechte nám kontakt, náš makléř se v pracovní dny ozve do 24 hodin

* – toto pole je nutné vyplnit
Tereza Santnerová
RE/MAX G8 Reality 3
Francouzská třída 2022/15
Plzeň, 32600
Česká republika
Tel. na makléře: +420 734 240 842
Tel. do kanceláře: +420 377 422 427
E-mail: tereza.santnerova@re-max.cz

Potřebujete poradit/máte zájem o prohlídku?

* – toto pole je nutné vyplnit

Podrobné informace

Číslo zakázky:
ID 003-NP04810
Poloha objektu:
Řadový
Počet podlaží v objektu:
1
Užitná plocha:
58 m²
Plocha parcely:
245 m²
Druh objektu:
Cihlová
Stav objektu:
Novostavba
Typ nemovitosti:
Domy a vily
Charakter okolní zástavby:
Obytná
K nastěhování:
13. 1. 2026
Doprava:
Vlak, Silnice, Autobus
Elektřina:
230 V
Odpad:
Kanalizace
Zastavěná plocha:
156 m²
Počet podlaží pod zemí:
1
Typ domu:
Přízemní
Umístění objektu:
Klidná část obce
Voda:
Dálkový rozvod
Energetická náročnost budovy:
A