Translate with 
MENU ZAVŘÍT

Pronájem výrobních prostor 2322 m², Věžky (ID 160-NP02834)

Věžky, okres Kroměříž mapa

120 000 Kč ( za měsíc)
GMimořádně
nehospodárná

2322 m2
Exkluzivně

Pronájem komerční nemovitosti – Věžky, Zlínský kraj

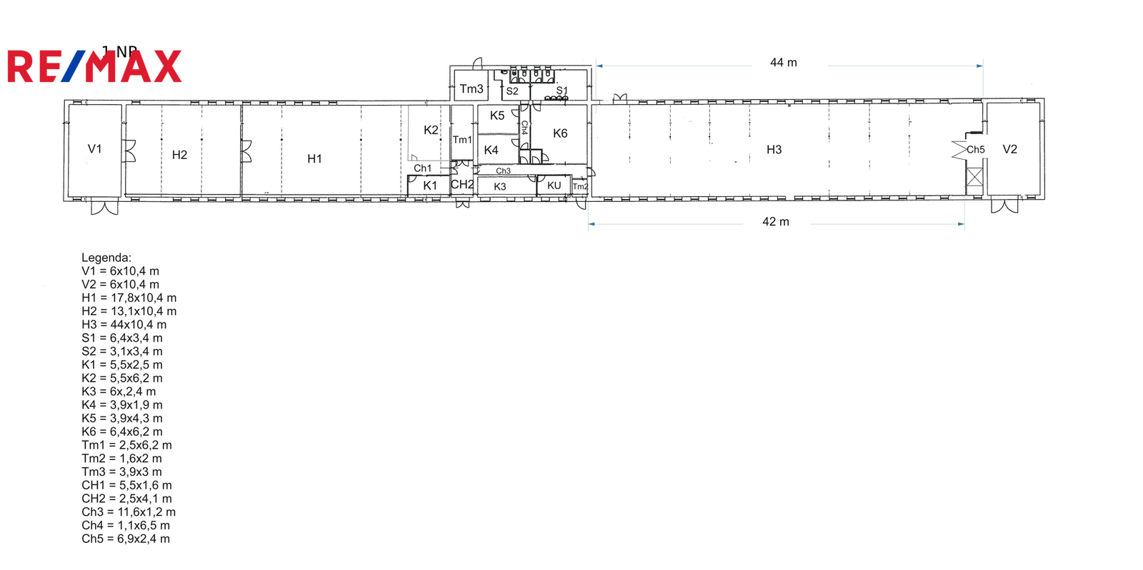
Tato samostatně stojící komerční budova ve Věžkách nabízí široké možnosti využití – ať už pro lehkou výrobu, skladování, logistiku, dílnu, sídlo firmy a jiné. Nachází se v okrajové části obce s dobrou dostupností do Kroměříže, Hulína i na dálnici D1 (cca 10 minut jízdy), což z ní dělá strategické místo pro podnikatelskou činnost. Hlavní budova nabízí v 1.NP rozlohu přibližně 1152 m² a je po po rekonstrukci převážné části rozvodů elektřiny, podlah, oken a zateplení stropu. V podkroví se nachází skladové prostory bez vytápění o celkové rozloze cca 1168 m². Do podkroví vede funkční průmyslový výtah, který usnadňuje manipulaci s materiálem i zbožím. Součástí objektu jsou na obou krajních stranách stropní otvory, skrz které lze materiál/zboží snadno dodat do podkroví vysokozdvižným vozíkem.

Klíčové vlastnosti nemovitosti:
- Robustní zděná konstrukce v dobrém technickém stavu
- Přímý přístup z obecní komunikace, pohodlné parkování i pro větší vozy
- Zavedena elektřina (včetně 400 V), voda, kanalizace, plyn
- Vlastní pozemek – vhodný pro skladování
- Již zavedená nabíječka pro elektromobily

Potenciál využití:
● Výrobní prostory
● Sklad/dílny/logistika
● E-shop s výdejnou
● Kombinace komerce a kanceláří

Lokalita s potenciálem:
Obec Věžky leží v dojezdové vzdálenosti od Kroměříže a Zlína, s napojením na důležité dopravní tahy. Budova se nachází v klidném prostředí, ale s výbornou dostupností – ideální kombinace pro podnikání bez zbytečných kompromisů.

Nájemné 120.000,- Kč + energie. Jistota ve výši 120.000,- Kč. Provize ve výši jednoho nájmu + DPH.

Cena:
120 000 CZK / za měsíc
Poznámka k ceně:
Upozornění:
Pronajímající si vyhrazuje právo vybrat nájemce na základě jím zvolených kritérií.
Karel Pazdera
RE/MAX MONARCHA
Masarykova třída 105/29
Olomouc, 77900
Česká republika
Tel. na makléře: +420 731 648 458
Tel. do kanceláře: +420 777 235 428
E-mail: karel.pazdera@re-max.cz

Potřebujete poradit/máte zájem o prohlídku?

* – toto pole je nutné vyplnit

Podrobné informace

Číslo zakázky:
ID 160-NP02834
Typ nemovitosti:
Komerční prostory
Druh prostor:
Výrobní
Plocha kanceláří:
2 322 m²
Druh objektu:
Cihlová
Stav objektu:
Dobrý
K nastěhování:
1. 4. 2026
Doprava:
Dálnice, Silnice, Autobus
Elektřina:
230 V, 400 V
Odpad:
Kanalizace
Celková plocha:
2 322 m²
Zastavěná plocha:
1 342 m²
Plyn:
Plynovod
Počet parkovacích míst:
20
Telekomunikace:
Telefon, Internet
Typ domu:
Přízemní
Umístění objektu:
Okraj obce
Voda:
Dálkový rozvod
Výtah:
Ano
Energetická náročnost budovy:
G