Translate with 
MENU ZAVŘÍT

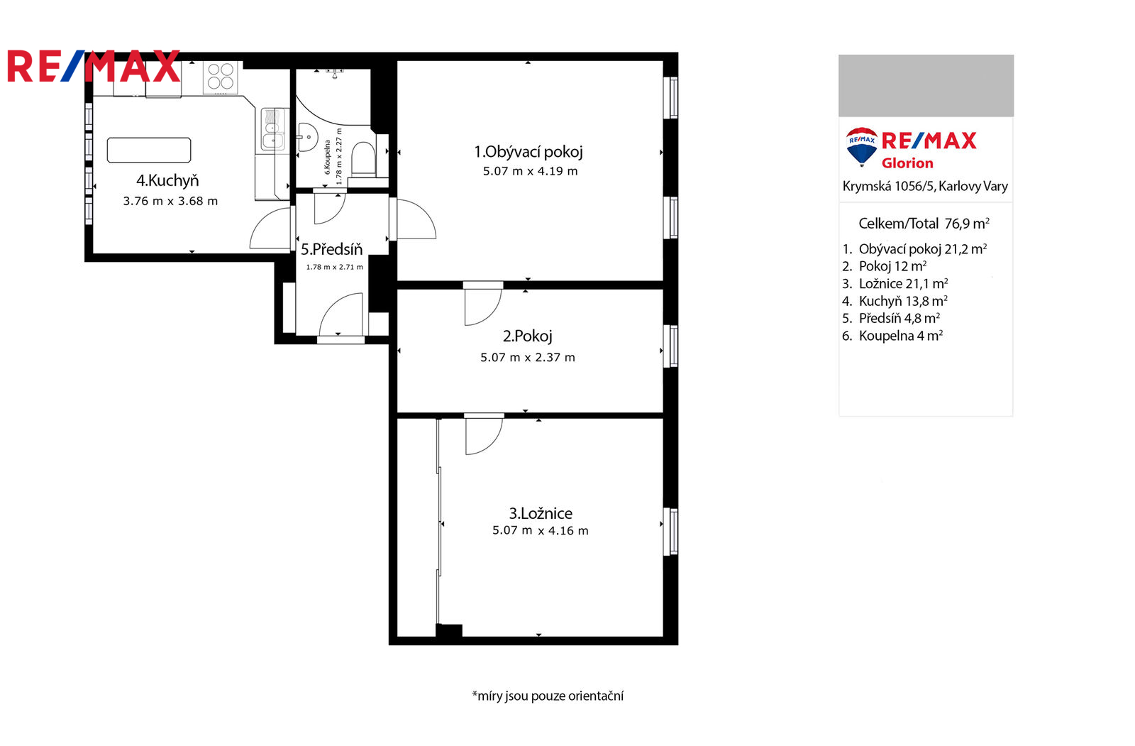
Prodej bytu 3+1 v osobním vlastnictví 72 m², Karlovy Vary (ID 294-NP01713)

ulice Bulharská, Karlovy Vary mapa

1x
3x
72 m2
4/4
Exkluzivně Prodáno

Byt 3+1 ul.Bulharská

Zprostředkování koupi nemovitosti pro klientku
Cena:
Prodáno
Poznámka k ceně:
provize 3% od kupní ceny minus záloha 200 eur
Upozornění:
Prodávající si vyhrazuje právo vybrat kupujícího na základě jím zvolených kritérií.
Iryna Fisher
RE/MAX Glorion
Krymská 1056/5
Karlovy Vary, 36001
Česká republika
Tel. na makléře: +420 722 740 320
Tel. do kanceláře: +420 776 395 579
E-mail: iryna.fisher@re-max.cz

Potřebujete poradit/máte zájem o prohlídku?

* – toto pole je nutné vyplnit

Podrobné informace

Číslo zakázky:
ID 294-NP01713
Dispozice:
3+1
Číslo podlaží:
4
Počet podlaží v objektu:
4
Podlahová plocha:
72 m²
Druh objektu:
Cihlová
Stav objektu:
Velmi dobrý
Vlastnictví:
Osobní
Typ nemovitosti:
Byty
Užitná plocha:
72 m²
Umístění objektu:
Centrum obce
Vybaveno:
Ano