Translate with 
MENU ZAVŘÍT

Prodej obchodních prostor 710 m², Kadaň (ID 032-NP09483)

ulice Mírové náměstí, Kadaň mapa

17 900 000 Kč ( za nemovitost)
DMéně
úsporná

710 m2
Exkluzivně

Prodej obchodního prostoru 466 m2, Mírové náměstí, Kadaň

Nabízíme k prodeji patrovou obchodní budovu situovanou v samotném centru města Kadaň.

Objekt je udržovaný a ve velmi dobrém technickém stavu, připravený k okamžitému využití bez nutnosti dalších investic.

Přízemí :
Jedna část je v současné době využívána jako obchodní prostor a sklady, druhá část má samostatný vstup a je dlouhodobě pronajata stabilnímu nájemci – pobočce České spořitelny, což činí tuto nemovitost atraktivní i z investičního hlediska.

Patro:
Celé patro objektu slouží jako další obchodní prostor, vhodný například pro prodejnu, kanceláře, služby nebo kombinaci podnikatelských aktivit. Podlahy ve všech prostorách tvoří keramická dlažba.

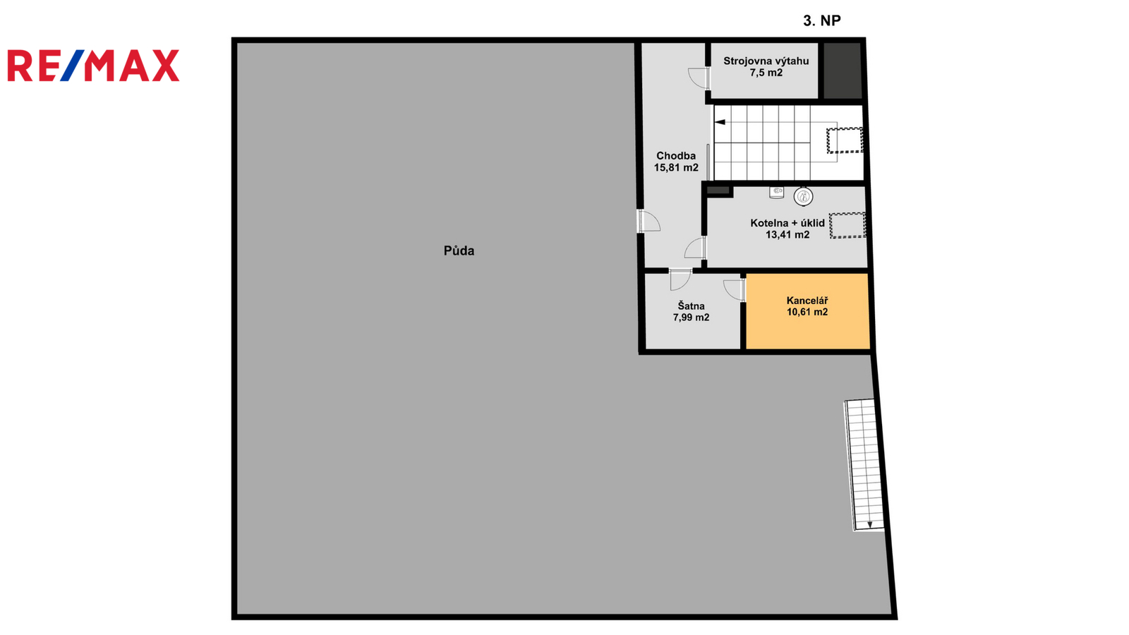
Podkroví:
V podkroví se nachází dvě samostatné místnosti, které jsou vhodné k využití jako kanceláře nebo další sklady.
K dispozici je také velký půdní prostor.

Budova je částečně podsklepena. Sklepní prostory jsou suché, čisté a mají klenuté stropy, což zvyšuje jejich atraktivitu pro skladování či další využití.

Hlavní výhody nemovitosti:
- lukrativní poloha v centru města
- udržovaný objekt vhodný k okamžitému užívání bez nutnosti rekonstrukce
- výtah a klimatizace
- možnost kombinace vlastního podnikání a stabilního nájemního výnosu
- rozsáhlé skladové prostory (sklepy i půda)

Nemovitost nabízí široké možnosti využití – obchod, služby, kanceláře i investici s pravidelným příjmem.

Pro více informací nebo domluvení prohlídky neváhejte kontaktovat makléře nabídky.

Výměry jsou uvedeny pouze orientačně. Prodávající si vyhrazuje právo vybrat kupujícího na základě jím zvolených kritérií.
Cena:
17 900 000 CZK / za nemovitost
RX finance

Spočítejte si splátku hypotéky

Na kolik vás vyjde pořízení vlastního bydlení? Zadejte pár informací do naší hypoteční kalkulačky a hned si prohlédněte výsledek.

Kupní cena nemovitosti

17 900 000 Kč

Výše hypotéky

Doba splácení

Vypočítaná měsíční splátka

Úroková sazba 3.6%

260 990 Kč

Hypotéku zařídíme za vás

Ušetřete svůj čas i nervy. Naši makléři zařídí veškeré papírování a dovedou vás až k úspěšnému podpisu smlouvy v bance.

Nechte nám kontakt, náš makléř se v pracovní dny ozve do 24 hodin

* – toto pole je nutné vyplnit
Ivana Hrubešová
REMAX 4 You
Nám. 1. máje 95
Chomutov, 43001
Česká republika
Tel. na makléře: +420 734 103 366
Tel. do kanceláře: +420 739 500 617
E-mail: ivana.hrubesova@re-max.cz

Potřebujete poradit/máte zájem o prohlídku?

* – toto pole je nutné vyplnit

Podrobné informace

Číslo zakázky:
ID 032-NP09483
Typ nemovitosti:
Komerční prostory
Druh prostor:
Obchodní
Počet podlaží v objektu:
2
Plocha kanceláří:
710 m²
Druh objektu:
Cihlová
Stav objektu:
Velmi dobrý
Charakter okolní zástavby:
Obchodní a obytná
Doprava:
Vlak, Silnice, MHD, Autobus
Elektřina:
230 V
Odpad:
Kanalizace
Celková plocha:
710 m²
Zastavěná plocha:
466 m²
Plyn:
Plynovod
Počet podlaží pod zemí:
1
Telekomunikace:
Internet
Typ domu:
Patrový
Umístění objektu:
Centrum obce
Umístění v chráněných lokalitách:
Ochranné pásmo
Voda:
Dálkový rozvod
Výtah:
Ano
Energetická náročnost budovy:
D