Translate with 
MENU ZAVŘÍT

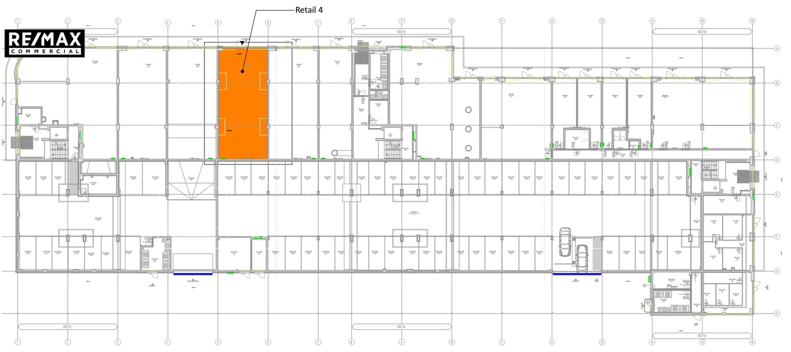
Pronájem obchodních prostor 131 m², Praha 5 - Radotín (ID 202-NP03062)

ulice náměstí Osvoboditelů, Praha 5 – Radotín mapa

55 000 Kč ( za měsíc)
BVelmi
úsporná

131 m2
Exkluzivně

NOVÝ komerční prostor k pronájmu v projektu TRIO Radotín

Představuji Vám obchodní prostor k pronájmu v projektu TRIO Radotín, který roste nedaleko plánované budovy nové radnice Městské části Praha 16, která je součástí celkového architektonického konceptu celé lokality. Prostor o celkové výměře 131,53 m2 se nachází v přízemí budovy B, k prostoru bude náležet 1 parkovací místo v podzemí budovy. Prostor není vhodný pro restaurační zařízení a jiný gastro provoz. Vyhovující je prodejna zboží denní spotřeby, oblečení a obuv, kožená galanterie, papírnictví, lékárna, spotřební elektronika atd., dále také provozovna služeb (kosmetika, kadeřnictví, opravna obuvi, IT servis..), prostor pro vzdělávání.
Projekt TRIO klade velký důraz na kvalitu použitých materiálů a dlouhodobou udržitelnost. Předpokládaná kolaudace konec roku 2026.
Nájem 55.000,- Kč/měs., kauce 2 měsíční nájmy.
Vynikající dopravní dostupnost zajišťuje pro osobní dopravu nově zrekonstruovaná železniční stanice Praha-Radotín, která se nachází jen několik desítek metrů od budov projektu. Už za 10 minut můžete být linkou S7 na Smíchově (přestup na metro B), za 18 minut na Hlavním nádraží. Dostupnost autem je vynikající díky blízkosti dvou dálničních spojení (D0, D4). V Radotíně se nachází veškerá občanská vybavenost a v těsné blízkosti nově vznikajícího projektu se nachází supermarket Albert, pošta, banka, provozovny služeb a drobné obchody. Nedaleko se nachází základní škola a gymnázium Radotín.
Velmi pěkné. Doporučujeme!
Cena:
55 000 CZK / za měsíc
Poznámka k ceně:
Upozornění:
Pronajímající si vyhrazuje právo vybrat nájemce na základě jím zvolených kritérií.
Ing. Petra Feřteková
RE/MAX Commercial Group
Antala Staška 511/40
Praha 4 - Krč, 14000
Česká republika
Tel. na makléře: +420 733 618 703
Tel. do kanceláře: +420 733 152 553
E-mail: petra.fertekova@re-max.cz

Potřebujete poradit/máte zájem o prohlídku?

* – toto pole je nutné vyplnit

Podrobné informace

Číslo zakázky:
ID 202-NP03062
Typ nemovitosti:
Komerční prostory
Druh prostor:
Obchodní
Číslo podlaží:
1
Počet podlaží v objektu:
1
Plocha kanceláří:
131 m²
Druh objektu:
Cihlová
Stav objektu:
Velmi dobrý
K nastěhování:
2. 11. 2026
Doprava:
Vlak, Silnice, MHD, Autobus
Elektřina:
230 V
Odpad:
Kanalizace
Celková plocha:
131 m²
Zastavěná plocha:
131 m²
Plyn:
Plynovod
Telekomunikace:
Internet
Typ domu:
Přízemní
Umístění objektu:
Centrum obce
Voda:
Dálkový rozvod
Energetická náročnost budovy:
B
Měrná vypočtená roční spotřeba energie v kWh/m²/rok:
95