Translate with 
MENU ZAVŘÍT

Prodej domu 70 m², Čistá (ID 023-NP08742)

Čistá, okres Rakovník mapa

1 480 000 Kč ( za nemovitost)
GMimořádně
nehospodárná

2x
70 m2
543 m2
1
Exkluzivně

Prodej RD 3+kk Čistá u Rakovníka

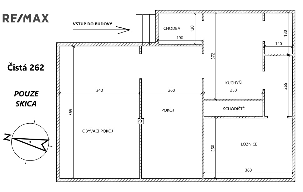
Nabízíme k prodeji bývalý drážní domek o dispozici 3+kk v Čisté u Rakovníka se zastavěnou plochou 88 m2 a vlastním pozemkem o celkové výměře 543 m2.

Dům byl vystavěn z cihel, je z 2/3 podsklepen, střecha je z pálených tašek - bobrovek. Jak je vidět z fotodokumentace, nemovitost je určena k celkové rekonstrukci. Při rekonstrukci se nabízí vybudování obytného podkroví. Na zahradě je studna z betonových skruží, vodovod i kanalizace jsou na kraji pozemku a nová el. přípojka je přivedena na dům. Majitel nabízí pomoc/konzultaci s vyřízením dotací NZÚ (zejm. oprav dům po babičce). Pozemek je rovinatý a přímo přiléhá k málo frekventované obecní komunikaci. Železnice vedoucí do města Rakovník má pouze víkendový provoz a to 4 páry vlaků za den.

Obec Čistá má necelých 900 obyvatel, najdeme zde Obecní úřad, ZŠ, MŠ, COOP, muzeum, poštu, restauraci. Do okresního města Rakovník je to cca 16 km, pokud jste z Plzně, máte to 45 km a na kraj prahy je to cca 70 km a jste tam do hodinky.

Pro další informace nebo prohlídku informujte makléře nemovitosti.
Cena:
1 480 000 CZK / za nemovitost
Poznámka k ceně:
Upozornění:
Prodávající si vyhrazuje právo vybrat kupujícího na základě jím zvolených kritérií.
RX finance

Spočítejte si splátku hypotéky

Na kolik vás vyjde pořízení vlastního bydlení? Zadejte pár informací do naší hypoteční kalkulačky a hned si prohlédněte výsledek.

Kupní cena nemovitosti

1 480 000 Kč

Výše hypotéky

Doba splácení

Vypočítaná měsíční splátka

Úroková sazba 3.6%

260 990 Kč

Hypotéku zařídíme za vás

Ušetřete svůj čas i nervy. Naši makléři zařídí veškeré papírování a dovedou vás až k úspěšnému podpisu smlouvy v bance.

Nechte nám kontakt, náš makléř se v pracovní dny ozve do 24 hodin

* – toto pole je nutné vyplnit
Milan Bílý
RE/MAX G8 Reality 2
Kleinerova 1466
Kladno, 27201
Česká republika
Tel. na makléře: +420 723 612 197
Tel. do kanceláře: +420 312 240 239
E-mail: milan.bily@re-max.cz

Potřebujete poradit/máte zájem o prohlídku?

* – toto pole je nutné vyplnit

Podrobné informace

Číslo zakázky:
ID 023-NP08742
Poloha objektu:
Samostatný
Počet podlaží v objektu:
1
Užitná plocha:
70 m²
Plocha parcely:
543 m²
Druh objektu:
Smíšená
Stav objektu:
Před rekonstrukcí
Typ nemovitosti:
Domy a vily
Doprava:
Vlak, Silnice, Autobus
Elektřina:
230 V
Odpad:
Kanalizace
Plocha zahrady:
455 m²
Zastavěná plocha:
88 m²
Typ domu:
Přízemní
Umístění objektu:
Okraj obce
Voda:
Dálkový rozvod
Energetická náročnost budovy:
G