Translate with 
MENU ZAVŘÍT

Pronájem výrobních prostor 295 m², Rožnov pod Radhoštěm (ID 133-NP02554)

ulice Pivovarská, Rožnov pod Radhoštěm mapa

25 000 Kč ( za měsíc)
CÚsporná

295 m2
Exkluzivně

Pronájem nebytových prostor na ulici Pivovarská, Rožnov pod Radhoštěm.

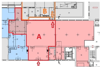
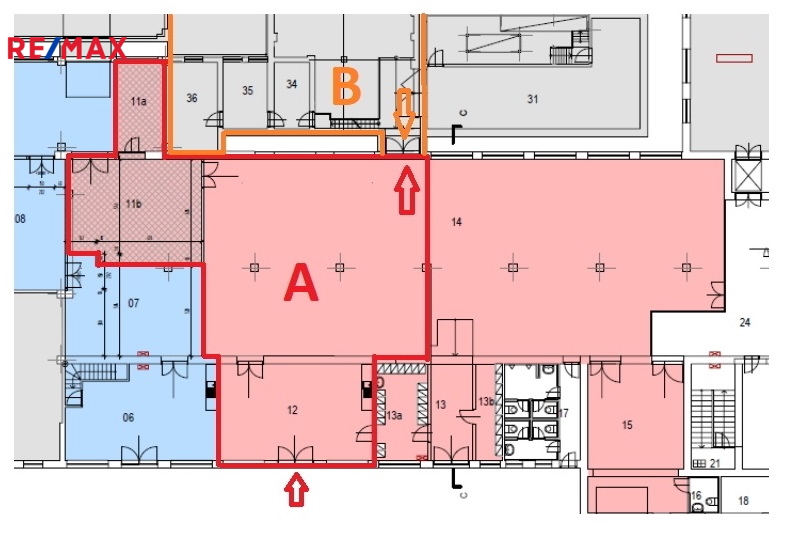
Nabízíme k pronájmu prostory pro obchod/prodejnu/skladování/lehkou výrobu o výměře ca. 295m2 (prostor znázorněn "A") ca. 300m od centra Rožnova pod Radhoštěm na ulici Pivovarská.

Prostory lze v případě zájmu rozšířit od dalších 222m2 (prostor znázorněn "B").

Budova i okolí je po celkové revitalizaci (...zatepleno, vlastní kotelna, vlastní trafostanice,...), areál oplocen, hlídán pomocí CCTV atd.

V případě dotazů popř. zájmu o prohlídku mne prosím neváhejte kontaktovat.

Prostor "A" volný od 1.7.2026 (po dohodě možno i dříve)
Cena by měla být za prostor A (včetně jednoho vyhrazeného parkovacího místa)
Nájemné 35000Kč + DPH
Služby 9000 + DPH
záloha topení (vychází bez doplatku)
paušální platba vodné-stočné
paušální platba elektřina společných prostor (osoušeče rukou, venkovní osvětlení, kamerový systém, ohřev TUV…)
paušální platba úklid venkovních prostor a společných prostor (včetně úklidových a hygienických prostředků)
paušální platba internet

Prostor "B" k dispozici IHNED
Cena by měla být za prostor B (včetně dvou vyhrazených parkovacích míst)
Nájemné 25000 + DPH
Služby 5000 + DPH
záloha topení (vychází bez doplatku)
záloha platba vodné-stočné (vlastní vodoměr a ohřev TUV)
paušální platba elektřina společných prostor (venkovní osvětlení, kamerový systém…)
paušální platba úklid venkovních prostor
paušální platba internet


Cena za celek „A“ + „B“ dohodou.

JItka Fröhlichová, Vaše realitní makléřka pro tuto oblast.
Cena:
25 000 CZK / za měsíc
Poznámka k ceně:
Upozornění:
Pronajímající si vyhrazuje právo vybrat nájemce na základě jím zvolených kritérií.
Jitka Fröhlichová
RE/MAX Actual
Kadláčkova 360/19
Kopřivnice, 74221
Česká republika
Tel. na makléře: +420 776 257 694
Tel. do kanceláře: +420 725 686 530
E-mail: jitka.frohlichova@re-max.cz

Potřebujete poradit/máte zájem o prohlídku?

* – toto pole je nutné vyplnit

Podrobné informace

Číslo zakázky:
ID 133-NP02554
Typ nemovitosti:
Komerční prostory
Druh prostor:
Výrobní
Počet podlaží v objektu:
4
Plocha kanceláří:
295 m²
Druh objektu:
Cihlová
Stav objektu:
Velmi dobrý
K nastěhování:
1. 1. 2026
Celková plocha:
295 m²
Počet parkovacích míst:
20
Typ domu:
Přízemní
Umístění objektu:
Centrum obce
Energetická náročnost budovy:
C