Translate with 
MENU ZAVŘÍT

Prodej bytu 4+1 v osobním vlastnictví 78 m², Kyjov (ID 163-NP05266)

ulice Sídliště Zahradní, Kyjov mapa

5 750 000 Kč ( za nemovitost)
GMimořádně
nehospodárná

1x
4x
78 m2
3/5
Exkluzivně

Prodej bytu 4+1 s balkonem, komorou a sklepem v Kyjově, 78 m2

Nabídka kompletně opraveného bytu 4+1 s balkonem, komorou a sklepem v příjemné a klidné lokalitě v Kyjově.
Byt je možné i směnit za menší byt v Kyjově s doplatkem.
Dispozice bytu na směnu 2+1, 2+kk, 3+1, 3+kk, po rekonstrukci, balkon nebo lodžie, výtah nebo max. 1. patro.
Sídliště Zahradní je v docházkové vzdálenosti 10' od centra města, je zde hodně zeleně a díky poloze bytového domu až v zadní části se jedná o klidné prostředí.
V blízkosti bytu se nachází 2 obchody s potravinami, autobusová zastávka, vlakové nádraží, městský park, stadion a koupaliště.
Byt v osobním vlastnictví je umístěn ve 2. patře (3. NP) revitalizovaného panelového bytového domu bez výtahu.
Revitalizace domu zahrnovala: zateplenou fasádu, plastová okna, prostorné balkony.
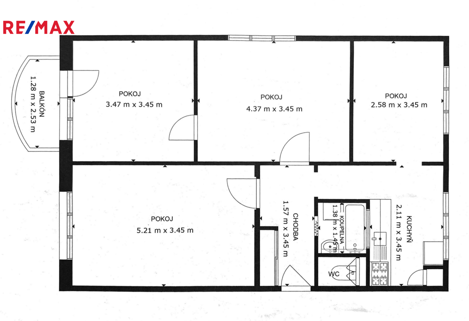
Dispozice bytu:
- obývák (18,2 m2),
- 3 pokoje (15,4, 12 a 8,9 m2),
- kuchyně (9 m2),
- vstupní chodba (5,3 m2),
- koupelna s umyvadlem a sprchou (2,1 m2),
- samostatná toaleta (0,9 m2),
- balkon (3,81 m2).
Podlahová plocha bytu bez balkonu je 71,8 m2.
Půdorys ve fotografiích je rozměrově správný, změna je uvnitř koupelny.
Byt prošel před 2 lety kompletní opravou: rozvody elektřiny, vody a odpadů; omítky s perlinkou, sádrokartonové podhledy, dřevěné podlahy v obytných místnostech, velkoformátová dlažba a obklady v koupelně a na toaletě, kuchyňská linka se spotřebiči Mora (plynová varná deska, elektrická pečící trouba, odsavač par), nová sanita v koupelně a na toaletě, vestavěné skříně (9 částí), stínící okenní textil, vchodové bezpečnostní protipožární dveře, interiérové dveře vč. obložek.
Byt bude předán s kuchyňskou linkou, vestavěnými skříněmi a několika dalšími kusy nábytku.
Vytápění je ústřední dálkové a také teplá voda je přiváděna dálkově.
Orientace bytu: jih - západ - sever.
V mezipatře patří k bytu komora na uskladnění věcí (1,65 m2).
Předmětem prodeje je i sklepní kóje (1 m2).
Celková plocha bytu vč. balkonu, komory a sklepa je 78,3 m2.
Měsíční náklady: 3.500 pro SVJ (vč. FO 1.200) + elektřina a plyn, v bytě bydlí nyní 1 osoba.
V domě je již zaveden optický kabel.
Parkovat lze bezproblémově u domu na základě parkovací karty, na nově vybudovaných parkovacích stáních za 600 Kč/rok.
Ve městě najdete veškerou občanskou vybavenost: MěÚ, několik MŠ, tři ZŠ, gymnázium, dvě odborná učiliště, LŠU, Dům s pečovatelskou službou, Centrum služeb pro seniory, nemocnici s poliklinikou, řadu soukromých praxí dětských, obvodních a odborných lékařů, vlakové a autobusové nádraží, poštu, kompletní síť obchodů a služeb, kulturní dům a knihovnu, 2 kina (jedno je letní), stadion, aqua a venkovní koupaliště.
Kyjov je vzdálen 20 km od Hodonína, 35 km od Uherského Hradiště a 53 km od Brna.
Finanční služby: vyřešte platbu za svůj nový domov tam, kde jste ho koupili.
S RX FINANCE nikam jinam pro hypotéku nemusíte.
Osobně mě najdete v kyjovské kanceláři Masarykovo náměstí 7 (v průchodu).
Cena:
5 750 000 CZK / za nemovitost
Poznámka k ceně:
Upozornění:
Prodávající si vyhrazuje právo vybrat kupujícího na základě jím zvolených kritérií.
RX finance

Spočítejte si splátku hypotéky

Na kolik vás vyjde pořízení vlastního bydlení? Zadejte pár informací do naší hypoteční kalkulačky a hned si prohlédněte výsledek.

Kupní cena nemovitosti

5 750 000 Kč

Výše hypotéky

Doba splácení

Vypočítaná měsíční splátka

Úroková sazba 3.6%

260 990 Kč

Hypotéku zařídíme za vás

Ušetřete svůj čas i nervy. Naši makléři zařídí veškeré papírování a dovedou vás až k úspěšnému podpisu smlouvy v bance.

Nechte nám kontakt, náš makléř se v pracovní dny ozve do 24 hodin

* – toto pole je nutné vyplnit
Mgr. Veronika Šimečková
RE/MAX Delta
Panská 397/2
Brno, 60200
Česká republika
Tel. na makléře: +420 723 624 697
Tel. do kanceláře: +420 607 449 860
E-mail: veronika.simeckova@re-max.cz

Potřebujete poradit/máte zájem o prohlídku?

* – toto pole je nutné vyplnit

Podrobné informace

Číslo zakázky:
ID 163-NP05266
Dispozice:
4+1
Číslo podlaží:
3
Počet podlaží v objektu:
5
Podlahová plocha:
78 m²
Druh objektu:
Panelová
Stav objektu:
Po rekonstrukci
Vlastnictví:
Osobní
Typ nemovitosti:
Byty
Charakter okolní zástavby:
Obytná
K nastěhování:
1. 4. 2026
Elektřina:
230 V
Odpad:
Kanalizace
Užitná plocha:
78 m²
Umístění objektu:
Sídliště
Voda:
Dálkový rozvod
Vybaveno:
Ano
Energetická náročnost budovy:
G