Translate with 
MENU ZAVŘÍT

Pronájem bytu 3+kk v osobním vlastnictví 89 m², Poděbrady (ID 299-NP00274)

ulice Tyršova, Poděbrady – část obce Poděbrady III mapa

19 500 Kč ( za měsíc)
GMimořádně
nehospodárná

kk
3x
89 m2
3/4
Exkluzivně

Pronájem bytu 3+kk nedaleko lázeňské kolonády, Tyršova ulice, Poděbrady

Nová nabídka. Představujeme vám pronájem pěkného prostorného bytu 3+kk o celkové ploše 89,3 m2. Byt se nachází v druhém patře cihlového domu bez výtahu v Tyršově ulici v samém centru města.

Byt prošel částečnou rekonstrukcí včetně výměny oken za plastová. Vytápění a ohřev vody probíhá pomocí vlastního kondenzačního plynového kotle. V bytě je položena v obytných místnostech vinylová podlaha, ostatní plochy mají keramickou dlažbu.

Kuchyňská linka je vybavena sklokeramickou varnou deskou, digestoří, el. troubou a dřezem s baterií. Koupelna obsahuje vanu, umyvadlo, toaleta je samostatná.

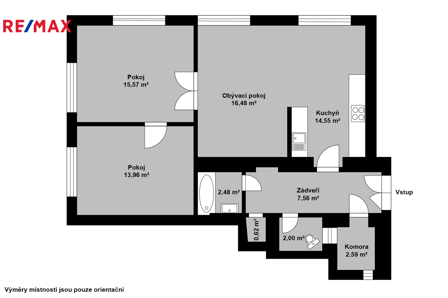
Dispozice nemovitosti: vstupní chodba, obývací pokoj s kuchyňským koutem, ložnice, dětský pokoj, koupelna s vanou, 2x komora a samostatné WC. Ve fotogalerii naleznete jak půdorys bytu, tak i virtuální prohlídku.

K bytu náleží taktéž zděný sklep v suterénu domu, který má přístup také přímo z ulice. Celková plocha bytu je 89,3 m2 včetně uvedeného sklepa. Byt je pečlivě uklizen a může ihned sloužit k bydlení.

Nemovitost je situována v Tyršově ulici, pár minut chůze od lázeňské kolonády, parků a zeleně, zároveň s rychlou dostupností vlakového i autobusového nádraží a samotného centra města. Díky orientaci na východ a jih je interiér příjemně prosvětlený.

Poděbrady jsou vyhledávané lázeňské město s dlouhou tradicí, příjemnou atmosférou a pestrou gastronomickou scénou v rámci atraktivní rekreační oblasti Polabské nížiny. Do Prahy se pohodlně dostanete autem po dálnici D11, přičemž dálniční přivaděč je vzdálen přibližně 5 km. K dispozici je také pravidelné železniční spojení – přímé vlaky do Prahy jezdí zhruba každou hodinu po celý den, a nechybí ani přímé autobusové linky na Prahu – Černý Most (metro B).

Město nabízí kompletní občanskou vybavenost včetně lékařských ordinací, mateřských škol, základních i středních škol, gymnázia, supermarketů a dalších služeb. Okolí potěší milovníky aktivního odpočinku: najdete zde parky, cyklostezky, sportoviště, dětská hřiště i možnosti koupání v přírodním koupališti.

Měsíční náklady na provoz bytu pro dvě osoby jsou cca 4 000 Kč (záloha na elektrickou energii 1 000 Kč, záloha na plyn 2 000 Kč, vodné a stočné a další měsíční platby 1 000 Kč). V případě využívání bytu jednou osobou se dá předpokládat měsíční náklad cca 3 500 Kč. SVJ zatím nepředalo PENB; do jeho doložení uvádíme dle zákona třídu G, přičemž zájemcům máme k dispozici vyúčtování energií za poslední 3 roky, které lépe ukazuje reálné provozní náklady.

S předáním bytu si nájemce na sebe převede platby za elektrickou energií a plyn, záloha na vodné a stočné se hradí majiteli nemovitosti společně s nájemným. Celkové počáteční náklady na bydlení jsou 46 000 Kč (21 500 Kč nájemné na první měsíc včetně zálohy na energie plus vratná kauce 39 000 Kč). Zájemce nehradí provizi za zprostředkování pronájmu bytu.

Majitelé uvítají bezproblémové a zaměstnané osoby, nekuřáky a ideálně zájemce bez domácích mazlíčků. Prohlídky probíhají od úterý 13. ledna. Těším se na setkání!
Cena:
19 500 CZK / za měsíc
Poznámka k ceně:
+ energie, vratná kauce 39 000 Kč
Upozornění:
Pronajímající si vyhrazuje právo vybrat nájemce na základě jím zvolených kritérií.
Ivo Hendrych
RE/MAX Happy
Palackého 69
Poděbrady, 29001
Česká republika
Tel. na makléře: +420 608 663 366
Tel. do kanceláře: +420 608 663 366
E-mail: ivo.hendrych@re-max.cz

Potřebujete poradit/máte zájem o prohlídku?

* – toto pole je nutné vyplnit

Podrobné informace

Číslo zakázky:
ID 299-NP00274
Dispozice:
3+kk
Číslo podlaží:
3
Počet podlaží v objektu:
4
Podlahová plocha:
89 m²
Druh objektu:
Cihlová
Stav objektu:
Dobrý
Vlastnictví:
Osobní
Typ nemovitosti:
Byty
Charakter okolní zástavby:
Obytná
K nastěhování:
15. 1. 2026
Elektřina:
230 V
Odpad:
Kanalizace
Užitná plocha:
86 m²
Plyn:
Plynovod
Počet podlaží pod zemí:
1
Rok rekonstrukce:
2000
Umístění objektu:
Centrum obce
Voda:
Dálkový rozvod
Energetická náročnost budovy:
G