Translate with 
MENU ZAVŘÍT

Pronájem bytu 2+kk v osobním vlastnictví 44 m², Praha 4 - Nusle (ID 262-NP00577)

ulice Mužíkova, Praha 4 – Nusle mapa

28 500 Kč ( za měsíc)
BVelmi
úsporná

kk
2x
44 m2
3/11
Exkluzivně

Pronájem nového bytu 2+kk v ikonickém projektu Nuselský pivovar – lodžie, garáž, sklep

Hledáte bydlení, které má styl, energii a všechno důležité doslova pár kroků od dveří?

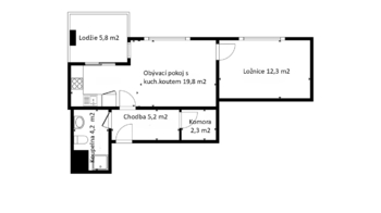
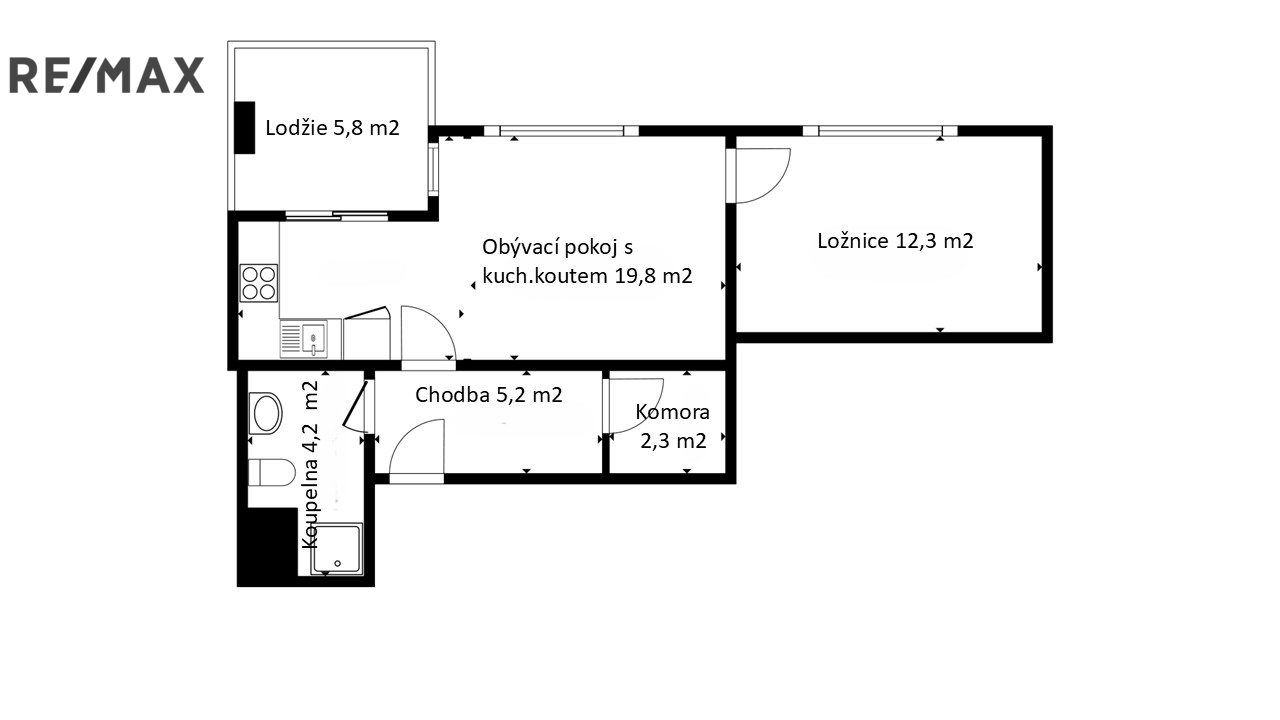
V novostavbě projektu Nuselský pivovar nabízíme k pronájmu krásný, ještě neobývaný byt 2+kk o velikosti 43,7 m² s prostornou lodžií (cca 6 m²) ve 3. NP.
Byt působí svěže a čistě — je připravený stát se vaším novým místem k životu.
K dispozici je moderní kuchyňská linka s velkým úložným prostorem, plně vybavená vestavěnými spotřebiči zn. Beko (lednice s mrazákem, myčka, trouba s varnou deskou, mikrovlnná trouba). Jinak je byt nezařízený, takže si ho můžete doladit přesně podle svých představ.
V bytě jsou dřevěné podlahy a v dohledné době budou dodělány venkovní žaluzie.
V koupelně je sprchový kout.
Součástí pronájmu je také garážové stání a velký sklep, což je v této lokalitě obrovská výhoda.

Nuselský pivovar je výjimečné místo, které si vás získá hned při první návštěvě.
Stylová kavárna, dětské hlídání, fitness, obchody i služby — to všechno vytváří pocit komunity a přináší pohodlí při bydlení.
Lokalita má skvělou dostupnost MHD.

Byt je okamžitě k nastěhování.

Nájemné: 28 500 Kč
Zálohy na poplatky pro 2 osoby: 4 500 Kč + elektřina bude přepsána na nájemce
Vratná kauce: 50 000 Kč
Cena:
28 500 CZK / za měsíc
Poznámka k ceně:
Upozornění:
Pronajímající si vyhrazuje právo vybrat nájemce na základě jím zvolených kritérií.
Ing. Petra Hrdličková
RE/MAX Scopus
Olbrachtova 1065/46
Praha 4 - Krč, 14000
Česká republika
Tel. na makléře: +420 777 945 012
Tel. do kanceláře: +420 733 746 846
E-mail: petra.hrdlickova@re-max.cz

Potřebujete poradit/máte zájem o prohlídku?

* – toto pole je nutné vyplnit

Podrobné informace

Číslo zakázky:
ID 262-NP00577
Dispozice:
2+kk
Číslo podlaží:
3
Počet podlaží v objektu:
11
Podlahová plocha:
44 m²
Druh objektu:
Cihlová
Stav objektu:
Novostavba
Vlastnictví:
Osobní
Typ nemovitosti:
Byty
Charakter okolní zástavby:
Obytná
K nastěhování:
1. 1. 2026
Doprava:
Vlak, Silnice, MHD, Autobus
Garáž:
Ano
Odpad:
Kanalizace
Užitná plocha:
44 m²
Zastavěná plocha:
46 m²
Voda:
Dálkový rozvod
Vybaveno:
Ano
Výtah:
Ano
Energetická náročnost budovy:
B