Translate with 
MENU ZAVŘÍT

Prodej domu 130 m², Mnichovo Hradiště (ID 323-NP00168)

ulice Havlíčkova, Mnichovo Hradiště mapa

4 990 000 Kč ( za nemovitost)
GMimořádně
nehospodárná

5+
130 m2
417 m2
3
Exkluzivně

Prodej rodinného domu v srdci Mnichova Hradiště – skvělý základ pro rekonstrukci

Tento dům v historickém centru Mnichova Hradiště, postavený přímo na skále, nabízí jedinečnou příležitost pro ty, kdo hledají místo s potenciálem a zároveň klidné, ale výborně dostupné prostředí. I když dům nemá přímý výhled na krajinu, jeho poloha je ideální pro každodenní pohodový život s veškerou občanskou vybaveností na dosah.

Co nabízí samotný dům?
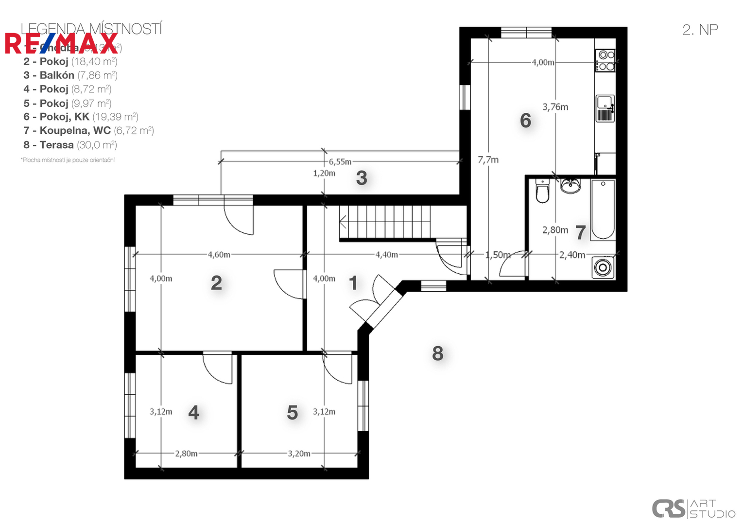
• Dispozice 4+1 s garzonkou nad garáží – vhodné pro rodinné bydlení nebo s možností využití pro hosty či pronájem.
• Podlahová plocha přes 130 m², k tomu zahrada o velikosti 417 m², kde si můžete vytvořit venkovní prostor podle vlastních představ.
• Sklep o velikosti 20 m², přímo vytesaný ve skále – prostor, který jen tak někde nenajdete. Může sloužit jako sklad, nebo originální místo pro hobby.
• Dům je připraven k rekonstrukci, takže máte šanci přetvořit ho přesně podle svých představ.
• Skvělá lokalita v centru Mnichova Hradiště, s veškerými službami na dosah – školy, školky, obchody a restaurace. A do Mladé Boleslavi to máte jen 15 minut.

Co dělá Mnichovo Hradiště tak atraktivním?
Kromě historického centra a bohaté občanské vybavenosti nabízí město i krásné přírodní scenérie, ideální pro všechny, kteří rádi tráví čas v přírodě. Okolí se pyšní přírodními krásami jako jsou Drábské světničky, Příhrazské skály, vrch Káčov a zřícenina hradu Klamorna – skvélé pro turistiku, cykloturistiku nebo procházky.

Investiční příležitost:
Dům má skvělý potenciál pro rekonstrukci. Můžete vytvořit několik bytových jednotek, nebo zkombinovat bydlení s pronájmem. Navíc díky své poloze v památkové zóně a blízkosti přírodních a kulturních památek může být ideální pro turistické pronájmy, což je příležitost pro investory hledající zisk.

Pokud vás zaujala tato nabídka, neváhejte se mi ozvat a domluvit si prohlídku. Určitě se vám bude líbit!
Cena:
4 990 000 CZK / za nemovitost
Poznámka k ceně:
Upozornění:
Prodávající si vyhrazuje právo vybrat kupujícího na základě jím zvolených kritérií.
RX finance

Spočítejte si splátku hypotéky

Na kolik vás vyjde pořízení vlastního bydlení? Zadejte pár informací do naší hypoteční kalkulačky a hned si prohlédněte výsledek.

Kupní cena nemovitosti

4 990 000 Kč

Výše hypotéky

Doba splácení

Vypočítaná měsíční splátka

Úroková sazba 3.6%

260 990 Kč

Hypotéku zařídíme za vás

Ušetřete svůj čas i nervy. Naši makléři zařídí veškeré papírování a dovedou vás až k úspěšnému podpisu smlouvy v bance.

Nechte nám kontakt, náš makléř se v pracovní dny ozve do 24 hodin

* – toto pole je nutné vyplnit
Lukáš Kulík
RE/MAX Life
ČSA 152/11
Milovice, 28923
Česká republika
Tel. na makléře: +420 602 050 282
Tel. do kanceláře: +420 608 068 505
E-mail: lukas.kulik@re-max.cz

Potřebujete poradit/máte zájem o prohlídku?

* – toto pole je nutné vyplnit

Podrobné informace

Číslo zakázky:
ID 323-NP00168
Poloha objektu:
Samostatný
Počet podlaží v objektu:
3
Užitná plocha:
130 m²
Plocha parcely:
417 m²
Druh objektu:
Cihlová
Stav objektu:
Před rekonstrukcí
Typ nemovitosti:
Domy a vily
Elektřina:
230 V, 400 V
Garáž:
Ano
Odpad:
Kanalizace
Plyn:
Plynovod
Typ domu:
Přízemní
Umístění objektu:
Centrum obce
Energetická náročnost budovy:
G