Translate with 
MENU ZAVŘÍT

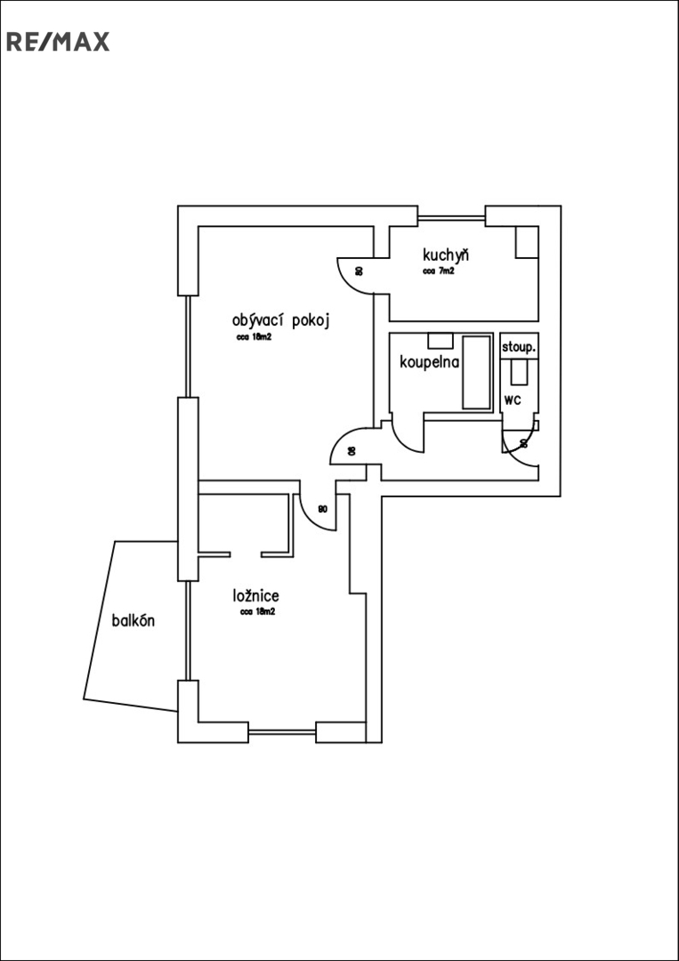
Pronájem bytu 2+1 v družstevním vlastnictví 52 m², Praha 6 - Dejvice (ID 273-NP04607)

ulice Na Míčánce, Praha 6 – Dejvice mapa

17 000 Kč ( za měsíc)
CÚsporná

1x
2x
52 m2
2/3

podnájem 2+1/B na Hanspaulce

Nabízíme k podnájmu nábytkem nevybavený byt 2+1 s balkonem a sklepem (byt cca 50 m2 + 2 m2 balkon + 3 m2 sklep) na Praze 6 na Hanspaulce, bude volný od března. Je to TOP-lokalita, ul. Na Míčánce 13, Praha 6. Měsíčně 17.000 Kč + měsíční zálohy za služby (4.500,- Kč na 2 os.). Byt je po část. rekonstrukci. Jedná se o družstevní byt, 2. patro bez výtahu, krásný výhled na Prahu a kolem dokola luxusní vily, celkem má dům 3 patra.
Cena:
17 000 CZK / za měsíc
Poznámka k ceně:
+ provize RK
Upozornění:
Pronajímající si vyhrazuje právo vybrat nájemce na základě jím zvolených kritérií.
JUDr. Jaroslav Vašíček
RE/MAX Partner
Řeporyjské náměstí 16
Praha 5 - Řeporyje, 15500
Česká republika
Tel. na makléře: +420 602 137 716
Tel. do kanceláře: +420 800 434 434
E-mail: jaroslav.vasicek@re-max.cz

Potřebujete poradit/máte zájem o prohlídku?

* – toto pole je nutné vyplnit

Podrobné informace

Číslo zakázky:
ID 273-NP04607
Dispozice:
2+1
Číslo podlaží:
2
Počet podlaží v objektu:
3
Podlahová plocha:
52 m²
Druh objektu:
Smíšená
Stav objektu:
Velmi dobrý
Vlastnictví:
Družstevní
Typ nemovitosti:
Byty
K nastěhování:
1. 3. 2026
Odpad:
Kanalizace
Užitná plocha:
52 m²
Plyn:
Plynovod
Energetická náročnost budovy:
C