Translate with 
MENU ZAVŘÍT

Prodej domu 300 m², České Budějovice (ID 111-NP08651)

ulice Pekárenská, České Budějovice – část obce České Budějovice 3 mapa

15 900 000 Kč ( za nemovitost)
GMimořádně
nehospodárná

5+
300 m2
245 m2
2
Exkluzivně

Činžovní dům 300 m2 v centru Českých Budějovic – Pekárenská ulice

V samotném srdci Českých Budějovic, ve výborně dostupné Pekárenské ulici, se nachází činžovní dům s mimořádně širokým využitím – ideální kombinace bydlení, podnikání a investice.
Dům stojí na vlastním pozemku o výměře 245 m2 - zastavěná plocha a nádvoří. Užitná plocha domu je 300 m2.

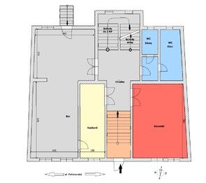
V přízemí domu je aktuálně provozovaný bar 25 m2 s menším zázemím - kuchyní se zavedeným chodem, který disponuje vstupem na velký uzavřený dvůr. Ten dnes slouží jako venkovní posezení pro hosty, do budoucna se však nabízí možnost jeho přeměny na soukromou zahradu, klidný vnitroblok nebo reprezentativní dvorek pro jiný typ provozu.

Součástí přízemí je také samostatná místnost 22,4 m2, která v minulosti sloužila jako kancelář. Díky své variabilitě může být využita například jako garsonka, ordinace (zubní, terapeutická), sklad, výrobna, provozovna e-shopu, ateliér či další komerční prostor. V přízemí se dále nachází toalety a vstup do sklepa.

Dům je celopodsklepený, sklepní prostory zahrnují technické zázemí včetně kotle, který zajišťuje vytápění - aktuálně podlahové vytápění baru i dalších místností pomocí radiátorů. Sklep je členitý a zahrnuje možnost rozdělit jej na 7 samostatných sklepních kójí pro každou bytovou jednotku.

V patře domu se nachází bytová jednotka o dispozici 3+kk, 121 m2, která je vyklizená a nezařízená, připravená k okamžitému využití či úpravám dle potřeb nového majitele. Dominantou bytu je prostorný obývací prostor propojený s kuchyní a jídelnou. Byt dále nabízí ložnici se vstupem na balkon, další samostatný pokoj orientovaný do ulice, dvě komory a šatnu poskytující dostatek úložného prostoru. K dispozici je velká koupelna se sprchovým koutem, WC a rohovou vanou. Byt má vlastní vytápění pomocí kotle a samostatné měření.

Dalším velkým benefitem je podkroví (půda) 121 m2, které je v současnosti využíváno jako úložný prostor, avšak nabízí výrazný potenciál k vestavbě dalších bytových jednotek, ateliéru či rozšíření obytné plochy.

Dům prošel částečnou rekonstrukcí přibližně před 10 lety – zahrnovala výměnu části oken, úpravy fasády a střechy. Některé prvky jsou však stále původní, a objekt je tak vhodný k další modernizaci či rekonstrukci dle investičního záměru.

Objekt je napojený na veškeré inženýrské sítě, vytápění zajišťují 2 plynové kotle.

Nemovitost je ideální:

- jako investiční příležitost (kombinace komerčních prostor + byt + možnost dalších jednotek),
pro vlastní podnikání s možností bydlení přímo v domě,

- nebo jako dům s vícezdrojovým výnosem (provozovna, nájem bytu, budoucí vestavba).

Díky své poloze v centru města, variabilní dispozici a širokým možnostem využití představuje tento dům výjimečnou příležitost pro ty, kdo hledají prostor s potenciálem, charakterem a dlouhodobou hodnotou. Parkování je řešeno modrou zónou hned před domem a v blízkém okolí, případně v centru IGY, které je v docházkové vzdálenosti od domu.
V případě zájmu o nemovitost nás neváhejte kontaktovat.
Cena:
15 900 000 CZK / za nemovitost
Poznámka k ceně:
Upozornění:
Prodávající si vyhrazuje právo vybrat kupujícího na základě jím zvolených kritérií.
RX finance

Spočítejte si splátku hypotéky

Na kolik vás vyjde pořízení vlastního bydlení? Zadejte pár informací do naší hypoteční kalkulačky a hned si prohlédněte výsledek.

Kupní cena nemovitosti

15 900 000 Kč

Výše hypotéky

Doba splácení

Vypočítaná měsíční splátka

Úroková sazba 3.6%

260 990 Kč

Hypotéku zařídíme za vás

Ušetřete svůj čas i nervy. Naši makléři zařídí veškeré papírování a dovedou vás až k úspěšnému podpisu smlouvy v bance.

Nechte nám kontakt, náš makléř se v pracovní dny ozve do 24 hodin

* – toto pole je nutné vyplnit
Ing. Karel Exl
RE/MAX Dynamic
Kanovnická 75/4
České Budějovice, 37001
Česká republika
Tel. na makléře: +420 724 832 802
Tel. do kanceláře: +420 725 910 910
E-mail: karel.exl@re-max.cz

Potřebujete poradit/máte zájem o prohlídku?

* – toto pole je nutné vyplnit

Podrobné informace

Číslo zakázky:
ID 111-NP08651
Poloha objektu:
Řadový
Počet podlaží v objektu:
2
Užitná plocha:
300 m²
Plocha parcely:
245 m²
Druh objektu:
Smíšená
Stav objektu:
Před rekonstrukcí
Typ nemovitosti:
Domy a vily
K nastěhování:
15. 1. 2026
Odpad:
Kanalizace
Plocha zahrady:
83 m²
Zastavěná plocha:
143 m²
Plyn:
Plynovod
Typ domu:
Patrový
Umístění objektu:
Centrum obce
Voda:
Dálkový rozvod
Vybaveno:
Ano
Energetická náročnost budovy:
G