Translate with 
MENU ZAVŘÍT

Pronájem bytu 3+1 v osobním vlastnictví 90 m², Kladno (ID 023-NP08770)

ulice Poštovní náměstí, Kladno mapa

19 000 Kč ( za měsíc)
GMimořádně
nehospodárná

1x
3x
90 m2
3/4
Exkluzivně

Byt 3+1, 90 m2, Kladno, Poštovní nám.

Pronájem prostorného a světlého cihlového bytu v centru Kladna s možností parkování ve dvoře.
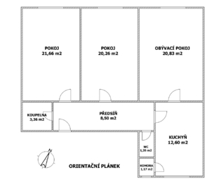
Byt 3+1 s obytnou plochou 89,7 m2 se nachází ve 2. patře staršího činžovního domu v Kladně, na rekonstruovaném Poštovním náměstí 190 (nad hlavní poštou). Klidné a pohodlné bydlení ve velkých pokojích, v domě je jen osm bytů. Navíc je možnost pronájmu parkovacího místa ve vlastním uzavřeném dvoře za 1.000 Kč měsíčně, v suterénu je k dispozici sklep 9,5 m2.
Tři neprůchozí, nadprůměrně velké pokoje, kuchyň s velkým oknem, koupelna s vanou, samostatná toaleta, komora v bytě. Díky vlastnímu plynovému kotli nejste závislí na dálkovém topení ani na rozpočítávání ztrátového tepla.
Byt je v dobrém stavu: má plastová okna a nové podlahy ve všech pokojích, kuchyni a chodbě.
Měsíční nájemné 19.000 Kč, poplatky za užívání bytu 4.073 Kč (pro dvě osoby, každá další +375 Kč) + elektřina a plyn, celkem cca 26.900 Kč. Kauce 19.000 Kč, odměna RK 19.000 Kč. Při podpisu nájemní smlouvy budete potřebovat 61.073 Kč, zálohy na elektřinu a plyn si budete platit sami později.
Cena:
19 000 CZK / za měsíc
Poznámka k ceně:
Upozornění:
Pronajímající si vyhrazuje právo vybrat nájemce na základě jím zvolených kritérií.
Miroslav Chadima
RE/MAX G8 Reality 2
Kleinerova 1466
Kladno, 27201
Česká republika
Tel. na makléře: +420 605 220 600
Tel. do kanceláře: +420 312 240 239
E-mail: miroslav.chadima@re-max.cz

Potřebujete poradit/máte zájem o prohlídku?

* – toto pole je nutné vyplnit

Podrobné informace

Číslo zakázky:
ID 023-NP08770
Dispozice:
3+1
Číslo podlaží:
3
Počet podlaží v objektu:
4
Podlahová plocha:
90 m²
Druh objektu:
Cihlová
Stav objektu:
Dobrý
Vlastnictví:
Osobní
Typ nemovitosti:
Byty
K nastěhování:
18. 7. 2025
Elektřina:
230 V
Odpad:
Kanalizace
Užitná plocha:
90 m²
Plyn:
Plynovod
Počet podlaží pod zemí:
1
Umístění objektu:
Centrum obce
Voda:
Dálkový rozvod
Energetická náročnost budovy:
G