Translate with 
MENU ZAVŘÍT

Prodej domu 134 m², Želízy (ID 340-NP00168)

Želízy, okres Mělník mapa

3 450 000 Kč ( za nemovitost)
GMimořádně
nehospodárná

3x
134 m2
1013 m2
2
Exkluzivně

Prodej rodinného domu ke kompletní rekonstrukci, stodola, lesní pozemek, obec Želízy okr. Mělník

Nabízím k prodeji rodinný dům ke kompletní rekonstrukci v obci Želízy v okrese Mělník. Stojí na celkovém pozemku o celkové výměře 1 013 m² včetně navazujícího lesního pozemku.

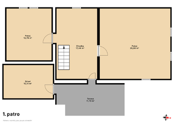
Jedná se o dvoupodlažní, nepodsklepený dům se zastavěnou plochou 102,73 m² a užitnou plochou 133,74 m². Obvodové zdi jsou vyzděny z plných pálených cihel v kombinaci s kamennými bloky o tloušťce přibližně 350 až 850 mm. Hlavní vstupní dveře jsou orientovány na severní světovou stranu. Plastová okna s dvojskly se nacházejí na všech světových stranách kromě jižní. Dům je zastřešen sedlovou střechou s krytinou z pálených tašek. Vjezd na pozemek je zajištěn z obecní komunikace.

Nemovitost je určena k rekonstrukci, díky čemuž nabízí novým majitelům možnost upravit si celý dům přesně podle vlastních představ a potřeb. V přízemí byly v letech 2022 až 2023 realizovány částečně podhledy, podlahy zde tvoří parkety a lino. V přízemí se také nachází předkotelna a kotelna. Koupelna se sprchovým koutem a umístěným elektrickým bojlerem, samostatná toaleta, obývací pokoj s přípravou na kuchyňský kout. Ve druhém nadzemním podlaží se nachází dvě samostatné místnosti a z chodby terasa se vstupem do místnosti využívané jako sklad. Dalším benefitem je prostorná půda s potenciálem dalšího využití.

Technické zázemí domu zahrnuje napojení na obecní vodovod, elektřinu 220 V i 380 V a odpad je řešený žumpou. Možnost vybudování ČOV. Ohřev teplé vody zajišťuje elektrický bojler o objemu 125 litrů. Vytápění je řešeno kotlem na tuhá paliva značky Benekov. V domě je přivedený internet. Na pozemku se dále nachází prostorná stodola a další skladové zázemí, které může posloužit například jako dílna, úložný prostor nebo hospodářské zázemí.

V obci funguje mateřská škola i základní škola s 1. stupněm, dále zde najdete obchod s potravinami, hostinec a také kemp s koupalištěm. Želízy jsou navíc známé jako vyhledávané turistické místo díky Čertovým hlavám, a také díky dalším skalním reliéfům Václava Levého v okolí. Nedaleko se nachází také hrad Kokořín.

Praktická je i dopravní dostupnost. Autobus č. 400 propojuje Želízy přímo s Mělníkem i Prahou, konkrétně se Střížkovem, 15 minut do Mělníka a zhruba 45 minut do Prahy. Mělník nabízí rychlý dosah širší občanské vybavenosti, supermarketů, doktorů i dalších služeb.

Tato nemovitost je vhodná zejména pro rodiny, které hledají dům s větším pozemkem, venkovskou atmosférou a možností vytvořit si skutečný domov podle vlastních představ v atraktivní lokalitě.

Ozvěte se mi pro více informací nebo domluvení osobní prohlídky. Budu se těšit. Prodávající si vyhrazuje právo vybrat kupujícího na základě jím zvolených kritérií.
Cena:
3 450 000 CZK / za nemovitost
Poznámka k ceně:
včetně kompletního právního servisu, advokátní úschova, vklad vlastnického práva a provize RK
RX finance

Spočítejte si splátku hypotéky

Na kolik vás vyjde pořízení vlastního bydlení? Zadejte pár informací do naší hypoteční kalkulačky a hned si prohlédněte výsledek.

Kupní cena nemovitosti

3 450 000 Kč

Výše hypotéky

Doba splácení

Vypočítaná měsíční splátka

Úroková sazba 3.6%

260 990 Kč

Hypotéku zařídíme za vás

Ušetřete svůj čas i nervy. Naši makléři zařídí veškeré papírování a dovedou vás až k úspěšnému podpisu smlouvy v bance.

Nechte nám kontakt, náš makléř se v pracovní dny ozve do 24 hodin

* – toto pole je nutné vyplnit
Ing. Vladislav Pavlík
RE/MAX Miramar II
Pražská 709
Dolní Břežany, 25241
Česká republika
Tel. na makléře: +420 733 740 351
Tel. do kanceláře: +420 739 555 554
E-mail: vladislav.pavlik@re-max.cz

Potřebujete poradit/máte zájem o prohlídku?

* – toto pole je nutné vyplnit

Podrobné informace

Číslo zakázky:
ID 340-NP00168
Poloha objektu:
Samostatný
Počet podlaží v objektu:
2
Užitná plocha:
134 m²
Plocha parcely:
1 013 m²
Druh objektu:
Smíšená
Stav objektu:
Před rekonstrukcí
Typ nemovitosti:
Domy a vily
Charakter okolní zástavby:
Venkovská
Doprava:
Silnice, Autobus
Elektřina:
230 V, 400 V
Odpad:
Septik
Zastavěná plocha:
103 m²
Telekomunikace:
Internet
Typ domu:
Patrový
Umístění objektu:
Klidná část obce
Voda:
Dálkový rozvod
Energetická náročnost budovy:
G