Translate with 
MENU ZAVŘÍT

Pronájem obchodních prostor 122 m², Pardubice (ID 153-NP02544)

ulice Jana Palacha, Pardubice – městská část Pardubice V mapa

32 000 Kč (vč. DPH, za měsíc)
CÚsporná

122 m2

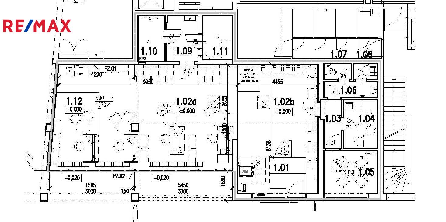
Exkluzivní pronájem obchodních prostor v centru Pardubic

Nabízíme k pronájmu atraktivní obchodní prostory v ulici Jana Palacha v centru Pardubic. Přízemí bytového domu, hlavní silnice s velkým potenciálem oslovení klientů vhodnou reklamou, 122m2, velké výkladce, světlé prostory, dva samostatné vchody z ulice. V zázemí kuchyňka, WC, výlevka, skladové prostory. Vinyl, dlažba. Kryté parkovací stání ve vnitrobloku v ceně nájmu. Příprava na klimatizaci, zabezpečovací systém. Vysokorychlostní Internet. Nízké provozní náklady, dálkové vytápění /Opatovice/. Nájemné 32.000Kč/měs.(bez DPH), elektřina se převádí na nájemce, další služby /teplo, voda../ dle předmětu činnosti. Kauce. Provize RK. Volné od 01.06. 2026.
Cena:
32 000 CZK / za měsíc
Poznámka k ceně:
+ služby
Upozornění:
Pronajímající si vyhrazuje právo vybrat nájemce na základě jím zvolených kritérií.
Ing. Šárka Loukotová
RE/MAX Well
Bratranců Veverkových 2717
Pardubice, 53002
Česká republika
Tel. na makléře: +420 606 716 196
Tel. do kanceláře: +420 606 716 196
E-mail: sarka.loukotova@re-max.cz

Potřebujete poradit/máte zájem o prohlídku?

* – toto pole je nutné vyplnit

Podrobné informace

Číslo zakázky:
ID 153-NP02544
Typ nemovitosti:
Komerční prostory
Druh prostor:
Obchodní
Číslo podlaží:
1
Počet podlaží v objektu:
6
Plocha kanceláří:
122 m²
Druh objektu:
Cihlová
Stav objektu:
Novostavba
K nastěhování:
1. 11. 2021
Doprava:
Silnice, MHD, Autobus
Garáž:
Ano
Odpad:
Kanalizace
Celková plocha:
122 m²
Telekomunikace:
Internet
Typ domu:
Patrový
Voda:
Dálkový rozvod
Energetická náročnost budovy:
C