Translate with 
MENU ZAVŘÍT

Prodej domu 150 m², Horní Bělá (ID 003-NP04817)

Horní Bělá, okres Plzeň-sever mapa

4 590 000 Kč ( za nemovitost)
GMimořádně
nehospodárná

3x
150 m2
886 m2
1
Exkluzivně

Prodej rodinného domu 150 m², pozemek 886 m² Vrtbo - Horní Bělá

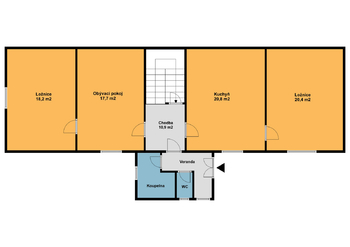
Nabízíme k prodeji rodinný dům ve Vrtbo jež je součástí Horní Bělé 22 km od Plzně. Součástí domu je dílna, sklady, kotelna, garáž, stodola a zahrada. Dům má menší sklep a jeho užitná plocha je cca 150 m2 a dispozice je 3+1 88 m2 s příslušenstvím a s podkrovím kde je možnost vybudovat další obytné prostory. Celková užitná plocha je 339 m2. Dům prošel částečnou rekonstrukcí – střešní krytina, fasáda, okapy, plastová okna, dlažba v celém domě .Vytápění plynovým kotlem, též možnost kotlem na tuhá paliva. Dům je napojen na obecní vodovod, dešťová voda je svedena do kanalizace, odpady do jímky s přepadem. Ohřev vody bojlerem, ústřední topení. Dům poskytuje zázemí pro dílenskou, řemeslnou činnost. Obec spadá do mikroregionu Dolní Střela a pro více informací a prohlídku mě neváhejte kontaktovat.
Cena:
4 590 000 CZK / za nemovitost
Poznámka k ceně:
včetně právního servisu
Upozornění:
Prodávající si vyhrazuje právo vybrat kupujícího na základě jím zvolených kritérií.
RX finance

Spočítejte si splátku hypotéky

Na kolik vás vyjde pořízení vlastního bydlení? Zadejte pár informací do naší hypoteční kalkulačky a hned si prohlédněte výsledek.

Kupní cena nemovitosti

4 590 000 Kč

Výše hypotéky

Doba splácení

Vypočítaná měsíční splátka

Úroková sazba 3.6%

260 990 Kč

Hypotéku zařídíme za vás

Ušetřete svůj čas i nervy. Naši makléři zařídí veškeré papírování a dovedou vás až k úspěšnému podpisu smlouvy v bance.

Nechte nám kontakt, náš makléř se v pracovní dny ozve do 24 hodin

* – toto pole je nutné vyplnit
Ing. Jiří Žítek
RE/MAX G8 Reality 3
Francouzská třída 2022/15
Plzeň, 32600
Česká republika
Tel. na makléře: +420 731 329 888
Tel. do kanceláře: +420 377 422 427
E-mail: jiri.zitek@re-max.cz

Potřebujete poradit/máte zájem o prohlídku?

* – toto pole je nutné vyplnit

Podrobné informace

Číslo zakázky:
ID 003-NP04817
Poloha objektu:
Samostatný
Počet podlaží v objektu:
1
Užitná plocha:
150 m²
Plocha parcely:
886 m²
Druh objektu:
Smíšená
Stav objektu:
Velmi dobrý
Typ nemovitosti:
Domy a vily
Charakter okolní zástavby:
Obytná
K nastěhování:
21. 1. 2026
Elektřina:
230 V, 400 V
Garáž:
Ano
Odpad:
Kanalizace
Plocha zahrady:
372 m²
Zastavěná plocha:
212 m²
Plyn:
Plynovod
Typ domu:
Přízemní
Umístění objektu:
Klidná část obce
Voda:
Dálkový rozvod
Energetická náročnost budovy:
G