Translate with 
MENU ZAVŘÍT

Prodej bytu 3+kk v osobním vlastnictví 64 m², Brněnec (ID 268-NP03459)

Brněnec – část obce Moravská Chrastová mapa

2 990 000 Kč ( za nemovitost)
FVelmi
nehospodárná

kk
3x
64 m2
1/2
Exkluzivně

Prodej bytu 3kk 64m2, Moravská Chrastová

V přímém zastoupení majitele nabízíme možnost koupě bytové jednotky v obci Brněnec, přesněji jeho částí Moravská Chrastová.

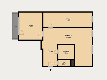
Jedná se o bytovou jednotku s dispozicí 3kk, lodžií, sklepem a celkovou podlahovou plochou 64m2, nacházející se v 1.nadzemním podlaží cihlového domu. Samotný dům prošel v roce 2024 rozsáhlou revitalizací v podobě zateplení fasády, výměnou sklepních plastových oken, revize elektřiny, nové zvonkové tablo, nerezový komín….V roce 2025 začala postupná revitalizace střechy, která by měla pokračovat i v roce 2026.

Byt nabízí dva pokoje s výměrami 18m2 + 11m2, a prostorný obývací pokoj s kuchyňským koutem o velikosti 22m2 a oddělenou koupelnu s toaletou. Prošel rozsáhlou rekonstrukcí v podobě, nových rozvodů elektřiny, vody a odpadů, úpravou vnitřních příček, podlah. V tuto chvíli k dokončení rekonstrukce zbývá pouze osadit zásuvky, obložky dveří a umístit kuchyňskou linku. Toto vše nabízí novému majiteli možnost finální úpravy dokončit dle svých představ.

Velkým benefitem bytu je možnost využití jak venkovních, tak i vnitřních společných prostor, které po domluvě s ostatními, mohou využívat všichni vlastníci bytových jednotek v domě.
Jedná se především využívání zahrádky před domem, vybavené společenské místnosti v domě, kterou lze využít i pro soukromé účely. Dále společná vyhřívaná sušárna a kočárkárna. Venkovní pergola pro letní posezení u grilu, odpočinková zóna pro děti s pískovištěm. V neposlední řadě, je celý pozemek okolo domu oplocený a zajištěný el. bránou. S parkováním a bezpečím svého automobilu tak nebudete mít problém.

Celkové měsíční náklady bytu jsou cca 6.000,-kč. O vytápění bytu se stará centrální kotel v domě, ohřev vody potom zajišťuje el. boiler (160l). Do bytu není zavedený plyn. PENB byl v tuto chvíli zpracovaný jako třída F, viz energetický štítek.

V obci je kompletní občanská vybavenost (lékař, zubař, lékárna….) včetně základní školy a dvou mateřských škol. Žije zde přibližně 1200 obyvatel. Nabízí výborné spojení vlakem i autobusem do Brna i Svitav.

Majitel si vyhrazuje právo vybrat konečného zájemce, dle jím zvolených kritérií.

Pokud hledáte vlastní klidné bydlení bez nutnosti investic v přátelském prostřední, nebo zajímavou investiční příležitost, je tato nabídka určená právě vám.
Cena:
2 990 000 CZK / za nemovitost
Poznámka k ceně:
včetně odměny RK a kompletního realitního servisu
Upozornění:
Prodávající si vyhrazuje právo vybrat kupujícího na základě jím zvolených kritérií.
RX finance

Spočítejte si splátku hypotéky

Na kolik vás vyjde pořízení vlastního bydlení? Zadejte pár informací do naší hypoteční kalkulačky a hned si prohlédněte výsledek.

Kupní cena nemovitosti

2 990 000 Kč

Výše hypotéky

Doba splácení

Vypočítaná měsíční splátka

Úroková sazba 3.6%

260 990 Kč

Hypotéku zařídíme za vás

Ušetřete svůj čas i nervy. Naši makléři zařídí veškeré papírování a dovedou vás až k úspěšnému podpisu smlouvy v bance.

Nechte nám kontakt, náš makléř se v pracovní dny ozve do 24 hodin

* – toto pole je nutné vyplnit
Lukáš Neumann
RE/MAX Delux
Křenová 538/22
Brno, 60200
Česká republika
Tel. na makléře: +420 725 447 886
Tel. do kanceláře: +420 602 703 897
E-mail: lukas.neumann@re-max.cz

Potřebujete poradit/máte zájem o prohlídku?

* – toto pole je nutné vyplnit

Podrobné informace

Číslo zakázky:
ID 268-NP03459
Dispozice:
3+kk
Číslo podlaží:
1
Počet podlaží v objektu:
2
Podlahová plocha:
64 m²
Druh objektu:
Smíšená
Stav objektu:
Velmi dobrý
Vlastnictví:
Osobní
Typ nemovitosti:
Byty
Charakter okolní zástavby:
Obytná
Elektřina:
230 V
Odpad:
Kanalizace
Užitná plocha:
64 m²
Zastavěná plocha:
257 m²
Plyn:
Plynovod
Umístění objektu:
Klidná část obce
Voda:
Dálkový rozvod
Energetická náročnost budovy:
F