Translate with 
MENU ZAVŘÍT

Pronájem bytu 3+1 v osobním vlastnictví 164 m², Rychvald (ID 130-NP03532)

ulice Vléčná, Rychvald mapa

Cena na vyžádání v kanceláři
GMimořádně
nehospodárná

1x
3x
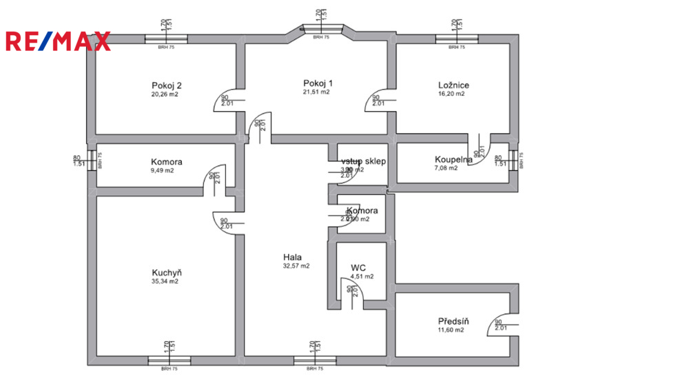
164 m2
1/2

Pronájem bytu 86m2 v rodinném domě se zahradou a garáží, Rychvald

Nabízíme k pronájmu byt nacházející se v přízemí rodinného domu na klidné ulici Vléčná v Rychvaldu. Lokalita je ideální pro zájemce hledající klidné bydlení s dobrou dostupností do okolních měst (Orlová, Bohumín, Ostrava).
Byt je situován v rodinném domě se samostatným vstupem a nabízí příjemné a funkční bydlení vhodné pro jednotlivce, pár či menší rodinu. Součástí nájmu bytu je i užívání sklepa o výměře 43m2, se samostatným přístupem přímo z jednotky, k bytu dále náleží část společné garáže (pro 1vozidlo) a dále jedno samostatné kryté parkovací stání na zahradě.
K dispozici pro nájemníky je i zahrada v okolí domu.
Byt prošel částečnou rekonstrukcí: plastová okna, interiérové dveře a obložkové zárubně, ker.obklady, dlažba a sanita v koupelně, elektroinstalace, podlah.krytiny, a dále omítky a výmalba. Jednotka je částečně vybavena původním nábytkem, po dohodě lze ponechat nebo odstranit.
Vytápění je řešeno ústředním vytápěním samostatným plynovým kotlem, vč. ohřevu TUV, v kuchyni je dále kombinovaný sporák a MV trouba. Jednotka má vlastní elektroměr a plynoměr.
Dům se nachází v klidné rezidenční zástavbě s veškerou občanskou vybaveností v dosahu – MHD, obchody, škola, školka i služby. Velkou výhodou je klidné okolí a dostatek soukromí.
Hlavní informace:
• byt v rodinném domě
• klidná lokalita
• možnost parkování a využívání zahrady
• dobrá dopravní dostupnost
Nájemné: 18.500,- Kč / měsíc
Záloha na spotřebu vody: 500,- Kč/osoba
Kauce: 37.000,- Kč
Provize RK: 18.500,- Kč
Energie (elektřina a plyn) přepisem na nájemce.
V případě zájmu o více informací nebo domluvení prohlídky nás neváhejte kontaktovat. Pronajímající si vyhrazuje právo vybrat nájemce na základě jím zvolených kritérií.
Cena:
Cena na vyžádání v kanceláři
Poznámka k ceně:
vratná kauce 2x měs.nájemné, provize RK 1x měs.nájemné, energie přepisem na nájemce
Lukáš Dulava
REMAX Elite Reality 2
Dělnická 752/78
Havířov - Prostřední Suchá, 73564
Česká republika
Tel. na makléře: +420 731 633 328
Tel. do kanceláře: +420 733 373 964
E-mail: lukas.dulava@re-max.cz

Potřebujete poradit/máte zájem o prohlídku?

* – toto pole je nutné vyplnit

Podrobné informace

Číslo zakázky:
ID 130-NP03532
Dispozice:
3+1
Číslo podlaží:
1
Počet podlaží v objektu:
2
Podlahová plocha:
164 m²
Druh objektu:
Smíšená
Stav objektu:
Velmi dobrý
Vlastnictví:
Osobní
Typ nemovitosti:
Byty
Charakter okolní zástavby:
Obytná
K nastěhování:
2. 5. 2026
Doprava:
Silnice, MHD, Autobus
Elektřina:
230 V
Garáž:
Ano
Odpad:
Septik
Ostatní rozvody:
Kabelová televize, Kabelové rozvody
Užitná plocha:
86 m²
Plocha zahrady:
466 m²
Zastavěná plocha:
176 m²
Plyn:
Plynovod
Počet parkovacích míst:
1
Počet podlaží pod zemí:
1
Telekomunikace:
Telefon, Internet
Umístění objektu:
Klidná část obce
Voda:
Dálkový rozvod
Vybaveno:
Ano
Energetická náročnost budovy:
G
Měrná vypočtená roční spotřeba energie v kWh/m²/rok:
432