Translate with 
MENU ZAVŘÍT

Prodej chaty / chalupy 166 m², Soběšice (ID 316-NP00124)

Soběšice – část obce Damíč mapa

4 090 000 Kč ( za nemovitost)
GMimořádně
nehospodárná

5+
166 m2
522 m2
2
Exkluzivně

Prostorná chalupa se dvěma obytnými jednotkami v klidné obci Damíč – Soběšice (okres Klatovy) 2️⃣

Nabízíme k prodeji chalupu v malebné obci Damíč, část obce Soběšice (okres Klatovy), která je ideální pro rekreační využití na Šumavě. Nemovitost nabízí dostatek prostoru pro rodinu i přátele a zároveň skvělý potenciál pro úpravy dle vlastních představ.

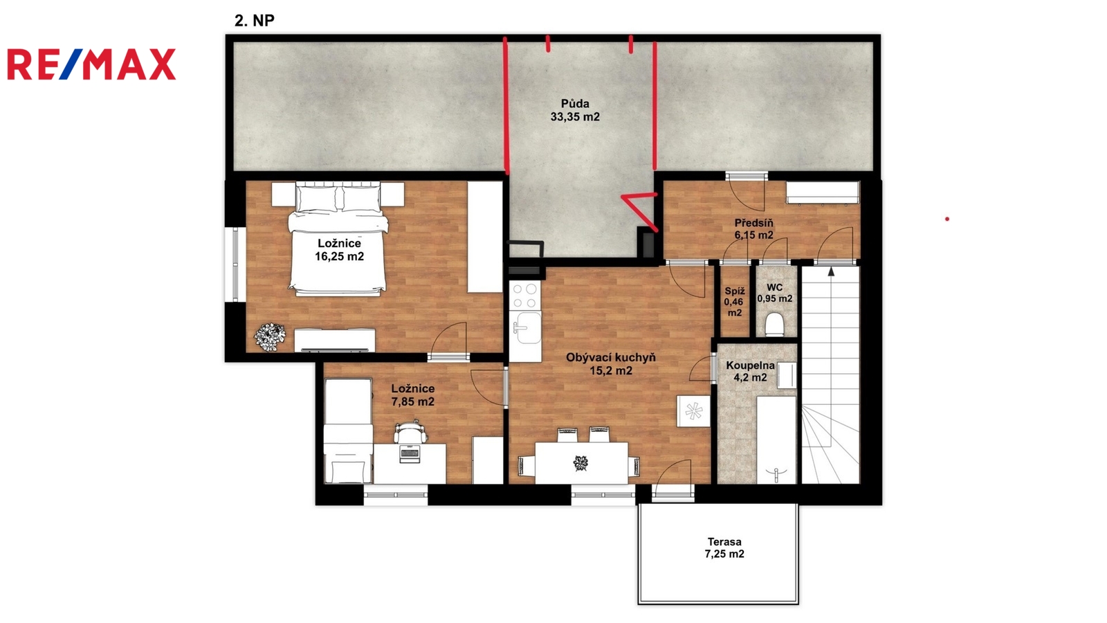
Chalupa disponuje dvěma samostatnými obytnými částmi o dispozici 3+1, každá s vlastní koupelnou a WC. Celková užitná plocha činí 166 m²:
– 1. NP: 82,2 m²
– 2. NP: 84,06 m²

Vstup do domu je společný. Velkou výhodou je možnost rozšíření obytné plochy – přestavbou původního seníku a dřevníku lze vytvořit další obytný prostor pro hosty nebo rekreační apartmán.

Technické informace:

chalupa je obyvatelná po částečné rekonstrukci

vytápění kotlem na tuhá paliva nebo elektrokotlem

napojení na obecní vodovod a kanalizaci

k dispozici také vlastní studna s užitkovou vodou

Součástí nemovitosti je garáž, kotelna, technická místnost a dřevník (zastavěná plocha 139 m²) a zahrada o výměře 256 m², která poskytuje příjemné zázemí pro odpočinek.

Dalším benefitem je možnost koupě pozemku o celkové výměře 1 414 m², který se nachází naproti domu přes místní komunikaci. Pozemek se skládá ze dvou parcel, z nichž jedna je vedena jako stavební, což nabízí zajímavý potenciál například pro výstavbu dalšího domu, rekreačního objektu nebo jako investici do budoucna.

Pokud hledáte chalupu na klidném místě v krásné přírodě s velkým potenciálem, neváhejte mě kontaktovat pro více informací nebo domluvení prohlídky. Prodávající si vyhrazuje právo vybrat kupujícího na základě jím zvolených kritérií.
Cena:
4 090 000 CZK / za nemovitost
Poznámka k ceně:
Uvedená cena je včetně 21% DPH, právního servisu a služeb RK.
Upozornění:
Prodávající si vyhrazuje právo vybrat kupujícího na základě jím zvolených kritérií.
RX finance

Spočítejte si splátku hypotéky

Na kolik vás vyjde pořízení vlastního bydlení? Zadejte pár informací do naší hypoteční kalkulačky a hned si prohlédněte výsledek.

Kupní cena nemovitosti

4 090 000 Kč

Výše hypotéky

Doba splácení

Vypočítaná měsíční splátka

Úroková sazba 3.6%

260 990 Kč

Hypotéku zařídíme za vás

Ušetřete svůj čas i nervy. Naši makléři zařídí veškeré papírování a dovedou vás až k úspěšnému podpisu smlouvy v bance.

Nechte nám kontakt, náš makléř se v pracovní dny ozve do 24 hodin

* – toto pole je nutné vyplnit
Hana Janáčková
RE/MAX Only
Ctiradova 1745/12
Praha 4, 14000
Česká republika
Tel. na makléře: +420 724 785 858
Tel. do kanceláře: +420 602 321 261
E-mail: hana.janackova@re-max.cz

Potřebujete poradit/máte zájem o prohlídku?

* – toto pole je nutné vyplnit

Podrobné informace

Číslo zakázky:
ID 316-NP00124
Poloha objektu:
Samostatný
Počet podlaží v objektu:
2
Užitná plocha:
166 m²
Plocha parcely:
522 m²
Druh objektu:
Cihlová
Stav objektu:
Dobrý
Typ nemovitosti:
Chaty a rekreační objekty
Charakter okolní zástavby:
Obytná
Doprava:
Silnice, Autobus
Elektřina:
230 V
Garáž:
Ano
Odpad:
Kanalizace
Celková plocha:
166 m²
Plocha zahrady:
256 m²
Zastavěná plocha:
127 m²
Počet parkovacích míst:
4
Typ domu:
Patrový
Umístění objektu:
Okraj obce
Voda:
Zdroj pro celý objekt, Dálkový rozvod
Vybaveno:
Ano
Energetická náročnost budovy:
G