Translate with 
MENU ZAVŘÍT

Prodej domu 304 m², Hradec nad Moravicí (ID 344-NP00624)

ulice Slezská, Hradec nad Moravicí mapa

7 750 000 Kč ( za nemovitost)
GMimořádně
nehospodárná

5+
304 m2
532 m2
2
Exkluzivně

Dvougenerační rodinný dům 304 m², Hradec nad Moravicí

Nabízíme k prodeji velmi prostorný dvougenerační rodinný dům nacházející se v klidné lokalitě na ulici Slezská, v části obce Hradec nad Moravicí, okres Opava. Cihlový patrový dům o zastavěné ploše 112 m² a užitné ploše 304 m² .

Dům je ve velmi dobrém stavu se dvěma byty na jednotlivých patrech. Byty jsou velikosti 2+1 a 3+1. Jednotlivé pokoje jsou velmi vzdušné a vytváří dojem velmi prostorného bytu. Dispozice domu zahrnuje ve dvou podlažích jak samostatné byty, tak společné prostory, což zajišťuje dostatek soukromí i prostor pro vzájemné setkávání.

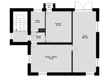
K nemovitosti patří také prostorný suterén s plochou 80 m², který nabízí další možnosti využití, jako například úložný prostor nebo dílnu. Na pozemku nechybí garáž a další parkovací místo pro automobil. Odpad je řešen kanalizací a jímkou, k domu je přiveden vodovod a retenční nádrž na dešťovou vodu. Na pozemku najdeme i vlastní studnu.

Topení zajišťuje plynový kondenzační kotel a k dispozici je také druhý kotel na tuhá paliva, bojler pro ohřev vody a průtokový ohřívač. Energetické zajištění je navíc podpořeno přípojkou na elektrický proud 230 V. Internetové připojení je možné přes ADSL.

Dům se nachází v blízkosti přírody, nedaleko řeky a lesa, což ocení zejména milovníci přírody a aktivního odpočinku. V rámci dopravy je velmi dobře dostupný jak vlakem, tak autobusem.

Prostorná zahrada zajišťuje klidné a relaxační podmínky pro rodiny s dětmi. Vkusně upravená se zahradním domkem a skleníkem, což poskytuje další možnosti relaxace, pěstování zeleniny a ovoce , případně grilování s přáteli.
V obci je velmi bohatá infrastruktura (namátkově školy, zdravotnické zázemí včetně zubaře, banky, obchodní centra, knihovna, cukrárny, sportoviště, koupaliště atd...).
Dominantou obce je nádherný zámek v severovýchodním výběžku.

Energetická náročnost budovy je momentálně uváděna jako G, neboť čekáme na vyhotovení oficiálního průkazu energetické náročnosti.

V případě zájmu o prohlídku nás neváhejte kontaktovat.
Cena:
7 750 000 CZK / za nemovitost
Poznámka k ceně:
včetně právního servisu a provize RK
Upozornění:
Prodávající si vyhrazuje právo vybrat kupujícího na základě jím zvolených kritérií.
RX finance

Spočítejte si splátku hypotéky

Na kolik vás vyjde pořízení vlastního bydlení? Zadejte pár informací do naší hypoteční kalkulačky a hned si prohlédněte výsledek.

Kupní cena nemovitosti

7 750 000 Kč

Výše hypotéky

Doba splácení

Vypočítaná měsíční splátka

Úroková sazba 3.6%

260 990 Kč

Hypotéku zařídíme za vás

Ušetřete svůj čas i nervy. Naši makléři zařídí veškeré papírování a dovedou vás až k úspěšnému podpisu smlouvy v bance.

Nechte nám kontakt, náš makléř se v pracovní dny ozve do 24 hodin

* – toto pole je nutné vyplnit
David Patera
RE/MAX Easy
28. října 1610/95
Ostrava, 70200
Česká republika
Tel. na makléře: +420 725 878 423
Tel. do kanceláře: +420 722 484 787
E-mail: david.patera@re-max.cz

Potřebujete poradit/máte zájem o prohlídku?

* – toto pole je nutné vyplnit

Podrobné informace

Číslo zakázky:
ID 344-NP00624
Poloha objektu:
Samostatný
Počet podlaží v objektu:
2
Užitná plocha:
304 m²
Plocha parcely:
532 m²
Druh objektu:
Smíšená
Stav objektu:
Velmi dobrý
Typ nemovitosti:
Domy a vily
Doprava:
Vlak, Silnice, MHD, Autobus
Elektřina:
230 V
Garáž:
Ano
Odpad:
Septik
Zastavěná plocha:
112 m²
Plyn:
Plynovod
Počet podlaží pod zemí:
1
Typ domu:
Patrový
Umístění objektu:
Klidná část obce
Voda:
Dálkový rozvod
Energetická náročnost budovy:
G