Translate with 
MENU ZAVŘÍT

Prodej domu 246 m², Praha 9 - Kyje (ID 314-NP00297)

ulice Osická, Praha 9 – Kyje mapa

18 800 000 Kč ( za nemovitost)

5+
246 m2
737 m2
3
Exkluzivně

Prodej vícegeneračního domu

Třípodlažní dům se třemi byty a zahradou v klidných Kyjích – vícegenerační bydlení nebo investiční příležitost v Praze

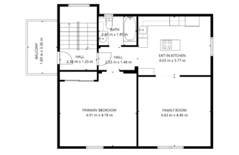
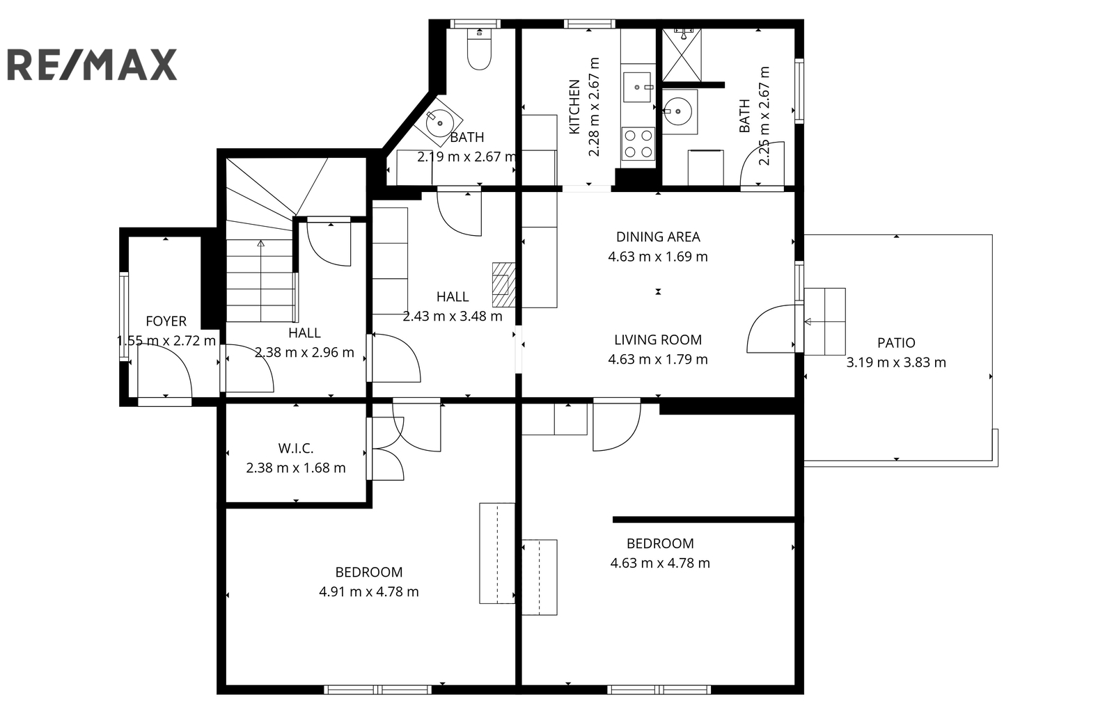
V exkluzivním zastoupení majitele nabízíme samostatně stojící třípodlažní cihlový dům v klidné rezidenční zástavbě Prahy 9 – Kyje, v ulici Osická. Dům stojí na pozemku o výměře 737 m², má užitnou plochu 246 m² a je doplněn sklepními prostory 33 m². Na pozemku se nachází garáž a dvě parkovací stání, zahrada poskytuje příjemné soukromí a odstup od okolní zástavby.

Nemovitost je rozdělena na tři samostatné bytové jednotky o dispozicích 2+kk, 2+kk a 3+kk. Nabízí tak přirozené vícegenerační bydlení, možnou kombinaci bydlení a podnikání nebo investiční dům s možností stabilního nájemního výnosu i budoucího zhodnocení. Dispozice zároveň umožňuje dům využívat jako jeden větší celek. Stav domu je dobrý a umožňuje okamžité užívání i postupnou modernizaci podle vlastních představ. Vytápění zajišťuje plynový kondenzační kotel s radiátory, ohřev vody elektrický bojler, dům je napojen na vodovod, kanalizaci a plyn.

Kyje patří mezi oblíbené pražské čtvrti díky kombinaci rodinného charakteru, zeleně a velmi dobré dostupnosti do centra. Autobusová zastávka je v bezprostřední blízkosti domu, železniční zastávka Praha-Kyje je přibližně 800 metrů a metro Rajská zahrada necelé 2 km. Spojení do centra Prahy trvá přibližně 20 minut. V okolí je kompletní občanská vybavenost včetně škol, školek, obchodů a služeb. Nedaleko se nachází Kyjský rybník a přírodní park Čihadla s rozhlednou Doubravka, které dávají lokalitě příjemný rekreační charakter.

Nemovitost představuje zajímavou příležitost pro rodinné bydlení s dostatkem prostoru a soukromí i pro investora hledajícího menší bytový dům v Praze s již existujícím rozdělením na tři jednotky a parkováním na vlastním pozemku.

Pro bližší informace nebo sjednání prohlídky nás prosím kontaktujte.
Cena:
18 800 000 CZK / za nemovitost
Poznámka k ceně:
Včetně provize a právního servisu.
Upozornění:
Prodávající si vyhrazuje právo vybrat kupujícího na základě jím zvolených kritérií.
RX finance

Spočítejte si splátku hypotéky

Na kolik vás vyjde pořízení vlastního bydlení? Zadejte pár informací do naší hypoteční kalkulačky a hned si prohlédněte výsledek.

Kupní cena nemovitosti

18 800 000 Kč

Výše hypotéky

Doba splácení

Vypočítaná měsíční splátka

Úroková sazba 3.6%

260 990 Kč

Hypotéku zařídíme za vás

Ušetřete svůj čas i nervy. Naši makléři zařídí veškeré papírování a dovedou vás až k úspěšnému podpisu smlouvy v bance.

Nechte nám kontakt, náš makléř se v pracovní dny ozve do 24 hodin

* – toto pole je nutné vyplnit
Ing. Veronika Hrubá
RE/MAX Stability
Sofijské náměstí 3404/3
Praha 4 , 14300
Česká republika
Tel. na makléře: +420 732 746 069
Tel. do kanceláře: +420 735 713 990
E-mail: veronika.hruba@re-max.cz

Potřebujete poradit/máte zájem o prohlídku?

* – toto pole je nutné vyplnit

Podrobné informace

Číslo zakázky:
ID 314-NP00297
Poloha objektu:
V bloku
Počet podlaží v objektu:
3
Užitná plocha:
246 m²
Plocha parcely:
737 m²
Druh objektu:
Cihlová
Stav objektu:
Dobrý
Typ nemovitosti:
Domy a vily
Charakter okolní zástavby:
Obytná
K nastěhování:
25. 2. 2026
Doprava:
Vlak, MHD, Autobus
Garáž:
Ano
Odpad:
Kanalizace
Plocha zahrady:
460 m²
Zastavěná plocha:
277 m²
Plyn:
Plynovod
Počet parkovacích míst:
2
Počet podlaží pod zemí:
1
Typ domu:
Patrový
Umístění objektu:
Okraj obce
Voda:
Dálkový rozvod