Translate with 
MENU ZAVŘÍT

Prodej domu 245 m², Děpoltovice (ID 294-NP01736)

Děpoltovice – část obce Nivy mapa

12 900 000 Kč ( za nemovitost)
AMimořádně
úsporná

5+
245 m2
629 m2
2
Exkluzivně

Patrový rodinný dům se zahradou a bazénem v klidné lokalitě Nivy-Děpoltovice

Nabízíme k prodeji velmi pěkný a pečlivě udržovaný patrový rodinný dům, umístěný v klidné části obce na konci slepé ulice, obklopený přírodou. Lokalita je ideální pro ty, kteří hledají soukromí, klid a blízkost lesa, luk a venkovského prostředí. V docházkové vzdálenosti se nachází oblíbený Děpoltovický rybník, vhodný ke koupání i rekreaci. Okolí nabízí široké možnosti volnočasových aktivit – turistiku, cyklistiku i snadnou dostupnost lyžařských středisek v Krušných horách, jako jsou Plešivec či Pernink.
Dům je vhodný jak pro trvalé rodinné bydlení, tak i jako komfortní rekreační objekt. Nabízí vysoký standard vybavení, dostatek prostoru a maximální míru soukromí.

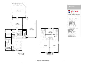
Interiér
Interiér domu je laděn do přírodního stylu, kde hlavní roli hraje dřevo – na podlahách, stropech i vestavěném nábytku. V prvním patře se nachází pracovna, moderní koupelna s WC, technické zázemí, garáž a otevřený obytný prostor propojující kuchyň, jídelnu a obývací část. Součástí patra je také dětská herna. Kuchyň je řešena velmi prakticky a originálně – pod posuvným kuchyňským ostrůvkem se nachází sklep o velikosti cca 6 m² s aktivním odvětráváním. Kuchyňská linka je vyrobena na míru a nabízí bohaté úložné prostory. Celý obytný prostor dotvářejí rustikální prvky, krbová kamna a výrazné akvárium umístěné pod televizí, které dodává interiéru jedinečný charakter.
Ve druhém patře jsou umístěny ložnice a další koupelna s WC. Masivní schodiště a precizně zpracované detaily vytvářejí útulnou, ale zároveň reprezentativní atmosféru. Nad garáží se nachází prostorná půda o velikosti cca 40 m² a další půdní prostor nad domem o rozloze přibližně 80 m², do kterého je již přivedeno topení – ideální možnost pro vybudování dalších obytných místností. Dům je vybaven moderními technologiemi – kamerovým systémem kolem celého objektu napojeným na bezpečnostní službu Jablotron, videotelefonem s možností vzdáleného přístupu a elektronickými venkovními roletami, které zajišťují stínění, vyšší bezpečnost i lepší tepelnou izolaci. Tyto prvky zároveň přispívají ke snížení energetické náročnosti domu. Vytápění domu je řešeno podlahovým topením napojeným na tepelné čerpadlo. Na střeše jsou instalovány solární panely o výkonu 34 kW. Odpad je řešen vlastní čističkou odpadních vod. Zásobování vodou je zajištěno třemi zdroji: vrtanou studnou na pozemku (využívanou k zalévání), studnou před domem pro splachování WC a podzemní nádrží o objemu 12 m³ na pitnou vodu.

Exteriér
Součástí domu je udržovaná, rovinatá zahrada s dostatkem soukromí. Dominantou venkovního prostoru je vyhřívaný bazén o rozměrech 5 × 3 m s terasou a posezením, ideální pro letní relaxaci a rodinná setkání. Pozemek nabízí i další možnosti využití dle potřeb nového majitele. Prodávající si vyhrazuje právo vybrat kupujícího na základě jím zvolených kritérií.
Cena:
12 900 000 CZK / za nemovitost
Poznámka k ceně:
Upozornění:
Prodávající si vyhrazuje právo vybrat kupujícího na základě jím zvolených kritérií.
RX finance

Spočítejte si splátku hypotéky

Na kolik vás vyjde pořízení vlastního bydlení? Zadejte pár informací do naší hypoteční kalkulačky a hned si prohlédněte výsledek.

Kupní cena nemovitosti

12 900 000 Kč

Výše hypotéky

Doba splácení

Vypočítaná měsíční splátka

Úroková sazba 3.6%

260 990 Kč

Hypotéku zařídíme za vás

Ušetřete svůj čas i nervy. Naši makléři zařídí veškeré papírování a dovedou vás až k úspěšnému podpisu smlouvy v bance.

Nechte nám kontakt, náš makléř se v pracovní dny ozve do 24 hodin

* – toto pole je nutné vyplnit
Alexandr Mizjuk
RE/MAX Glorion
Krymská 1056/5
Karlovy Vary, 36001
Česká republika
Tel. na makléře: +420 776 395 579
Tel. do kanceláře: +420 776 395 579
E-mail: alexandr.mizjuk@re-max.cz

Potřebujete poradit/máte zájem o prohlídku?

* – toto pole je nutné vyplnit

Podrobné informace

Číslo zakázky:
ID 294-NP01736
Poloha objektu:
Samostatný
Počet podlaží v objektu:
2
Užitná plocha:
245 m²
Plocha parcely:
629 m²
Druh objektu:
Cihlová
Stav objektu:
Velmi dobrý
Typ nemovitosti:
Domy a vily
Doprava:
Silnice, MHD, Autobus
Elektřina:
230 V, 400 V
Odpad:
Čistička odpadních vod pro celý objekt
Plocha zahrady:
593 m²
Zastavěná plocha:
205 m²
Telekomunikace:
Internet
Typ domu:
Patrový
Voda:
Dálkový rozvod
Energetická náročnost budovy:
A