Translate with 
MENU ZAVŘÍT

Prodej bytu 2+1 v osobním vlastnictví 70 m², Plzeň (ID 003-NP04825)

ulice Ořechová, Plzeň – městská část Plzeň 2-Slovany mapa

5 190 000 Kč ( za nemovitost)
GMimořádně
nehospodárná

1x
2x
70 m2
3/3
Exkluzivně

Prodej útulného bytu 2+1 ve vyhledávané lokalitě v Plzni.

Hledáte atypický a útulný byt na skvělé adrese?
Pak by tato nabídka mohla být právě pro vás...

Nabízíme k prodeji byt 2 + 1 ( 3kk ) v ulici Ořechová, část obce Východní Předměstí, Plzeň. Tato nemovitost se nachází ve druhém patře cihlového domu bez výtahu, který je ve velmi dobrém stavu. Jedná se o přístavbu domu z roku 2005, kdy bylo vydáno kolaudační rozhodnutí.

Mezonetový byt v osobním vlastnictví je prostorný a nabízí komfortní bydlení v atraktivní lokalitě. Celková plocha bytu, což je cca 70 m2, je vhodná pro pohodlný životní styl.

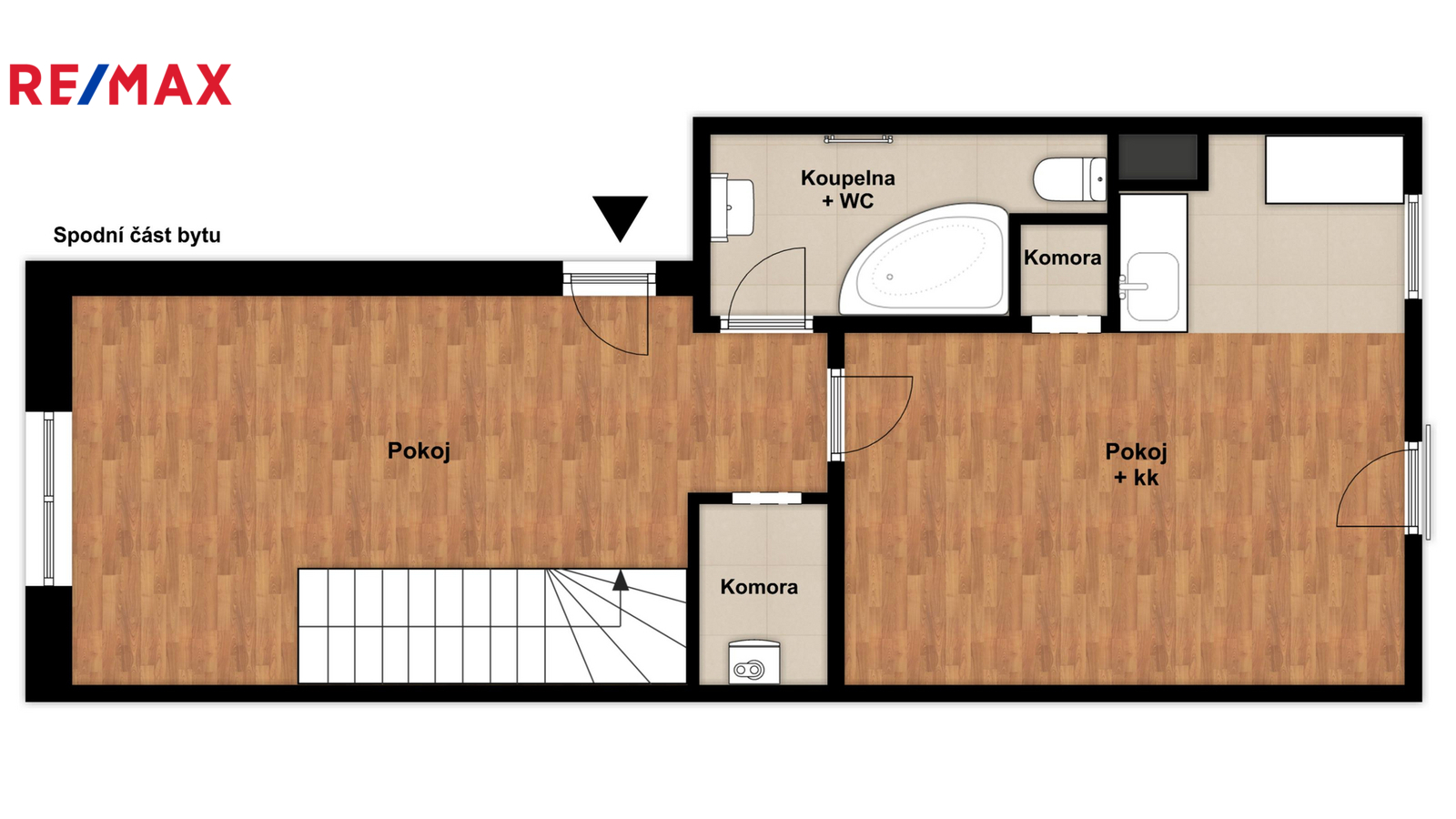
Byt sestává z prostorné kuchyně, obývacího pokoje, koupelny s WC, spíže, komory a ložnice, která je umístěna v patře viz přiložené orientační plánky.
K bytu přináleží sklep a možnost využívat společné prostory jako dílnu, kolárnu a část zahrady.

Vytápění bytu i ohřev vody zajišťuje plynový kotel, umístěný v komoře.
Fond oprav činí 699 Kč měsíčně.
Dům je celkově výborně udržovaný
V blízkosti domu se nachází kompletní síť obchodů a služeb, mladá rodina jistě ocení MŠ, ZŠ i několik dětských hřišť v okolí. Nedaleko se nachází i plavecký bazén a park Homolka.
Zastávka MHD je 200 m od domu.
Pokud máte zájem tento byt navštívit nebo by vás zajímaly další informace, neváhejte se obrátit na níže uvedené kontakty.
Budu se těšit na prohlídce bytu :-)
Cena:
5 190 000 CZK / za nemovitost
Poznámka k ceně:
Cena je včetně provize, právního servisu i poplatku na KN.
Upozornění:
Prodávající si vyhrazuje právo vybrat kupujícího na základě jím zvolených kritérií.
RX finance

Spočítejte si splátku hypotéky

Na kolik vás vyjde pořízení vlastního bydlení? Zadejte pár informací do naší hypoteční kalkulačky a hned si prohlédněte výsledek.

Kupní cena nemovitosti

5 190 000 Kč

Výše hypotéky

Doba splácení

Vypočítaná měsíční splátka

Úroková sazba 3.6%

260 990 Kč

Hypotéku zařídíme za vás

Ušetřete svůj čas i nervy. Naši makléři zařídí veškeré papírování a dovedou vás až k úspěšnému podpisu smlouvy v bance.

Nechte nám kontakt, náš makléř se v pracovní dny ozve do 24 hodin

* – toto pole je nutné vyplnit
Marie Čejková
RE/MAX G8 Reality 3
Francouzská třída 2022/15
Plzeň, 32600
Česká republika
Tel. na makléře: +420 603 846 173
Tel. do kanceláře: +420 377 422 427
E-mail: marie.cejkova@re-max.cz

Potřebujete poradit/máte zájem o prohlídku?

* – toto pole je nutné vyplnit

Podrobné informace

Číslo zakázky:
ID 003-NP04825
Dispozice:
2+1
Číslo podlaží:
3
Počet podlaží v objektu:
3
Podlahová plocha:
70 m²
Druh objektu:
Smíšená
Stav objektu:
Velmi dobrý
Vlastnictví:
Osobní
Typ nemovitosti:
Byty
Charakter okolní zástavby:
Obytná
K nastěhování:
1. 2. 2026
Doprava:
Vlak, Dálnice, Silnice, MHD, Autobus
Elektřina:
230 V
Odpad:
Kanalizace
Užitná plocha:
70 m²
Plocha zahrady:
45 m²
Zastavěná plocha:
132 m²
Plyn:
Plynovod
Počet podlaží pod zemí:
1
Umístění objektu:
Klidná část obce
Voda:
Dálkový rozvod
Energetická náročnost budovy:
G