Translate with 
MENU ZAVŘÍT

Pronájem obchodních prostor 38 m², Praha 1 - Nové Město (ID 273-NP04666)

ulice Palackého, Praha 1 – Nové Město mapa

44 900 Kč ( za měsíc)
GMimořádně
nehospodárná

38 m2
Exkluzivně Rezervace

Reprezentantivní obchodní prostor se vstupem do ulice, Praha 1 - Nové Město

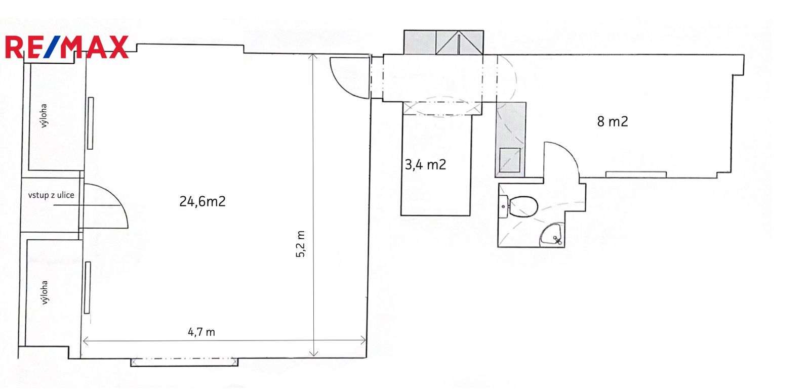
Nabízíme k pronájmu reprezentativní prostory o rozloze 38 m² se dvěma prosklenými výlohami a přímým vstupem do ulice v historické budově v ul. Palackého v centru Prahy.

Prostory o ploše 38 m² mohou být využity jako optika, galerie, zlatnictví, kancelář (např. pobočka cestovní agentury nebo různých finančních/pojišťovacích společností) či jako prodejna se zdravotnickými potřebami (díky umístění polikliniky ve stejné ulici). Prostory sestávají ze vstupní místnosti, na kterou navazuje menší prostor/technické nebo skladové zázemí a další místnost v podobě zázemí pro zaměstnance či klienty a toaleta s umyvadlem. Úprava interiéru je možná po dohodě s majiteli domu. Dvě výlohy a přístup z ulice skýtají atraktivní příležitost a velmi široké komerční využití.

Měsíční náklady na vodné/stočné a správu domu činí 1.000,- Kč, elektřina - 6.000,- Kč (bude převedena na nájemce). Kauce v podobě dvou měsíčních nájmů. Prostor je k dispozici po dohodě.

Budova je umístěna na výborné adrese, v centru Nového Města, které disponuje veškerou občanskou vybaveností od restaurací, kaváren až po velké množství obchodů, služeb a turistických zajímavostí. Jen několik kroků od budovy je zastávka tramvaje Vodičkova stejně jako stanice metra Můstek.

Pro více informací kontaktujte makléře nabídky! Pronajímající si vyhrazuje právo vybrat nájemce na základě jím zvolených kritérií.
Cena:
44 900 CZK / Rezervováno
Poznámka k ceně:
Uvedená cena zahrnuje veškeré poplatky za služby RE/MAX
Upozornění:
Pronajímající si vyhrazuje právo vybrat nájemce na základě jím zvolených kritérií.
Lucie Tupá
RE/MAX Partner
Řeporyjské náměstí 16
Praha 5 - Řeporyje, 15500
Česká republika
Tel. na makléře: +420 603 888 013
Tel. do kanceláře: +420 800 434 434
E-mail: lucie.tupa@re-max.cz

Potřebujete poradit/máte zájem o prohlídku?

* – toto pole je nutné vyplnit

Podrobné informace

Číslo zakázky:
ID 273-NP04666
Typ nemovitosti:
Komerční prostory
Druh prostor:
Obchodní
Číslo podlaží:
1
Počet podlaží v objektu:
4
Plocha kanceláří:
38 m²
Druh objektu:
Cihlová
Stav objektu:
Velmi dobrý
Bezbariérový byt:
Ano
Charakter okolní zástavby:
Obchodní a obytná
K nastěhování:
2. 2. 2026
Doprava:
MHD
Odpad:
Kanalizace
Celková plocha:
38 m²
Typ domu:
Patrový
Umístění objektu:
Centrum obce
Voda:
Dálkový rozvod
Energetická náročnost budovy:
G