Translate with 
MENU ZAVŘÍT

Pronájem obchodních prostor 104 m², Praha 9 - Letňany (ID 273-NP04691)

ulice Rýmařovská, Praha 9 – Letňany mapa

433 Kč (bez DPH, m²/měsíc)

104 m2
Exkluzivně

Pronájem obchodního prostoru 104 m² – KD Letňanka, ul. Rýmařovská, Praha 9

Chcete mít své podnikání přesně podle vlastních představ?

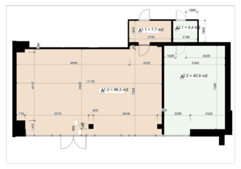
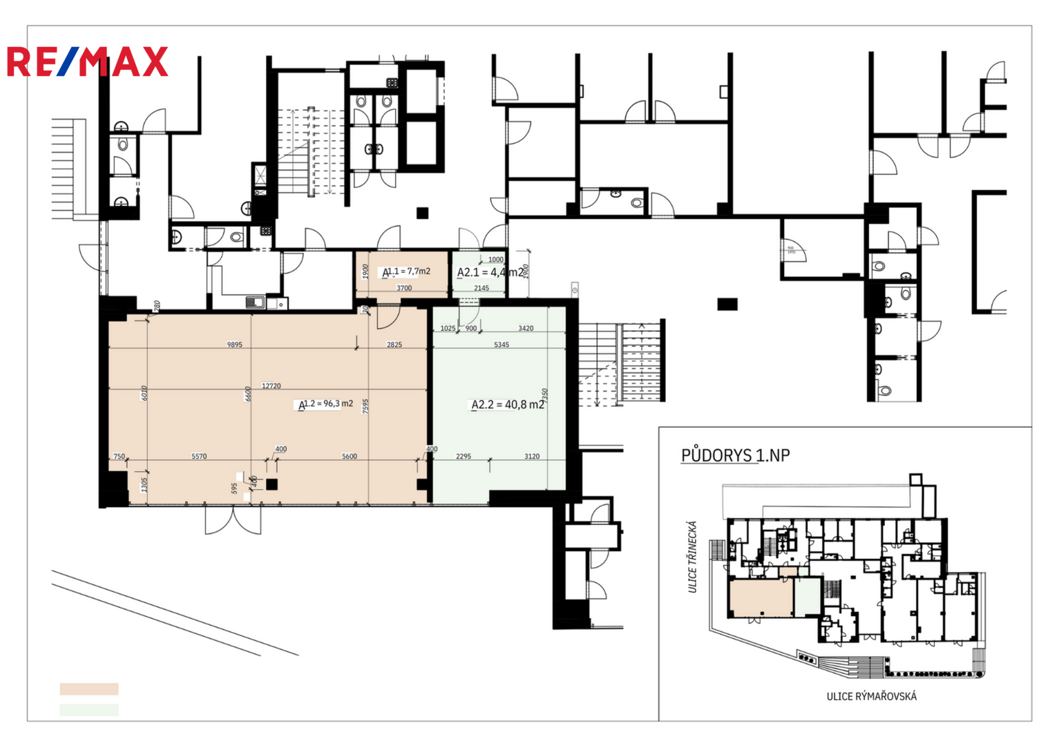
V Kulturním domě Letňanka nabízíme k pronájmu obchodní prostor o výměře 104 m², umístěný v 1. nadzemním podlaží s dobrou viditelností a snadnou dostupností.

Prostor je nabízen ve stavu Shell & Core – jako otevřená plocha, kterou si nový nájemce může dispozičně i technicky přizpůsobit svému podnikání. Vhodné využití je například jako prodejna, showroom, služby, studio nebo kancelářské zázemí.

Lokalita KD Letňanka nabízí výbornou dopravní dostupnost, parkování v okolí a stabilní pohyb lidí.

Nájemné:
• 03/2026 – 06/2026: nájemné 0 Kč (nájem zdarma – podpora rozjezdu podnikání)
• Od 07/2026: Plátce DPH: 433 Kč/m² bez DPH (celkem 45 032 Kč / měsíc bez DPH, tj. 54 489 Kč vč. DPH)
• Neplátce DPH: 476,30 Kč/m² bez DPH (celkem 49 535 Kč / měsíc)

Prostor je ideální volbou pro ty, kteří hledají flexibilní řešení bez kompromisů a chtějí si vytvořit provoz přesně na míru – na adrese, která má své jméno.

V případě zájmu o více informací nebo domluvení prohlídky mě neváhejte kontaktovat.
Cena:
433 CZK / m2/měsíc
Poznámka k ceně:
Cena pro plátce DPH: 433 Kč / m² bez DPH, Neplátce DPH: 476,30 Kč / m² bez DPH
Upozornění:
Pronajímající si vyhrazuje právo vybrat nájemce na základě jím zvolených kritérií.
Veronika Chlubna
RE/MAX Partner
Řeporyjské náměstí 16
Praha 5 - Řeporyje, 15500
Česká republika
Tel. na makléře: +420 608 939 940
Tel. do kanceláře: +420 800 434 434
E-mail: veronika.chlubna@re-max.cz

Potřebujete poradit/máte zájem o prohlídku?

* – toto pole je nutné vyplnit

Podrobné informace

Číslo zakázky:
ID 273-NP04691
Typ nemovitosti:
Komerční prostory
Druh prostor:
Obchodní
Číslo podlaží:
1
Počet podlaží v objektu:
3
Plocha kanceláří:
104 m²
Druh objektu:
Panelová
Stav objektu:
Ve výstavbě (hrubá stavba)
Bezbariérový byt:
Ano
Charakter okolní zástavby:
Obchodní a obytná
K nastěhování:
8. 2. 2026
Doprava:
Silnice, MHD, Autobus
Elektřina:
230 V, 400 V
Odpad:
Kanalizace
Ostatní rozvody:
Satelit, Kabelová televize, Kabelové rozvody
Celková plocha:
104 m²
Plyn:
Plynovod
Počet podlaží pod zemí:
1
Telekomunikace:
Telefon, Internet
Typ domu:
Patrový
Umístění objektu:
Sídliště
Voda:
Dálkový rozvod
Výtah:
Ano