Translate with 
MENU ZAVŘÍT

Pronájem bytu 2+1 v osobním vlastnictví 63 m², Praha 3 - Vinohrady (ID 262-NP00588)

ulice náměstí Jiřího z Lobkovic, Praha 3 – Vinohrady mapa

24 800 Kč ( za měsíc)
DMéně
úsporná

1x
2x
63 m2
5/6
Exkluzivně

Pěkný byt 2+1 k pronájmu nám. Jiřího z Lobkovic

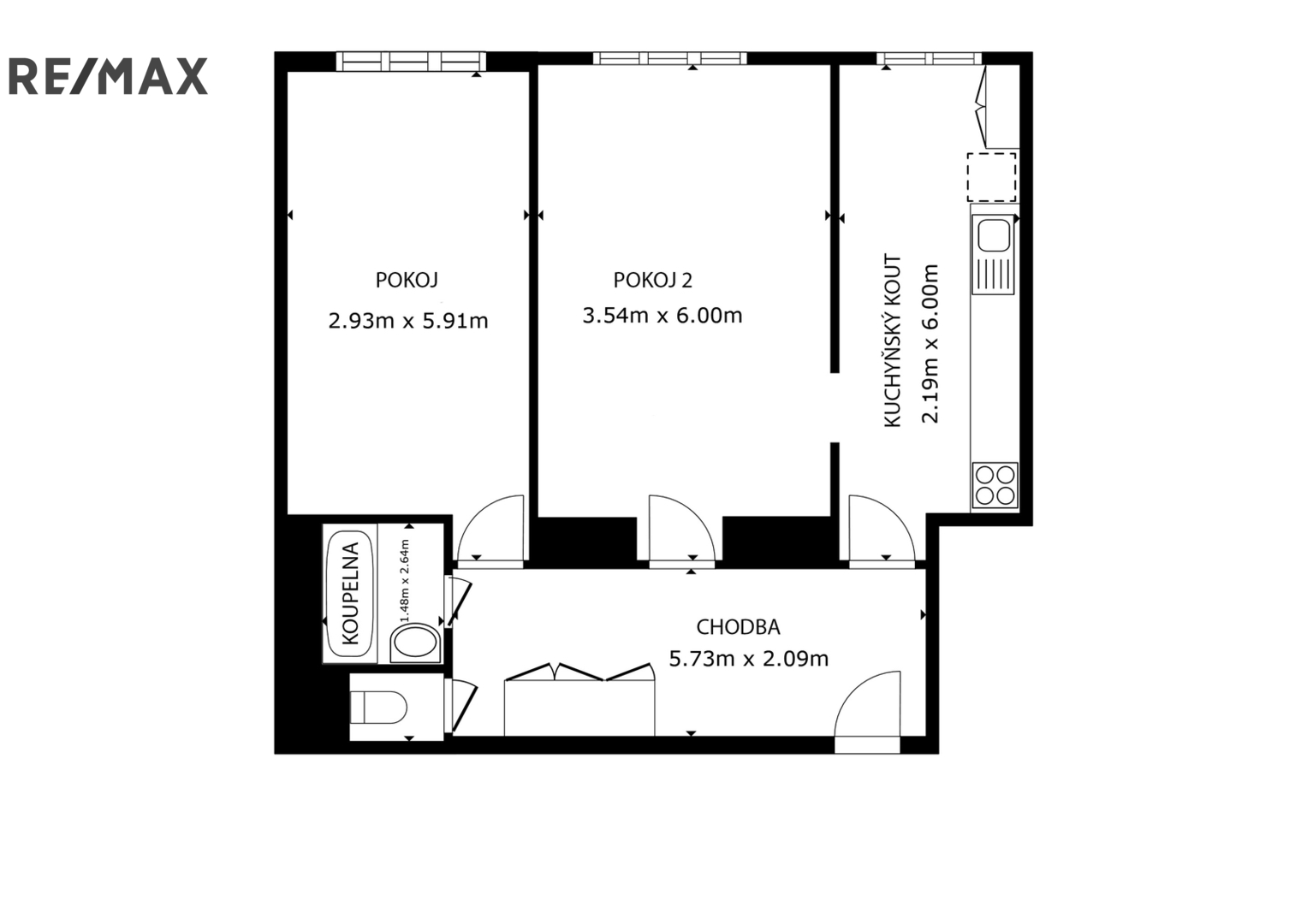
Nabízíme k pronájmu světlý byt 2+1 v oblíbené části Vinohrad. Klidné bydlení s okny na východ do vnitrobloku, tj. na opačnou stranu, než je ulice, zajišťují tiché prostředí a příjemné ranní světlo. Byt se nachází na náměstí Jiřího z Lobkovic 2458/17 v Praze 3, ve 4. patře udržovaného domu s výtahem. Celková plocha bytu je 62,5 m² a poskytuje dostatek prostoru pro pohodlné bydlení.
Po vstupu do bytu je před Vámi prostorná předsíň se šatními skříněmi, ze které se vstupuje do kuchyně a do prvního neprůchozího pokoje. Druhý neprůchozí pokoj má samostatný vstup také z předsíně.

Kuchyň je prakticky vybavena lednicí s mrazákem, sporákem, myčkou a kuchyňskou linkou s přípravou na pračku a úložným prostorem. Koupelna je vybavena menší vanou se sprchovací zástěnou a velkým žebříkem na sušení ručníků.
Toaleta je samostatná. V obytných pokojích jsou renovované parketové podlahy, které bytu dodávají příjemný charakter.
Dispozice bytu je praktická a vhodná pro pár i rodinu s dětmi. Výhodou je blízkost základní i mateřské školy přímo na náměstí.
Součástí bydlení je možnost využívat uzavřenou zahradu a dětské hřiště s pískovištěm a prolézačkami, které se nachází přímo pod okny bytu. V okolí jsou k dispozici také volnočasové kluby a sportoviště včetně tenisové školy při místní základní škole.

Lokalita nabízí výbornou dopravní dostupnost i kompletní občanskou vybavenost. V docházkové vzdálenosti se je obchodní centrum Flora s obchody a službami pro každodenní potřeby.

Měsíční nájemné - 24 800 Kč.
Zálohy na služby pro dvě osoby - 4 500 Kč měsíčně
Elektřina se převádí na nájemce.
Vratná kauce odpovídá dvěma měsíčním nájmům - 2 x 24 800 Kč
Rezervační poplatek ve výši jednoho nájmu (24 800 Kč) se po podpisu nájemní smlouvy
započítává na první měsíc nájmu.
Nájemce neplatí provizi RK

V případě zájmu o prohlídku nás neváhejte kontaktovat, rádi vám byt osobně ukážeme.
Cena:
24 800 CZK / za měsíc
Poznámka k ceně:
Upozornění:
Pronajímající si vyhrazuje právo vybrat nájemce na základě jím zvolených kritérií.
Petr Vančura
RE/MAX Scopus
Olbrachtova 1065/46
Praha 4 - Krč, 14000
Česká republika
Tel. na makléře: +420 602 313 211
Tel. do kanceláře: +420 733 746 846
E-mail: petr.vancura@re-max.cz

Potřebujete poradit/máte zájem o prohlídku?

* – toto pole je nutné vyplnit

Podrobné informace

Číslo zakázky:
ID 262-NP00588
Dispozice:
2+1
Číslo podlaží:
5
Počet podlaží v objektu:
6
Podlahová plocha:
63 m²
Druh objektu:
Cihlová
Stav objektu:
Velmi dobrý
Vlastnictví:
Osobní
Typ nemovitosti:
Byty
Charakter okolní zástavby:
Obytná
K nastěhování:
17. 2. 2026
Doprava:
Silnice, MHD, Autobus
Elektřina:
230 V
Odpad:
Kanalizace
Užitná plocha:
63 m²
Plocha zahrady:
382 m²
Zastavěná plocha:
315 m²
Počet podlaží pod zemí:
1
Telekomunikace:
Internet
Umístění objektu:
Klidná část obce
Voda:
Dálkový rozvod
Vybaveno:
Ano
Výtah:
Ano
Energetická náročnost budovy:
D
Měrná vypočtená roční spotřeba energie v kWh/m²/rok:
172