Translate with 
MENU ZAVŘÍT

Pronájem bytu 3+kk v osobním vlastnictví 70 m², Hýskov (ID 318-NP00135)

ulice Kladenská, Hýskov mapa

20 000 Kč ( za měsíc)
DMéně
úsporná

kk
3x
70 m2
2/3
Exkluzivně

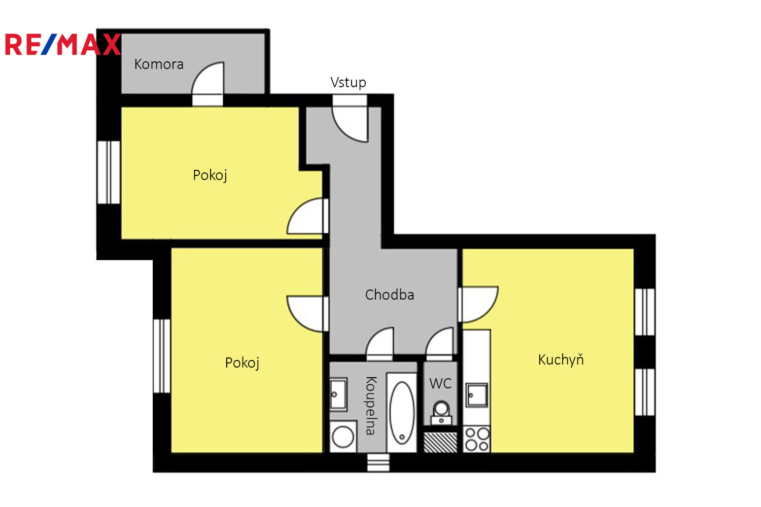
Pronájem bytu v Hýskově, 3+kk, 67 m2, vlastní zahrada 100 m2, sklep 3 m2, parkování, nezařízený

Nabízím k pronájmu byt v osobním vlastnictví - Hýskov u Berouna, Kladenská 710. Výborná dispozice bytu 3+kk s vlastní zahrádkou 100 m2. Obývací pokoj s plně vybavenou kuchyňskou linkou 18 m2, pokoj 16 m2, ložnice 12 m2 s komorou 4 m2, předsíň a chodba 11 m2, koupelna 5 m 2 a WC 1 m2. Plocha bytu celkem 67 m2. K bytu náleží sklep 3 m2 a jedno parkovací místo u domu. Příjemná a klidná lokalita nedaleko Berouna s plnou občanskou vybaveností a dobrou dostupností do Prahy.
Nájem 20 000,- Kč měsíčně + poplatky 5 000,- Kč. Kauce 2 x nájem 40 000,- Kč. Provize RK ve výši 1 x nájem 20 000,- Kč.
K nastěhování od 1.4.2026, byt bude prázdný a vymalovaný. Pro prohlídku mě neváhejte kontaktovat na 739 899 990
Cena:
20 000 CZK / za měsíc
Poznámka k ceně:
Nájem 20 000,- Kč měsíčně + poplatky 5 000,- Kč. Kauce 2 x nájem 40 000,- Kč. Provize RK ve výši 1 x nájem 20 000,- Kč.
Upozornění:
Pronajímající si vyhrazuje právo vybrat nájemce na základě jím zvolených kritérií.
Lukáš Hrubý
RE/MAX All Up
Tyršova 287
Dobřichovice, 25229
Česká republika
Tel. na makléře: +420 739 899 990
Tel. do kanceláře: +420 739 899 990
E-mail: lukas.hruby@re-max.cz

Potřebujete poradit/máte zájem o prohlídku?

* – toto pole je nutné vyplnit

Podrobné informace

Číslo zakázky:
ID 318-NP00135
Dispozice:
3+kk
Číslo podlaží:
2
Počet podlaží v objektu:
3
Podlahová plocha:
70 m²
Druh objektu:
Cihlová
Stav objektu:
Velmi dobrý
Vlastnictví:
Osobní
Typ nemovitosti:
Byty
Charakter okolní zástavby:
Obytná
K nastěhování:
1. 4. 2026
Doprava:
Vlak, Silnice, Autobus
Elektřina:
230 V
Odpad:
Kanalizace
Užitná plocha:
67 m²
Plocha zahrady:
100 m²
Zastavěná plocha:
67 m²
Plyn:
Plynovod
Počet parkovacích míst:
1
Počet podlaží pod zemí:
1
Telekomunikace:
Internet
Umístění objektu:
Klidná část obce
Voda:
Dálkový rozvod
Energetická náročnost budovy:
D