Translate with 
MENU ZAVŘÍT

Prodej domu 140 m², Třebíč (ID 143-NP07281)

ulice Tkalcovská, Třebíč – část obce Nové Dvory mapa

6 500 000 Kč ( za nemovitost)

5+
140 m2
178 m2
1
Exkluzivně

K prodeji rodinný dům v Třebíči, ul. Tkalcovská

Ve výhradním zastoupení nabízíme k prodeji rodinný cihlový dům v řadové zástavbě, situovaný v klidné části Třebíče na ulici Tkalcovská, v docházkové vzdálenosti do centra města.
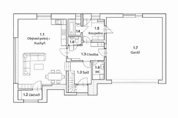
Nemovitost disponuje zastavěnou plochou 178 m² včetně menšího uzavřeného dvora a nabízí praktickou dispozici 5+kk s prostornou garáží, která poskytuje komfortní parkování i dostatek úložného prostoru.
Dům je postaven z cihelného zdiva, stropy jsou trámové, střecha sedlová s pálenou taškou. V rámci úprav byla provedena výměna oken, oprava a nový nátěr vnějších omítek. Rozvody vody a odpadů jsou v plastu, elektroinstalace v mědi.
Interiér nabízí dvě koupelny a kuchyňskou linku včetně spotřebičů. Vytápění je řešeno elektricky, přičemž plynová přípojka se nachází u domu. Alternativně je možné využít lokální vytápění tuhými palivy prostřednictvím krbu.
Velkou výhodou je lokalita s kompletní občanskou vybaveností v bezprostředním okolí – školy, školky, obchody, zdravotnická zařízení i zastávky MHD.
Veškerá projektová dokumentace je k dispozici k nahlédnutí při osobní prohlídce.
V případě zájmu Vám rádi zajistíme kompletní realitní a finanční servis včetně výhodného financování této nemovitosti.
Cena:
6 500 000 CZK / za nemovitost
Poznámka k ceně:
cena včetně provize RK
Upozornění:
Prodávající si vyhrazuje právo vybrat kupujícího na základě jím zvolených kritérií.
RX finance

Spočítejte si splátku hypotéky

Na kolik vás vyjde pořízení vlastního bydlení? Zadejte pár informací do naší hypoteční kalkulačky a hned si prohlédněte výsledek.

Kupní cena nemovitosti

6 500 000 Kč

Výše hypotéky

Doba splácení

Vypočítaná měsíční splátka

Úroková sazba 3.6%

260 990 Kč

Hypotéku zařídíme za vás

Ušetřete svůj čas i nervy. Naši makléři zařídí veškeré papírování a dovedou vás až k úspěšnému podpisu smlouvy v bance.

Nechte nám kontakt, náš makléř se v pracovní dny ozve do 24 hodin

* – toto pole je nutné vyplnit
David Chaloupka
RE/MAX A-City
Žižkova 1683/13
Jihlava, 58601
Česká republika
Tel. na makléře: +420 731 508 275
Tel. do kanceláře: +420 736 631 404
E-mail: david.chaloupka@re-max.cz

Potřebujete poradit/máte zájem o prohlídku?

* – toto pole je nutné vyplnit

Podrobné informace

Číslo zakázky:
ID 143-NP07281
Poloha objektu:
Řadový
Počet podlaží v objektu:
1
Užitná plocha:
140 m²
Plocha parcely:
178 m²
Druh objektu:
Cihlová
Stav objektu:
Dobrý
Typ nemovitosti:
Domy a vily
K nastěhování:
11. 2. 2026
Odpad:
Kanalizace
Zastavěná plocha:
178 m²
Plyn:
Plynovod
Typ domu:
Patrový
Voda:
Dálkový rozvod
Vybaveno:
Ano