Translate with 
MENU ZAVŘÍT

Prodej domu 162 m², Tupadly (ID 273-NP04719)

Tupadly, okres Kutná Hora mapa

9 700 000 Kč ( za nemovitost)
BVelmi
úsporná

5+
162 m2
550 m2
2
Exkluzivně

Rodinný dům 173m² ,pozemek 550m²

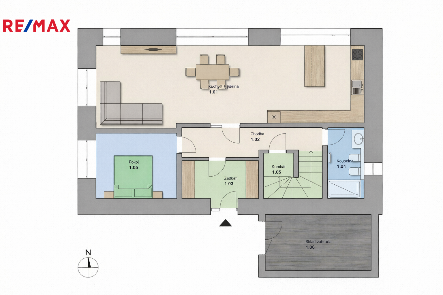
V Tupadlech nabízíme nově zrekonstruovaný patrový dům 6+kk s užitnou plochou 173 m² a pozemkem 550 m². Prostor, světlo a klid – přesně to, co dnes rodina hledá. DOKONČENÍ 3.Q 2026

Nemovitost je aktuálně ve fázi před dokončením, což vám dává jedinečnou možnost vybrat si finální podobu interiéru podle vlastního vkusu. V CENĚ DOMU JE ZAHRNUTÝ ROZPOČET 700 000 Kč NA VYBAVENÍ INTERIÉRU (kuchyň, podlahy, dveře, obklady, sanitu) můžete si zvolit sami, bez navyšování kupní ceny.

Srdcem domu je velkorysý obývací prostor propojený s kuchyní. Třímetrový HS portál vpouští dovnitř spoustu denního světla a zároveň plynule navazuje na terasu a zahradu. Otevřete dveře a interiér se spojí s venkem – ideální pro letní večery, děti i posezení s přáteli.

V patře najdete klidovou zónu se samostatnými neprůchozími pokoji, které nabídnou dostatek soukromí každému členu rodiny.

Dům je napojen na všechny inženýrské sítě včetně optiky. Vytápění a ohřev vody zajišťuje plynový kotel, komfort zvyšuje podlahové topení v celém domě. Energetická třída B znamená úsporný provoz. Připraven je i prostor pro instalaci krbových kamen.

Tupadly leží jen 5 km od Čáslavi a 15 km od Kutné Hory, v dosahu města, ale s atmosférou klidného bydlení.

Pokud hledáte místo, kde budete mít dost prostoru pro rodinu i pro sebe, rád vám dům osobně představím.
Cena:
9 700 000 CZK / za nemovitost
Poznámka k ceně:
Upozornění:
Prodávající si vyhrazuje právo vybrat kupujícího na základě jím zvolených kritérií.
RX finance

Spočítejte si splátku hypotéky

Na kolik vás vyjde pořízení vlastního bydlení? Zadejte pár informací do naší hypoteční kalkulačky a hned si prohlédněte výsledek.

Kupní cena nemovitosti

9 700 000 Kč

Výše hypotéky

Doba splácení

Vypočítaná měsíční splátka

Úroková sazba 3.6%

260 990 Kč

Hypotéku zařídíme za vás

Ušetřete svůj čas i nervy. Naši makléři zařídí veškeré papírování a dovedou vás až k úspěšnému podpisu smlouvy v bance.

Nechte nám kontakt, náš makléř se v pracovní dny ozve do 24 hodin

* – toto pole je nutné vyplnit
Daniel Kovács
RE/MAX Partner
Řeporyjské náměstí 16
Praha 5 - Řeporyje, 15500
Česká republika
Tel. na makléře: +420 774 553 731
Tel. do kanceláře: +420 800 434 434
E-mail: daniel.kovacs@re-max.cz

Potřebujete poradit/máte zájem o prohlídku?

* – toto pole je nutné vyplnit

Podrobné informace

Číslo zakázky:
ID 273-NP04719
Poloha objektu:
Samostatný
Počet podlaží v objektu:
2
Užitná plocha:
162 m²
Plocha parcely:
550 m²
Druh objektu:
Smíšená
Stav objektu:
Ve výstavbě (hrubá stavba)
Typ nemovitosti:
Domy a vily
Charakter okolní zástavby:
Obytná
Doprava:
Autobus
Elektřina:
230 V, 400 V
Odpad:
Kanalizace
Plocha zahrady:
430 m²
Zastavěná plocha:
120 m²
Plyn:
Plynovod
Telekomunikace:
Internet
Typ domu:
Patrový
Umístění objektu:
Centrum obce
Voda:
Dálkový rozvod
Energetická náročnost budovy:
B