Translate with 
MENU ZAVŘÍT

Pronájem obchodních prostor 142 m², Kolín (ID 299-NP00278)

ulice Zlatá, Kolín – část obce Kolín I mapa

18 500 Kč ( za měsíc)
GMimořádně
nehospodárná

142 m2
Exkluzivně

Pronájem atypického domu v samém centru města, Zlatá ulice, Kolín

Nová nabídka. Hledáte prostory v centru města pro vaše podnikání nebo kombinaci práce a bydlení zároveň? Zda ano, čtěte prosím dále.

Nabízíme vám k pronájmu zajímavý dům v centru Kolína ve Zlaté uličce. Tento patrový dům byl koncem loňského roku adaptován a je tedy připraven k okamžitému využívání.

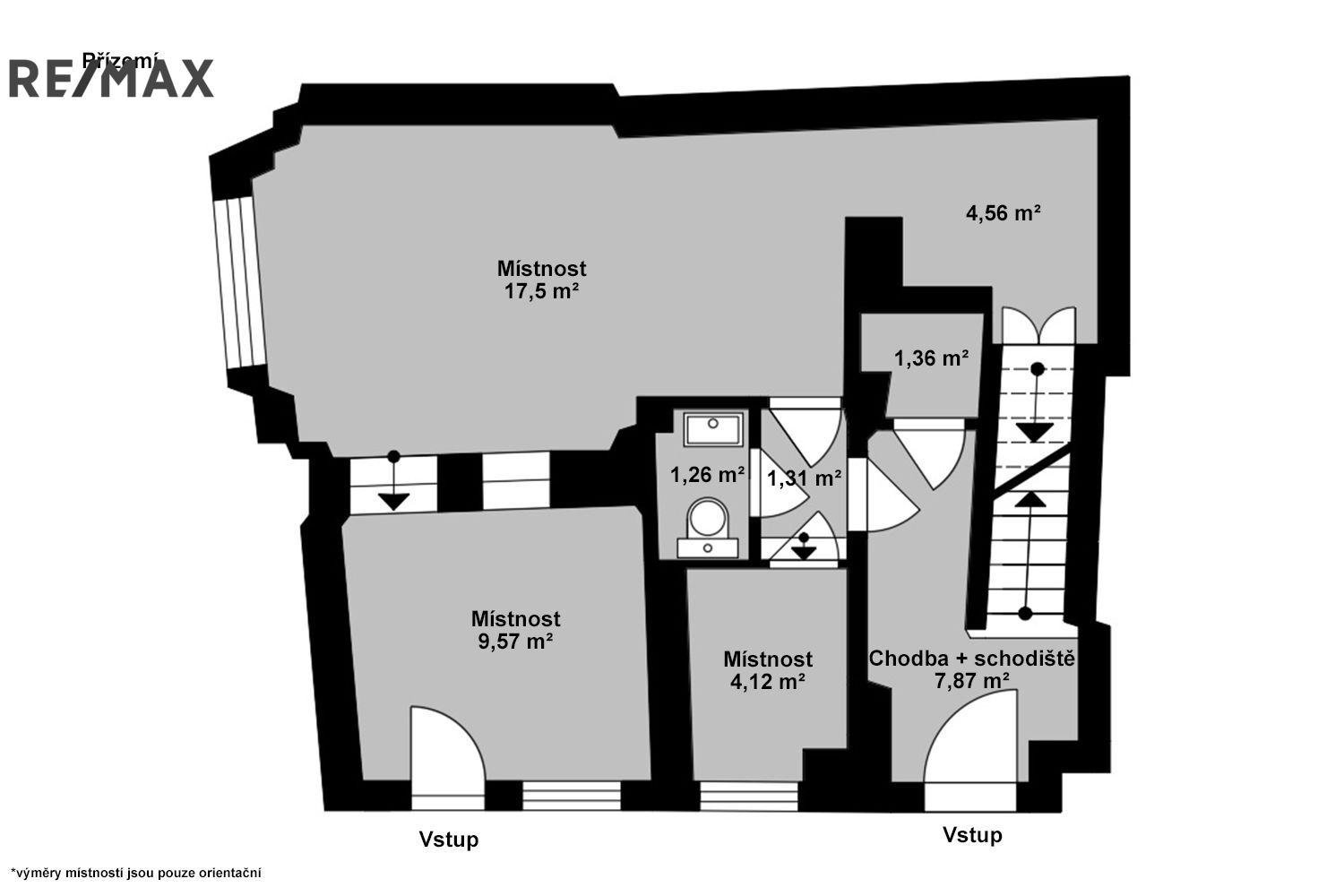
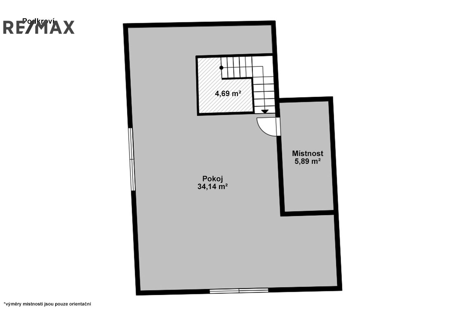
Dům se skládá z přízemí o celkové ploše 47, 5 m2, které dříve sloužilo jako fotoateliér. Nemovitost má dále rozlehlé patro se samostatným vstupem. Plocha patra (2. NP) je 54,5 m2 včetně zázemí (kuchyňka, koupelna se sprchovým koutem a WC, chodba a komora). Z obytného patra dále vystoupáte po schodišti do podkroví (3. NP). Podkroví je opět velká místnost o ploše 34,14 m2 a je zde dále komora (5,89 m2). Nemovitost mimo kuchyňky je bez vybavení. Dům je částečně podsklepen.

Ve fotogalerii naleznete nejen půdorysy s plochami jednotlivých místností, ale i odkaz na virtuální prohlídku celého domu.

K domu nenáleží žádný pozemek ani parkovací místo. K vytápění domu a ohřevu vody slouží plynový kotel, s tím, že si nájemce nastaví zálohy s dodavatelem. Elektrická energie se taktéž převádí na nájemce, pouze vodné stočné se hradí zálohově společně s nájemným majiteli nemovitosti.

Celkové počáteční náklady jsou tedy 56 500 Kč (19 500 Kč nájemné na první měsíc včetně zálohy na vodu plus vratná kauce 37 000 Kč). S předáním domu si nájemce na sebe převede elektrickou energii, plyn a uzavře smlouvu o odvozu odpadů. Zájemce nehradí provizi za zprostředkování pronájmu nemovitosti.

Hledáme nájemce s jasnou představou o využití domu. Výhodou je navazující podnikatelská historie nebo konkrétní záměr dlouhodobého užívání. Prohlídky budou probíhat od středy 25. 2. 2026 na základě předem domluvených termínů.
Cena:
18 500 CZK / za měsíc
Poznámka k ceně:
+ energie, vratná kauce 37 000 Kč
Upozornění:
Pronajímající si vyhrazuje právo vybrat nájemce na základě jím zvolených kritérií.
Ivo Hendrych
RE/MAX Happy
Palackého 69
Poděbrady, 29001
Česká republika
Tel. na makléře: +420 608 663 366
Tel. do kanceláře: +420 608 663 366
E-mail: ivo.hendrych@re-max.cz

Potřebujete poradit/máte zájem o prohlídku?

* – toto pole je nutné vyplnit

Podrobné informace

Číslo zakázky:
ID 299-NP00278
Typ nemovitosti:
Komerční prostory
Druh prostor:
Obchodní
Počet podlaží v objektu:
3
Plocha kanceláří:
142 m²
Druh objektu:
Cihlová
Stav objektu:
Velmi dobrý
Charakter okolní zástavby:
Obchodní a obytná
K nastěhování:
15. 5. 2023
Doprava:
Vlak, Dálnice, Silnice, MHD, Autobus
Elektřina:
230 V
Občanská vybavenost:
Škola, Školka, Zdravotnická zařízení, Pošta, Supermarket, Kompletní síť obchodů a služeb
Odpad:
Kanalizace
Celková plocha:
142 m²
Zastavěná plocha:
76 m²
Plyn:
Plynovod
Rok rekonstrukce:
2022
Telekomunikace:
Internet
Typ domu:
Patrový
Umístění objektu:
Centrum obce
Voda:
Dálkový rozvod
Energetická náročnost budovy:
G
Měrná vypočtená roční spotřeba energie v kWh/m²/rok:
218