Translate with 
MENU ZAVŘÍT

Prodej bytu 4+kk v osobním vlastnictví 244 m², Velké Přílepy (ID 273-NP04723)

ulice Roztocká, Velké Přílepy mapa

16 490 000 Kč ( za nemovitost)
BVelmi
úsporná

kk
4x
244 m2
2/3
Exkluzivně

Nadstandardní třípodlažní byt 4+kk se zahradou a garáží, Velké Přílepy

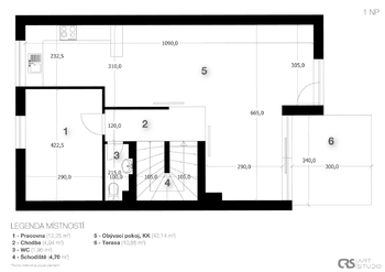
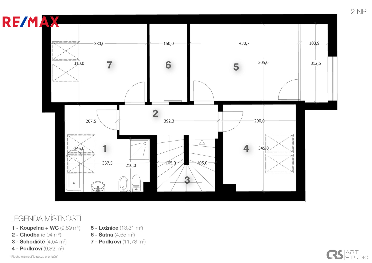
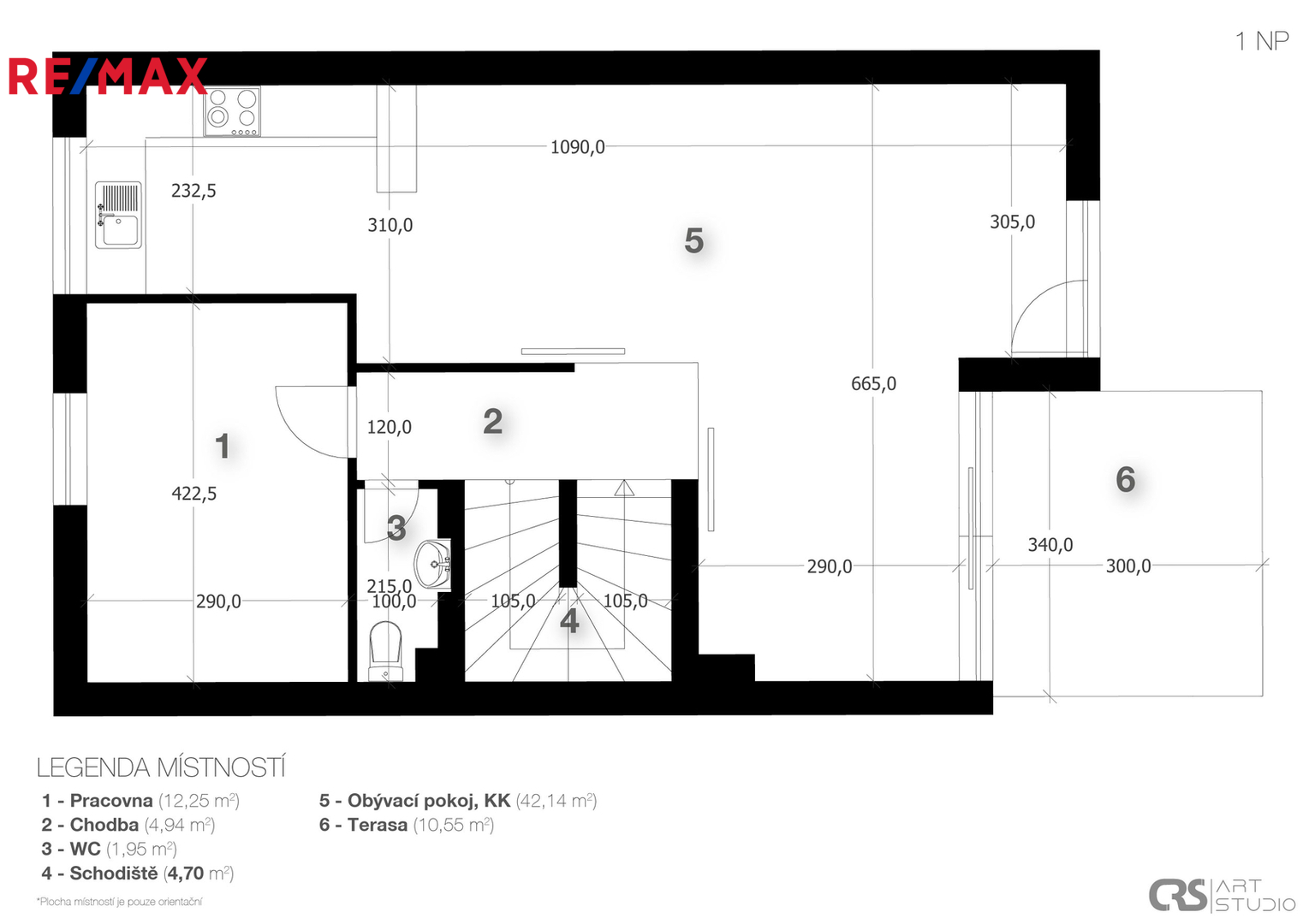
Nabízíme vám prostorný byt o dispozici 4+kk s užitnou plochou 179 m2 a celkovou podlahovou plochou 244 m2, který se nachází v cihlovém rodinném domě – novostavbě z roku 2022. Tato nemovitost splňuje velmi úspornou energetickou náročnost třídy B a je ideální pro komfortní rodinné bydlení.

Byt je promyšleně rozdělen do tří podlaží a poskytuje dostatek prostoru i soukromí pro větší rodinu. Dominantou je obývací pokoj propojený s moderní kuchyňskou linkou, která byla vyrobena v roce 2023 a je vybavena vestavnými spotřebiči – myčkou, sporákem, digestoří, troubou a mikrovlnnou troubou. V interiéru se dále nachází koupelna s vanou i sprchovým koutem, tři toalety, praktická šatna a samostatná prádelna. Samozřejmostí jsou plovoucí podlahy a plastová okna. Z ložnice ve 3. podlaží je vstup na balkón orientovaný do zahrady.

Vytápění i ohřev vody zajišťuje plynový kotel značky Bosch, což spolu s kvalitní novostavbou přispívá k úspornému provozu domácnosti a nízkým nákladům.

Součástí nemovitosti je také garáž o velikosti 27 m2, parkovací stání před domem a soukromá zahrada s terasou, která nabízí příjemné zázemí pro relaxaci i rodinné aktivity. Bezpečnost zvyšuje instalovaný kamerový systém.

Velké Přílepy poskytují kompletní občanskou vybavenost, v docházkové vzdálenosti se nachází obchod, restaurace, škola, školka, lékař i autobusová zastávka s výbornou dostupností do Prahy. Lokalita potěší i milovníky přírody a aktivního odpočinku díky blízkosti cyklostezek, výletních míst jako je Okoř nebo Tiché údolí, a okolních lesů.

Tato nemovitost představuje ideální kombinaci moderního bydlení a klidné lokality s rychlou dostupností do hlavního města.

Pokud vás naše nabídka zaujala, neváhejte se ozvat a rádi vám poskytneme další informace.
Cena:
16 490 000 CZK / za nemovitost
Poznámka k ceně:
Upozornění:
Prodávající si vyhrazuje právo vybrat kupujícího na základě jím zvolených kritérií.
RX finance

Spočítejte si splátku hypotéky

Na kolik vás vyjde pořízení vlastního bydlení? Zadejte pár informací do naší hypoteční kalkulačky a hned si prohlédněte výsledek.

Kupní cena nemovitosti

16 490 000 Kč

Výše hypotéky

Doba splácení

Vypočítaná měsíční splátka

Úroková sazba 3.6%

260 990 Kč

Hypotéku zařídíme za vás

Ušetřete svůj čas i nervy. Naši makléři zařídí veškeré papírování a dovedou vás až k úspěšnému podpisu smlouvy v bance.

Nechte nám kontakt, náš makléř se v pracovní dny ozve do 24 hodin

* – toto pole je nutné vyplnit
Artem Saykin
RE/MAX Partner
Řeporyjské náměstí 16
Praha 5 - Řeporyje, 15500
Česká republika
Tel. na makléře: +420 771 161 813
Tel. do kanceláře: +420 800 434 434
E-mail: artem.saykin@re-max.cz

Potřebujete poradit/máte zájem o prohlídku?

* – toto pole je nutné vyplnit

Podrobné informace

Číslo zakázky:
ID 273-NP04723
Dispozice:
4+kk
Číslo podlaží:
2
Počet podlaží v objektu:
3
Podlahová plocha:
244 m²
Druh objektu:
Cihlová
Stav objektu:
Novostavba
Vlastnictví:
Osobní
Typ nemovitosti:
Byty
Doprava:
Silnice, Autobus
Garáž:
Ano
Odpad:
Kanalizace
Užitná plocha:
179 m²
Plyn:
Plynovod
Telekomunikace:
Internet
Voda:
Dálkový rozvod
Energetická náročnost budovy:
B
Měrná vypočtená roční spotřeba energie v kWh/m²/rok:
100