Translate with 
MENU ZAVŘÍT

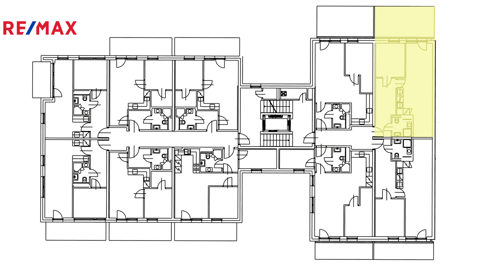
Prodej bytu 2+kk v osobním vlastnictví 48 m², Merklín (ID 268-NP03494)

Merklín – část obce Pstruží u Merklína mapa

5 472 000 Kč ( za nemovitost)
BVelmi
úsporná

kk
2x
48 m2
1/4
Exkluzivně

Prodej novostavby horského apartmánu 2+kk /1.NP - B103

Apartments Plešivec, je místo, kde se splní vaše nejtajnější sny a touhy. Ať už hledáte klidný odpočinek, aktivní sportovní vyžití, anebo adrenalinem zalité dny, nelze najít lepší místo. Jen pouhých 50 m od vašeho apartmánu startuje sedačková lanovka ski & bike areálu Plešivec, kde si přijdou na své jak děti, méně i více zkušení i ti nejnáročnější lyžaři a běžkaři. A to po celou zimní sezónu. A pokud máte rádi jaro a léto, cyklistiku a turistiku, výlety za poznáním, a je vlastně jedno, jakým způsobem, Krušné hory vás nikdy nezklamou. No, a pokud jste velmi ortodoxní bikeři, můžete přijmout každodenní výzvu biketrailů různých obtížností, které otestují vaši zručnost a odhodlání být zase o kousek lepší.

Apartments Plešivec, každý den nové zážitky!


Nejvyšší standard a nadčasové řešení
Budete-li zde trávit jen víkendy, nebo dlouhé měsíce, váš apartmán se o vás postará v nejvyšším standardu, který si přejete. A díky promyšlenému technickému řešení celé budovy, můžete konečně začít relaxovat, a popustit uzdu své fantazii. Stačí vymyslet jakoukoliv aktivitu, a klidně to může být jen otevřená knížka…..

Komfortní a luxusní
Díky vašemu chytrému zařízení, si můžete nastavit komfort vytápění, díky kterému bude váš příjezd vždy velmi příjemný. Moderní velkoplošná okna, balkóny nebo dřevěné terasy, vám zprostředkují ten nejbližší kontakt s přírodou za jakéhokoliv počasí. Prémiové standardy vašeho apartmánu – luxus, který si zasloužíte. Včetně parkovacího místa.

Financování
Přemýšlíte, jak si splnit sen? Rádi Vám pomůžeme.
Provedeme vás individuální nabídkou financování nemovitosti a vybereme spolu to nejvýhodnější řešení pro vás. Stačí jen málo, zavolejte a o zbytek se již postaráme my.
Vybavení apartmánu není součástí prodeje-jde o vizualizaci, jak může váš byt vybaven.

Líbí se Vám tato nabídka? Tak na nic nečekejte a zavolejte.

Pavel Seidl
Home & Develop partner
Cena:
5 472 000 CZK / za nemovitost
Poznámka k ceně:
Upozornění:
Prodávající si vyhrazuje právo vybrat kupujícího na základě jím zvolených kritérií.
RX finance

Spočítejte si splátku hypotéky

Na kolik vás vyjde pořízení vlastního bydlení? Zadejte pár informací do naší hypoteční kalkulačky a hned si prohlédněte výsledek.

Kupní cena nemovitosti

5 472 000 Kč

Výše hypotéky

Doba splácení

Vypočítaná měsíční splátka

Úroková sazba 3.6%

260 990 Kč

Hypotéku zařídíme za vás

Ušetřete svůj čas i nervy. Naši makléři zařídí veškeré papírování a dovedou vás až k úspěšnému podpisu smlouvy v bance.

Nechte nám kontakt, náš makléř se v pracovní dny ozve do 24 hodin

* – toto pole je nutné vyplnit
Pavel Seidl
RE/MAX Delux
Křenová 538/22
Brno, 60200
Česká republika
Tel. na makléře: +420 777 534 536
Tel. do kanceláře: +420 602 703 897
E-mail: pavel.seidl@re-max.cz

Potřebujete poradit/máte zájem o prohlídku?

* – toto pole je nutné vyplnit

Podrobné informace

Číslo zakázky:
ID 268-NP03494
Dispozice:
2+kk
Číslo podlaží:
1
Počet podlaží v objektu:
4
Podlahová plocha:
48 m²
Druh objektu:
Skeletová
Stav objektu:
Novostavba
Vlastnictví:
Osobní
Typ nemovitosti:
Byty
K nastěhování:
14. 7. 2024
Doprava:
Vlak, Silnice, Autobus
Elektřina:
230 V
Odpad:
Čistička odpadních vod pro celý objekt
Užitná plocha:
48 m²
Počet parkovacích míst:
1
Voda:
Zdroj pro celý objekt
Výtah:
Ano
Energetická náročnost budovy:
B