Translate with 
MENU ZAVŘÍT

Prodej domu 105 m², Líšná (ID 353-NP00071)

Líšná, okres Žďár nad Sázavou mapa

4 480 000 Kč ( za nemovitost)
GMimořádně
nehospodárná

5+
105 m2
745 m2
1
Exkluzivně

Prodej rodinného domu/chalupy 134m2 s pozemkem 745m2

Chalupa v srdci Vysočiny – místo, kde čas plyne pomaleji

Hledáte klidné útočiště uprostřed malebné přírody?

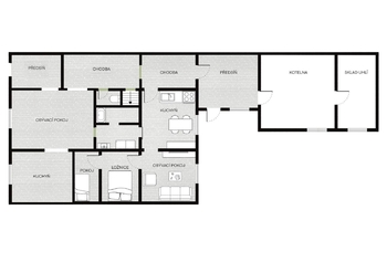
Nemovitost se nachází v klidné vesničce, obklopené nádhernou krajinou. Nemovitost se skládá z malé předzahrádky a soukromé zahrady za domem o výměře 133m2. Chalupa nabízí dostatek prostoru pro rodinné víkendy i delší pobyty – ať už toužíte po rekreaci, nebo hledáte trvalé bydlení s atmosférou. Disponuje vlastní studnou i veřejným vodovodem, přípojkou na plyn, elektřinu a kanalizace je řešena jímkou. Je částečně zrekonstruovaná a nabízí ještě celé horní patro s novou střechou se střešními okny a prostornou půdou. Momentálně obývané pouze přízemí kde se nachází kuchyň, obývací pokoj a 3 menší pokoje. Dále v obytné části nové rozvody vody, topení a elektřiny. Vinylové podlahy, koupelna s vanou i sprchovým koutem a samostatné WC.


Původní ráz venkovského stavení je citlivě zachován, takže dýchá autentickým kouzlem, přesto je chalupa připravena k pohodlnému užívání. K domu náleží i prostorná zahrada o výměře 424m2 spolu se zděnou zahradní stavbou 89m2 využívanou jako kůlna s možností přestavby na samostatně stojící chatu ideální pro zahradničení nebo posezení s přáteli.

Stavení je na polosamotně ale i tak nabízí dobrou dostupnost, nejbližší obchody,restaurace,kavárna je pouhých 5 minut autem v obci Sněžné a nejbližší město je cca 15 minut autem.

Možnost prodeje chalupy a zahrady zvlášť.


Výhody:
Bydlení v přírodě s dobrou dostupností
Zahrada s možností další stavby
Možnost okamžitého užívání nebo provozu rekreačního ubytování
Flexibilní využití – bydlení, víkendy, pronájem

V případě zájmu o více informací nebo osobní prohlídku mě neváhejte kontaktovat. Rád vás nemovitostí provedu.
Cena:
4 480 000 CZK / za nemovitost
Poznámka k ceně:
Upozornění:
Prodávající si vyhrazuje právo vybrat kupujícího na základě jím zvolených kritérií.
RX finance

Spočítejte si splátku hypotéky

Na kolik vás vyjde pořízení vlastního bydlení? Zadejte pár informací do naší hypoteční kalkulačky a hned si prohlédněte výsledek.

Kupní cena nemovitosti

4 480 000 Kč

Výše hypotéky

Doba splácení

Vypočítaná měsíční splátka

Úroková sazba 3.6%

260 990 Kč

Hypotéku zařídíme za vás

Ušetřete svůj čas i nervy. Naši makléři zařídí veškeré papírování a dovedou vás až k úspěšnému podpisu smlouvy v bance.

Nechte nám kontakt, náš makléř se v pracovní dny ozve do 24 hodin

* – toto pole je nutné vyplnit
Petr Štorek
RE/MAX Point
Údolní 16
Brno, 60200
Česká republika
Tel. na makléře: +420 731 241 799
Tel. do kanceláře: +420 603 201 623
E-mail: petr.storek@re-max.cz

Potřebujete poradit/máte zájem o prohlídku?

* – toto pole je nutné vyplnit

Podrobné informace

Číslo zakázky:
ID 353-NP00071
Poloha objektu:
Řadový
Počet podlaží v objektu:
1
Užitná plocha:
105 m²
Plocha parcely:
745 m²
Druh objektu:
Smíšená
Stav objektu:
Dobrý
Typ nemovitosti:
Domy a vily
Charakter okolní zástavby:
Venkovská
K nastěhování:
12. 3. 2026
Doprava:
Autobus
Elektřina:
230 V, 400 V
Plocha zahrady:
657 m²
Zastavěná plocha:
129 m²
Plyn:
Plynovod
Telekomunikace:
Telefon, Internet
Typ domu:
Patrový
Umístění objektu:
Polosamota
Umístění v chráněných lokalitách:
Ochranné pásmo
Voda:
Zdroj pro celý objekt
Vybaveno:
Ano
Energetická náročnost budovy:
G